450 ft²
$433 per ft²
1 room
Studio
1 bath
Co-op
- Jackson Heights
Resale
recorded sale
Sold on 9/18/2024
Verified by closing records
Last listed for $199,000
Seller's agent
This home has been saved by 22 users.
Listing by Jackson Heights Properties Real Estate LLC, Limited Liability Broker, 37-06 82nd Street, Jackson Heights, NY 11372
Maintenance fees
$498/mo
Estimated payment
$1,478/mo
Legal disclaimerAll calculations are estimates provided by StreetEasy for informational purposes only. Actual amounts or financing terms may vary. Please contact your mortgage provider for specifics.Taxes
Included in maintenance fees
Tax abatement
No info
About
Seller’s agent
description
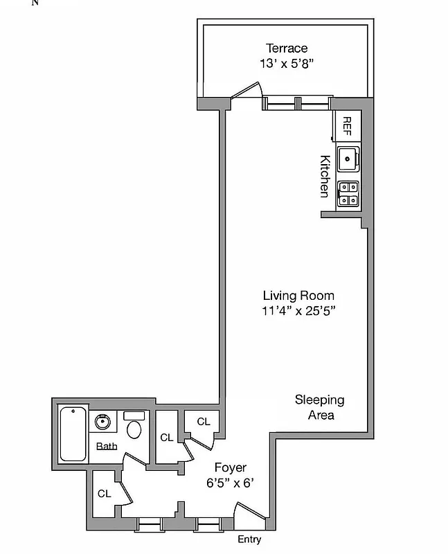
Affordable studio in Roosevelt Terrace! It is located on 85th street, between 35th & 37th avenues, 5 blocks from #7 train.
3rd floor apartment with terrace and south-east views, overlooking the courtyard in the back. A foot of concrete between the floors guarantees a quiet environment. Original co-op since 1955, all owner occupied, no sublease.
Policies
Sorry, policy info isn’t available right now. Check back later.
Home features
Hardwood floors
Private outdoor space
Terrace
View
Garden
Building amenities
Services and facilities
Elevator
Laundry in building
Live-in super
Parking
Garage
Storage space
Locker/cage
Wellness and recreation
No info on wellness and recreation
Shared outdoor space
No info on shared outdoor space
About the building
35-51 85th Street
35-51 85th Street, Jackson Heights, NY 11372
Complex:
Roosevelt Terrace Cooperative- units
- stories
- built
For sale
7 available units for saleFor rent
0 available units for rentDocuments and permits
View documents and permitsProperty history
- Price Change: No changes
- Days on market: 25 daysThis is the number of days the listing has been on StreetEasy.
| Date | Price | Event |
|---|---|---|
9/18/2024 | $195,000 | Sold by Jackson Heights Properties Real Estate LLC |
6/4/2024 | $199,000 | In contract |
5/10/2024 | $199,000 | Listed by Jackson Heights Properties Real Estate LLC |
Past listing photos
Sign in to take a closer look at how this home compares to similar homes.
Explore Jackson Heights
Transit
| Location | Distance |
|---|---|
7at 82nd St–Jackson Heights | 0.28 miles |
7at 90th St Elmhurst | 0.31 miles |
MRat Elmhurst Av | 0.58 miles |
EFMR7at Jackson Heights–Roosevelt Ave | 0.59 miles |
EFMR7at Broadway–74th St | 0.61 miles |
About Jackson Heights
Rental prices shown are base rent before any fees. Visit listings for cost and fees breakdown.
SalesMedian asking price
Studio
$243.5K
RentalsMedian asking base rent
Studio
$1,999
As prices continue to rise in Brooklyn, many New Yorkers are looking at the Queens neighborhood of Jackson Heights for its relatively affordable prices and manageable commutes to Manhattan. The subway line once described as the "cornfield route" can now get residents to Midtown in 20-30 minutes, while other lines ferry riders to the East Side of Manhattan in less than 15 minutes. The neighborhood boasts an eclectic mix of architectural styles, cuisines, traditions and peoples, and will appeal to anyone with a cosmopolitan frame of mind.
Learn more about Jackson Heights
























































































































































