$4,260
For Rent
Base rent only. For total monthly price and additional fees, see .
Rented 8/24/2022
- ft²
5 rooms
3 beds
1 bath
Three-family home
- Park Slope
Under NYC law, you can't be charged a broker fee if you didn't hire a broker.
Listed By
This home has been saved by 24 users.
Listing by Compass, Corporate Broker, 375 Schermerhorn Street, Brooklyn, NY 11217
Unavailable
Rented on 8/24/2022
Days on market
6 days
Last price change
No changes
About
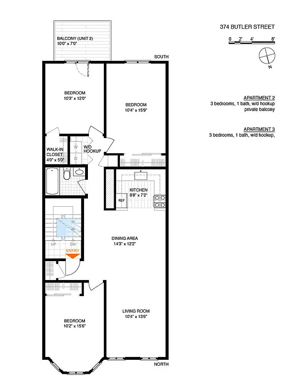
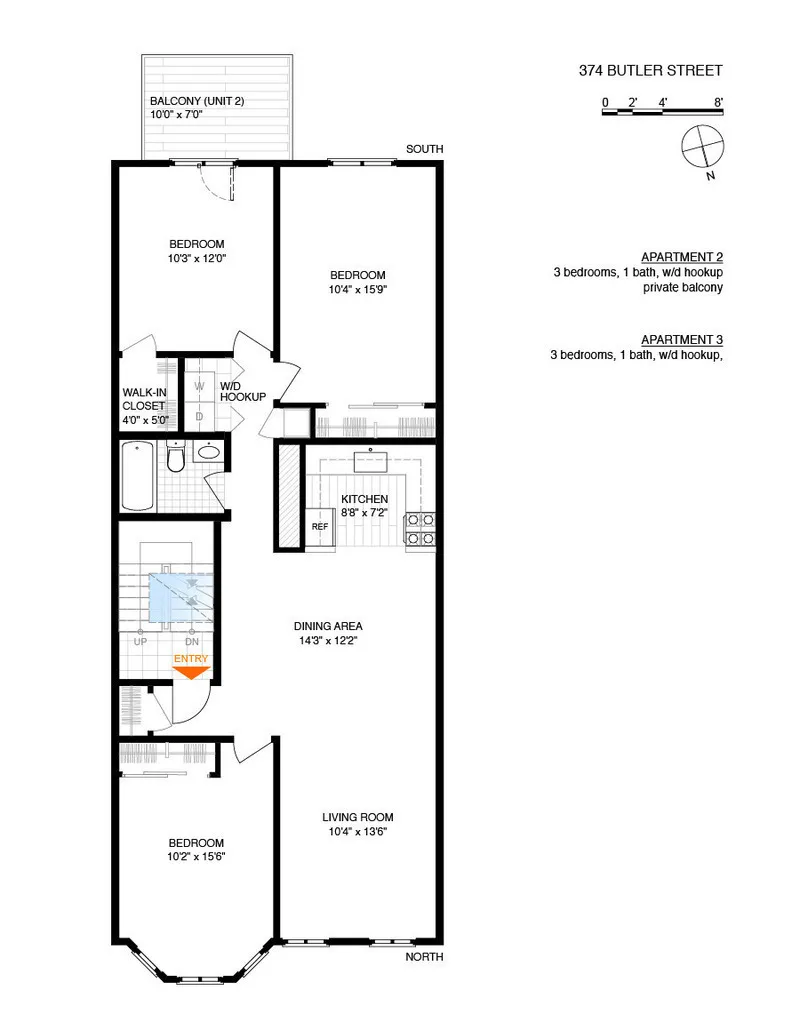
374 Butler Street (btw. 5th & 4th Ave), Park Slope Brooklyn. Pristine 3 bed, 1 bath apartment in townhouse w/ shared backyard in 3 units building. The south-facing window brings in beautiful sun & light to the large bedrooms and living room. Enjoy gardening in your backyard. This well-laid-out apartment features an open kitchen, Washer / Dryer hook-up unit (if installed for a $50 additional monthly fee), and bike storage.
Policies
Sorry, policy info isn’t available right now. Check back later.
Home features
Central air
Dishwasher
Private outdoor space
Balcony
Washer/dryer
Building amenities
Services and facilities
Laundry in building
Parking
Garage
Wellness and recreation
No info on wellness and recreation
Shared outdoor space
No info on shared outdoor space
About the building
374 Butler Street
374 Butler Street, Brooklyn, NY 11217
3 units
3 stories
1986 built
Property history
Prices shown are base rent only. For total monthly price and additional fees, see .
| Date | Base rent | Event |
|---|---|---|
8/24/2022 | $4,260 | Rented by Compass |
8/18/2022 | $4,260 | Listed by Compass |
1/12/2021 | $3,600 | |
12/1/2020 | $3,600 | |
9/1/2018 | $4,000 |
Past listing photos
Sign in to take a closer look at how this home compares to similar homes.
Explore Park Slope
Transit
| Location | Distance |
|---|---|
Rat Union St | 0.2 miles |
23at Bergen St | 0.27 miles |
BDNQR2345at Atlantic Av–Barclays Ctr | 0.32 miles |
LIRRat Atlantic Terminal | 0.38 miles |
BQat 7th Av | 0.42 miles |
About Park Slope
Rental prices shown are base rent before any fees. Visit listings for cost and fees breakdown.
SalesMedian asking price
3 beds
$2.37M
RentalsMedian asking base rent
3 beds
$6,200
Park Slope has a tranquil, easygoing vibe and can almost feel suburban. Strollers and children of all ages are a constant presence on sidewalks, as are shoppers patronizing local boutiques and dog walkers heading up to the park. Residents are Brooklynites through and through and tend to be socially conscious, artistically minded, and committed to their community. At night, a casual restaurant scene comes alive. For anyone looking for a night out, there are plenty of beer gardens and wine bars to patronize, especially in the South Slope, but don't go looking for dance clubs.
Learn more about Park SlopeSimilar homes
Prices shown are base rent only and don't include any fees. Visit each listing to see a complete cost breakdown.
Similar Homes looks at ad spend and other factors like location, price, and number of beds and baths.





























































































































