$8,500
For Rent
Base rent only. For total monthly price and additional fees, see .
Rented 6/16/2025
1,874 ft²
$54 per ft²
4 rooms
2 beds
2.5 baths
Condo
- Clinton Hill
Under NYC law, you can't be charged a broker fee if you didn't hire a broker.
Listed By
This home has been saved by 46 users.
Listing by The Agency, Real Estate Principal Office, 88 University Place, New York, NY 10003
Unavailable
Rented on 6/16/2025
Days on market
12 days
Last price change
No changes
About
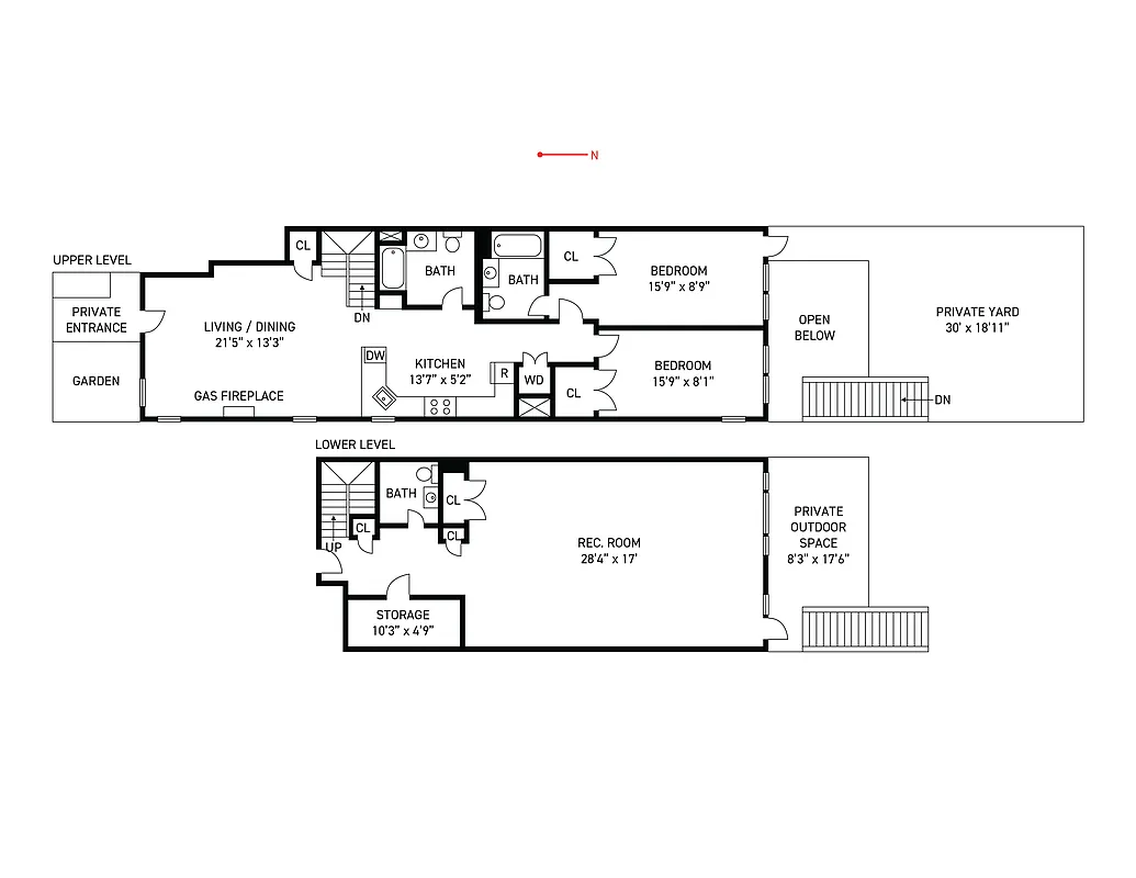
Enter 38 Lexington Avenue #1A through your very own private entrance. Take in the beauty of the hardwood oak floors, 11 foot ceilings, and massive windows. As you venture through, you will find that this home offers sprawling space for living and entertaining, both indoors and out. Prepare your favorite meal with the kitchen's top of the line appliances, including a Smeg five burner gas stove, Whirlpool dishwasher, and Liebherr refrigerator.
Policies
Sorry, policy info isn’t available right now. Check back later.
Home features
Central air
Dishwasher
Fireplace
Hardwood floors
Private outdoor space
Garden, Terrace
Washer/dryer
Building amenities
No info on building amenities
About the building
38 Lexington Avenue
38 Lexington Avenue, Brooklyn, NY 11238
12 units
4 stories
2017 built
Property history
Prices shown are base rent only. For total monthly price and additional fees, see .
| Date | Base rent | Event |
|---|---|---|
6/16/2025 | $8,500 | Rented by The Agency |
6/4/2025 | $8,500 | Listed by The Agency |
2/6/2023 | $7,000 | |
12/9/2022 | $7,000 | |
11/16/2022 | $7,500 |
Past listing photos
Sign in to take a closer look at how this home compares to similar homes.
Explore Clinton Hill
Transit
| Location | Distance |
|---|---|
Gat Classon Av | 0.17 miles |
Gat Clinton–Washington Avs | 0.29 miles |
Cat Clinton & Washington Avs | 0.3 miles |
Gat Bedford–Nostrand Avs | 0.35 miles |
ACSat Franklin Av | 0.44 miles |
Similar homes
Prices shown are base rent only and don't include any fees. Visit each listing to see a complete cost breakdown.
Similar Homes looks at ad spend and other factors like location, price, and number of beds and baths.























































































































































































