2,268 ft²
$677 per ft²
7 rooms
3 beds
3 baths
Two-family home
- Bedford-Stuyvesant
Resale
recorded sale
Sold on 8/28/2025
Verified by closing records
Last listed for $1,599,000
Seller's agents
This home has been saved by 40 users.
Listing by Corcoran, Limited Liability Broker, 1413 Fulton Street, Brooklyn, NY 11216
Common charges
Not applicable
Estimated payment
$8,495/mo
Legal disclaimerAll calculations are estimates provided by StreetEasy for informational purposes only. Actual amounts or financing terms may vary. Please contact your mortgage provider for specifics.Taxes
$304/mo
Tax abatement
No info
About
Seller’s agent
Buyer’s agent
description
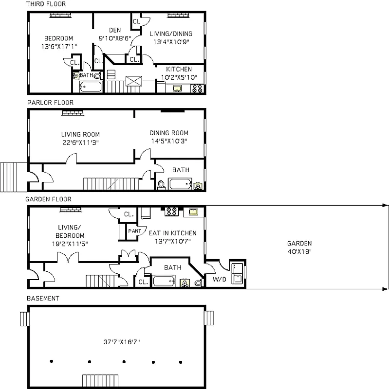
Bring your architect and contractor to this Federal Brick Bed Stuy Two family home.
Currently set up as a garden unit with an upper duplex, the building has some original mantles, doors & millwork throughout and 11 ft +/- high ceilings on the parlor level. Built 18 x 42 with a small extension on the garden level, the building sits on a 100 ft deep lot with R6A zoning and roughly 2,000 SF +/- in unused FAR.
Policies
Sorry, policy info isn’t available right now. Check back later.
Home features
Hardwood floors
Private outdoor space
Garden
Washer/dryer
Building amenities
No info on building amenities
About the building
385 Herkimer Street
385 Herkimer Street, Brooklyn, NY 11213
2 units
2 stories
1901 built
For sale
0 available units for saleFor rent
0 available units for rentDocuments and permits
View documents and permitsProperty history
- Price Change: No changes
- Days on market: 70 daysThis is the number of days the listing has been on StreetEasy.
| Date | Price | Event |
|---|---|---|
8/28/2025 | $1,537,500 | Sold by Corcoran |
7/21/2025 | $1,599,000 | In contract |
5/12/2025 | $1,599,000 | Listed by Corcoran |
Past listing photos
Sign in to take a closer look at how this home compares to similar homes.
Explore Bedford-Stuyvesant
Transit
| Location | Distance |
|---|---|
ACat Kingston–Throop | under 500 feet |
LIRRat Nostrand Avenue | 0.41 miles |
ACat Utica Av | 0.44 miles |
ACat Nostrand Av | 0.47 miles |
3at Kingston Av | 0.7 miles |
About Bedford-Stuyvesant
Rental prices shown are base rent before any fees. Visit listings for cost and fees breakdown.
SalesMedian asking price
3 beds
$1.9M
RentalsMedian asking base rent
3 beds
$3,972
Bedford-Stuyvesant is a vast Brooklyn neighborhood filled with historic brownstones. Fans of Victorian architecture will appreciate the striking abodes in the leafy historic district.
Learn more about Bedford-Stuyvesant
































































































































































