$12,000
For Rent
Base rent only. For total monthly price and additional fees, see .
No longer available 6/7/2021
2,025 ft²
$71 per ft²
7 rooms
3 beds
3.5 baths
Condo
- Downtown Brooklyn
Under NYC law, you can't be charged a broker fee if you didn't hire a broker.
Listed By
This home has been saved by 6 users.
Listing by Brown Harris Stevens, Real Estate Principal Office, 551 Fifth Avenue, Suite, New York, NY 10176
Unavailable
No longer available on 6/7/2021
Days on market
0 days
Last price change
No changes
About
**Available August 2. Occupied unit-at least 24-hour notice is required. Please email me for an appointment**.
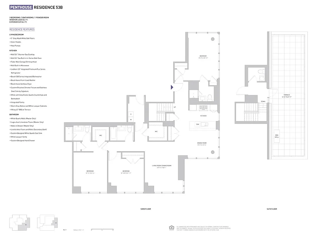
**Duplex PH 53B at 388 Bridge is offering 2025 square feet of living space and a private over 500 sq f terrace overlooking Manhattan**. This unique apartment features a separate dining and living room, and a separate laundry room.
Policies
Sorry, policy info isn’t available right now. Check back later.
Home features
Central air
Dishwasher
Hardwood floors
Private outdoor space
Terrace
View
City, Garden, Park, Skyline, Water
Washer/dryer
Building amenities
Services and facilities
Bike room
Concierge
Doorman
Full-time
Elevator
Live-in super
Package room
Parking
Garage, Valet
Wheelchair access
Wellness and recreation
Children's playroom
Gym
Media room
Shared outdoor space
Courtyard
Deck
Roof deck
About the building
388 Bridge Street
388 Bridge Street, Brooklyn, NY 11201
378 units
54 stories
2013 built
Property history
Prices shown are base rent only. For total monthly price and additional fees, see .
| Date | Base rent | Event |
|---|---|---|
9/6/2021 | $12,000 | No longer available |
6/7/2021 | $12,000 | Temporarily off market |
6/7/2021 | $12,000 | Listed by Brown Harris Stevens |
2/20/2021 | $10,000 | |
2/19/2021 | $10,000 |
Past listing photos
Sign in to take a closer look at how this home compares to similar homes.
Explore Downtown Brooklyn
Transit
| Location | Distance |
|---|---|
ACFRat Jay St–MetroTech | under 500 feet |
23at Hoyt St | under 500 feet |
BQRat DeKalb Av | 0.16 miles |
ACGat Hoyt & Schermerhorn | 0.17 miles |
R2345at Borough Hall/Court St | 0.24 miles |
About Downtown Brooklyn
Rental prices shown are base rent before any fees. Visit listings for cost and fees breakdown.
SalesMedian asking price
3 beds
$2.65M
RentalsMedian asking base rent
3 beds
$9,200
Bisected by Flatbush Avenue and bordered by the BQE, Downtown Brooklyn is a rapidly expanding residential neighborhood. Easy subway access and abundant inventory have drawn many to the area looking for luxury rentals and condos in the area's numerous new apartment towers.
Historically, Downtown Brooklyn has been the hub of the borough's municipal activities with many civil service offices and court houses centered around Cadman Plaza, the neighborhood's main hub. With tons of city employees, lawyers and Brooklynites of all types constantly bustling about, Downtown Brooklyn has a decidedly hectic vibe. This, coupled with the area's lack of green space, makes Downtown Brooklyn most appealing to those who can embrace one of Brooklyn's busiest and most trafficked neighborhoods.
Similar homes
Prices shown are base rent only and don't include any fees. Visit each listing to see a complete cost breakdown.
Similar Homes looks at ad spend and other factors like location, price, and number of beds and baths.



























































































































































































