$2,100,000
For Sale
No longer available 11/1/2014
2,132 ft²
$984 per ft²
2 rooms
Studio
0 baths
Three-family home
- Clinton Hill
Seller's agents
This home has been saved by 48 users.
Listing by Halstead Real Estate, 1107 Bedford Avenue, Brooklyn, NY 11216 | MLS #: 10100831
Common charges
Not applicable
Estimated payment
$10,256/mo
Legal disclaimerAll calculations are estimates provided by StreetEasy for informational purposes only. Actual amounts or financing terms may vary. Please contact your mortgage provider for specifics.Taxes
No info
Tax abatement
No info
About
Seller’s agent
description
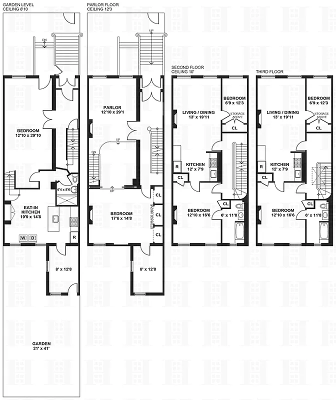
Come home to this beautiful 4 Story / 3 Family attached Brownstone located in historic, landmarked section of desirable Clinton Hill in Brooklyn. Lots of original details, original shutters, fireplaces, sliding pocket doors and high ceilings make this the perfect place for you to call home. The two top floors are currently rental apartments - each having one full bedroom and a full bathroom.
Policies
Sorry, policy info isn’t available right now. Check back later.
Home features
Private outdoor space
Garden
Building amenities
Services and facilities
Laundry in building
Wellness and recreation
No info on wellness and recreation
Shared outdoor space
No info on shared outdoor space
About the building
391 Grand Avenue
391 Grand Avenue, Brooklyn, NY 11238
3 units
3 stories
1901 built
For sale
0 available units for saleFor rent
0 available units for rentDocuments and permits
View documents and permitsProperty history
- Price Change: No changes
- Days on market: 173 daysThis is the number of days the listing has been on StreetEasy.
| Date | Price | Event |
|---|---|---|
1/26/2024 | $2,334,300 | |
4/14/2016 | $245,000 | |
11/1/2014 | $2,100,000 | No longer available |
5/12/2014 | $2,100,000 | Listed by Halstead Real Estate |
Sign in to take a closer look at how this home compares to similar homes.
Explore Clinton Hill
Transit
| Location | Distance |
|---|---|
Cat Clinton & Washington Avs | 0.17 miles |
Gat Classon Av | 0.33 miles |
Gat Clinton–Washington Avs | 0.35 miles |
ASat Franklin Av | 0.37 miles |
ACSat Franklin Av | 0.37 miles |





















































































































































