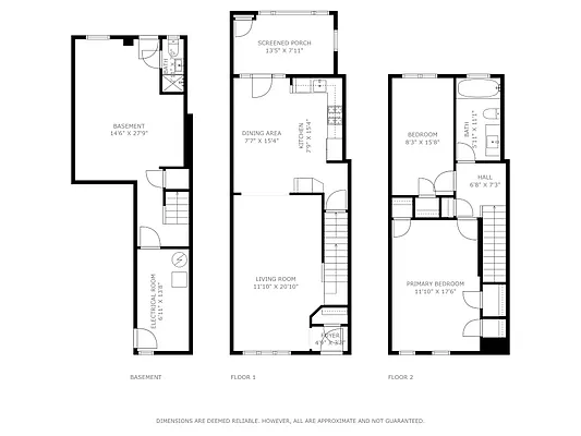
1,216 ft²
$615 per ft²
7 rooms
2 beds
2 baths
House
- East Flatbush
Resale
recorded sale
Sold on 6/20/2025
Verified by closing records
Last listed for $749,000
Seller's agent
This home has been saved by 13 users.
Listing by Remax Edge, Limited Liability Broker, 1812 Bath Avenue, Brooklyn, NY 11214
Common charges
Not applicable
Estimated payment
$4,984/mo
Legal disclaimerAll calculations are estimates provided by StreetEasy for informational purposes only. Actual amounts or financing terms may vary. Please contact your mortgage provider for specifics.Taxes
$272/mo
Tax abatement
No info
About
Seller’s agent
Buyer’s agent
description
Just Arrived: Beautiful Solid Brick Duplex In Prime East Flatbush .
Welcome To This Beautifully Redone Solid Brick Duplex.
This Spacious Home Features An Elegant Open-Concept Layout With Parquet And Hardwood Flooring Throughout, Along With A Brand-New Modern Kitchen Equipped With Stainless Steel Appliances And Stunning Quartz Countertops.
The Formal Living Room Flows Seamlessly Into The Open Dining Area And Kitchen, Creating The Ideal Space For Entertaining.
Policies
Sorry, policy info isn’t available right now. Check back later.
Home features
Dishwasher
Hardwood floors
Private outdoor space
Garden
Building amenities
Services and facilities
Parking
Garage
Wellness and recreation
No info on wellness and recreation
Shared outdoor space
No info on shared outdoor space
About the building
406 East 58th Street
406 East 58th Street, Brooklyn, NY 11203
1 unit
2 stories
1940 built
For sale
0 available units for saleFor rent
0 available units for rentDocuments and permits
View documents and permitsProperty history
- Price Change: ↓ $30,000 (-3.9%) on 4/30/25
- Days on market: 38 daysThis is the number of days the listing has been on StreetEasy.
| Date | Price | Event |
|---|---|---|
6/20/2025 | $749,000 | Sold by Remax Edge |
5/24/2025 | $749,000 | In contract |
4/30/2025 | $749,000 | Price decreased by 4% |
4/16/2025 | $779,000 | Listed by Remax Edge |
1/16/2025 | $425,000 |
Past listing photos
Sign in to take a closer look at how this home compares to similar homes.
Explore East Flatbush
Transit
| Location | Distance |
|---|---|
Lat Canarsie–Rockaway Parkway | 1.03 miles |
3at Saratoga Av | 1.18 miles |
Lat East 105th St | 1.28 miles |
3at Sutter Av | 1.36 miles |
3at Rockaway Av | 1.38 miles |






































































































































































































