$875,000
For Sale
No longer available 5/28/2025
- ft²
4 rooms
2 beds
1 bath
Co-op
- Lenox Hill
Resale
Seller's agents
This home has been saved by 86 users.
Listing by Magnetic, Real Estate Principal Office, 142 West 57th Street, New York, NY 10019
Maintenance fees
$2,122/mo
Estimated payment
$6,546/mo
Legal disclaimerAll calculations are estimates provided by StreetEasy for informational purposes only. Actual amounts or financing terms may vary. Please contact your mortgage provider for specifics.Taxes
Included in maintenance fees
Tax abatement
No info
About
Seller’s agent
description
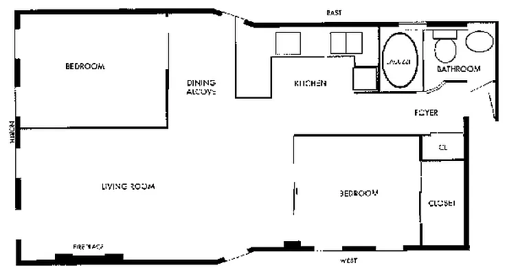
This oversized, second-floor apartment beautifully blends classic charm with modern convenience. The home features exposed brick and a working wood-burning fireplace, creating a cozy, inviting atmosphere.
Measuring nearly 1000 square feet, this loft-like space enjoys unexpectedly large proportions. Additional highlights include a newly renovated bath with deep soaking tub, in-unit washer/dryer, central HVAC system, northern exposure and tree-top views.
Policies
Co-purchase allowed
Gifts allowed
Guarantors accepted
Pets allowed
Cats and dogs allowed
Pied-a-terre allowed
Sublets allowed
Home features
Central air
Dishwasher
Fireplace
View
City
Building amenities
No info on building amenities
About the building
406 East 73rd Street
406 East 73rd Street, New York, NY 10021
8 units
5 stories
1910 built
For sale
0 available units for saleFor rent
0 available units for rentDocuments and permits
View documents and permitsProperty history
- Price Change: No changes
- Days on market: 98 daysThis is the number of days the listing has been on StreetEasy.
| Date | Price | Event |
|---|---|---|
8/27/2025 | $875,000 | No longer available |
5/28/2025 | $875,000 | Temporarily off market |
2/19/2025 | $875,000 | Listed by Magnetic |
11/24/2024 | $899,000 | |
10/17/2024 | $899,000 |
Past listing photos
Sign in to take a closer look at how this home compares to similar homes.
Explore Lenox Hill
Transit
| Location | Distance |
|---|---|
Qat 72nd St | 0.18 miles |
6at 77th St | 0.45 miles |
6at 68th St–Hunter College | 0.46 miles |
Qat 86th St | 0.58 miles |
FQat Lexington Av/63rd St | 0.63 miles |



























































































