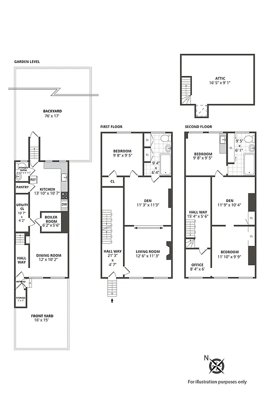
1,785 ft²
$854 per ft²
11 rooms
3 beds
2.5 baths
Two-family home
- Park Slope
recorded sale
Sold on 11/14/2017
Verified by closing records
Last listed for $1,450,000
Seller's agent
This home has been saved by 84 users.
Listing by Dwell Residential Inc, Corporate Broker, 125 Seventh Avenue, Brooklyn, NY 11215 | Brokerage Listing ID: 1954383
Common charges
Not applicable
Estimated payment
$7,574/mo
Legal disclaimerAll calculations are estimates provided by StreetEasy for informational purposes only. Actual amounts or financing terms may vary. Please contact your mortgage provider for specifics.Taxes
$242/mo
Tax abatement
No info
About
Seller’s agent
description
Prime location on amazing extra-long 120 foot lot! Come make this lovely two family home your own. Currently at 1785 square feet (17.67' x 35'), the house can be built-out to an astounding 2870 square feet! Located in the middle of a beautiful South Slope block, the house is currently being used as a one family. It is a stone's throw from the zoned elementary school, close to Prospect Park, restaurants and shops on 7th Avenue and Prospect Park West.
Policies
Sorry, policy info isn’t available right now. Check back later.
Home features
Private outdoor space
Patio
Washer/dryer
Building amenities
No info on building amenities
About the building
420 17th Street
420 17th Street, Brooklyn, NY 11215
2 units
2 stories
1920 built
For sale
0 available units for saleFor rent
0 available units for rentDocuments and permits
View documents and permitsProperty history
- Price Change: No changes
- Days on market: 25 daysThis is the number of days the listing has been on StreetEasy.
| Date | Price | Event |
|---|---|---|
1/29/2021 | $2,160,000 | |
12/2/2020 | $2,195,000 | |
12/2/2020 | $2,195,000 | |
11/25/2020 | $2,195,000 | Price decreased by 2% |
10/27/2020 | $2,249,000 |
Past listing photos
Sign in to take a closer look at how this home compares to similar homes.
Explore Park Slope
Transit
| Location | Distance |
|---|---|
Fat Prospect Park–15 St | 0.28 miles |
Fat 7th Av | 0.5 miles |
Rat Prospect Av | 0.55 miles |
Rat 25th St | 0.67 miles |
Fat Fort Hamilton Parkway | 0.69 miles |
About Park Slope
Rental prices shown are base rent before any fees. Visit listings for cost and fees breakdown.
SalesMedian asking price
3 beds
$2.35M
RentalsMedian asking base rent
3 beds
$6,000
Park Slope has a tranquil, easygoing vibe and can almost feel suburban. Strollers and children of all ages are a constant presence on sidewalks, as are shoppers patronizing local boutiques and dog walkers heading up to the park. Residents are Brooklynites through and through and tend to be socially conscious, artistically minded, and committed to their community. At night, a casual restaurant scene comes alive. For anyone looking for a night out, there are plenty of beer gardens and wine bars to patronize, especially in the South Slope, but don't go looking for dance clubs.
Learn more about Park Slope



































































































































