$4,650
For Rent
Base rent only. For total monthly price and additional fees, see .
Rented 12/13/2023
$4,359 net effective base rent
1 month free
16-month lease
- ft²
4 rooms
2 beds
2 baths
Rental unit
- Bedford-Stuyvesant
Under NYC law, you can't be charged a broker fee if you didn't hire a broker.
Listed By
This home has been saved by 17 users.
Listing by Nooklyn NYC LLC, Real Estate Principal Office, 28 Scott Avenue Ste, Brooklyn, NY 11385
Unavailable
Rented on 12/13/2023
Days on market
2 days
Last price change
↑ $200 (+4.1%) on 12/12/23
About
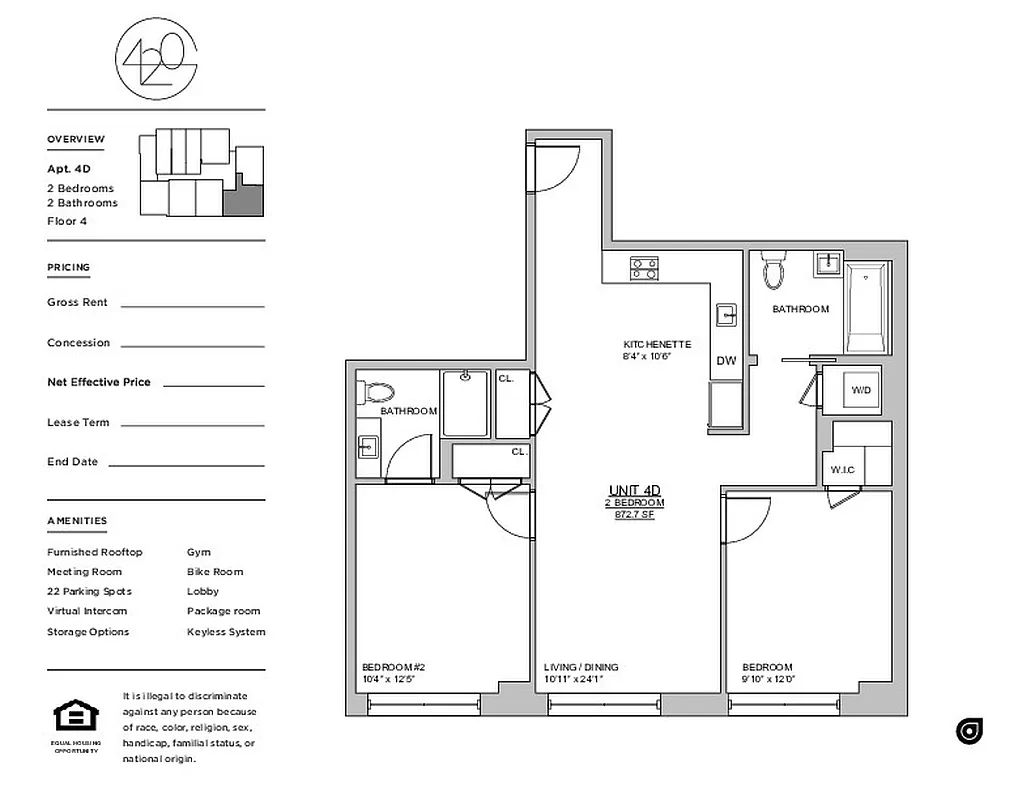
2 Bed / 2 Bath at 420 Gates Ave - Unit: 404 in Bed-Stuy, Brooklyn. All Pets Allowed. Nearby subway stations include: Nostrand Av(A, C), Bedford - Nostrand Avs (G). Condo style living! Select units w/ private backyrd, terrace & balconies.All feature W/D installed, floor to ceiling windows, modern fixtures, custom Italian kitchen cabinets, white quartz counters, ample kitchen storage, dishwasher & brand new SS appliances.
Policies
Pets allowed
Home features
Central air
Dishwasher
Hardwood floors
Washer/dryer
Building amenities
Services and facilities
Bike room
Doorman
Virtual
Elevator
Laundry in building
Package room
Parking
Garage
Storage space
Wheelchair access
Wellness and recreation
Gym
Shared outdoor space
Patio
Roof deck
About the building
420 Gates Avenue
420 Gates Avenue, Brooklyn, NY 11216
30 units
6 stories
2021 built
Property history
Prices shown are base rent only. For total monthly price and additional fees, see .
| Date | Base rent | Event |
|---|---|---|
12/14/2023 | $4,650 | Rented by Nooklyn NYC LLC |
12/13/2023 | $4,650 | No longer available |
12/12/2023 | $4,650 | Price increased by 4% |
12/12/2023 | $4,450 | In contract |
12/11/2023 | $4,450 | Rented by Nooklyn NYC LLC |
Past listing photos
Sign in to take a closer look at how this home compares to similar homes.
Explore Bedford-Stuyvesant
Transit
| Location | Distance |
|---|---|
Gat Bedford–Nostrand Avs | 0.25 miles |
ACSat Franklin Av | 0.4 miles |
ACat Nostrand Av | 0.4 miles |
ASat Franklin Av | 0.41 miles |
Gat Classon Av | 0.46 miles |
About Bedford-Stuyvesant
Rental prices shown are base rent before any fees. Visit listings for cost and fees breakdown.
SalesMedian asking price
2 beds
$1.2M
RentalsMedian asking base rent
2 beds
$3,800
Bedford-Stuyvesant is a vast Brooklyn neighborhood filled with historic brownstones. Fans of Victorian architecture will appreciate the striking abodes in the leafy historic district.
Learn more about Bedford-StuyvesantSimilar homes
Prices shown are base rent only and don't include any fees. Visit each listing to see a complete cost breakdown.
Similar Homes looks at ad spend and other factors like location, price, and number of beds and baths.

















































































































