- ft²
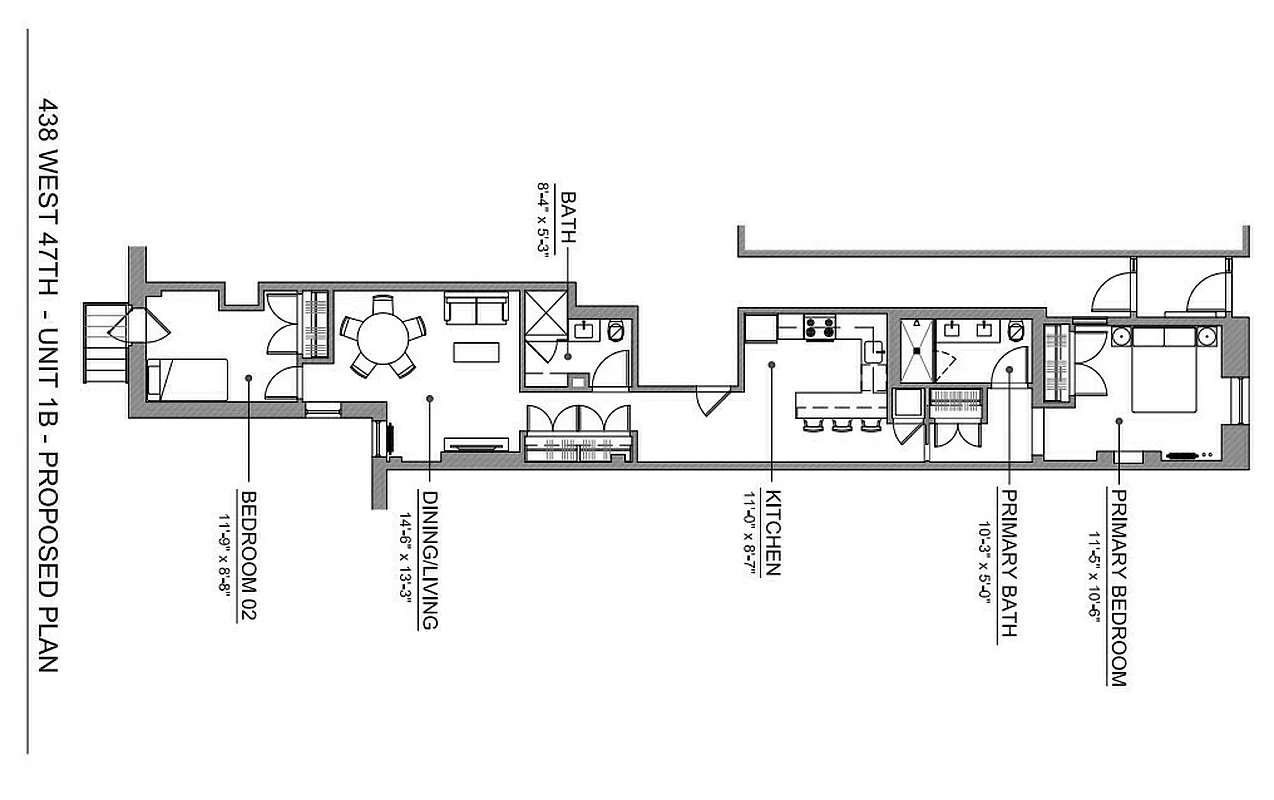
5 rooms
2 beds
2 baths
Co-op
- Hell's Kitchen
Sponsor unit
Sponsor unitA unit being sold for the first time. It’s typically owned by the building. For condos, this is often the developer. For co-ops, this is often the building’s original owner before it went co-op.
recorded sale
Sold on 8/1/2024
Verified by closing records
Last listed for $1,095,000
Seller's agents
This home has been saved by 86 users.
Listing by James Development Corp, Corporate Broker, 780 West End Avenue Ste, New York, NY 10025
Maintenance fees
$1,239/mo
Estimated payment
$6,776/mo
Legal disclaimerAll calculations are estimates provided by StreetEasy for informational purposes only. Actual amounts or financing terms may vary. Please contact your mortgage provider for specifics.Taxes
Included in maintenance fees
Tax abatement
No info
About
Seller’s agent
Buyer’s agent
description
Sponsor Unit! No Board Approval!
Private Outdoor Oasis in the Heart of The City!!
Beautifully renovated 2 bedroom, 2 full bath+ private backyard unit located on a quiet, tree-lined street in Hell’s Kitchen.
Hardwood floors and soaring ceiling heights grace this timeless unit complete with a private backyard. The kitchen features gorgeous custom high-gloss cabinetry, quartz countertops and backsplashes and top of the line appliances including a wine cooler.
Policies
Sorry, policy info isn’t available right now. Check back later.
Home features
Central air
Dishwasher
Fireplace
Decorative
Hardwood floors
Private outdoor space
Garden
View
City, Garden
Washer/dryer
Building amenities
Services and facilities
Storage space
Locker/cage
Wellness and recreation
No info on wellness and recreation
Shared outdoor space
No info on shared outdoor space
About the building
438 West 47th Street
438 West 47th Street, New York, NY 10036
10 units
5 stories
1910 built
For sale
0 available units for saleFor rent
0 available units for rentDocuments and permits
View documents and permitsProperty history
- Price Change: ↓ $100,000 (-8.4%) on 4/17/24
- Days on market: 189 daysThis is the number of days the listing has been on StreetEasy.
| Date | Price | Event |
|---|---|---|
8/1/2024 | $1,094,618 | Sold by James Development Corp |
6/11/2024 | $1,095,000 | In contract |
4/17/2024 | $1,095,000 | Price decreased by 8% |
2/29/2024 | $1,195,000 | Price decreased by 8% |
1/17/2024 | $1,295,000 | Price decreased by 13% |
Past listing photos
Sign in to take a closer look at how this home compares to similar homes.
Explore Hell's Kitchen
Transit
| Location | Distance |
|---|---|
CEat 50th St | 0.27 miles |
ACENQRWS1237at Times Square–42nd St | 0.28 miles |
1at 50th St | 0.4 miles |
NRWat 49th St | 0.41 miles |
BDEat 7th Av | 0.5 miles |































































































































