720 ft²
$1,388 per ft²
4 rooms
1 bed
1 bath
Condo
- Hunters Point
Resale
reported sale
Sold on 8/22/2024
Not yet verified by closing records
Seller's agent
This home has been saved by 33 users.
Listing by Corcoran, Limited Liability Broker, 47-34 Vernon Boulevard, Long Island City, NY 11101
Common charges
$783/mo
Estimated payment
$7,266/mo
Legal disclaimerAll calculations are estimates provided by StreetEasy for informational purposes only. Actual amounts or financing terms may vary. Please contact your mortgage provider for specifics.Taxes
$646/mo
Tax abatement
No info
About
Seller’s agent
description
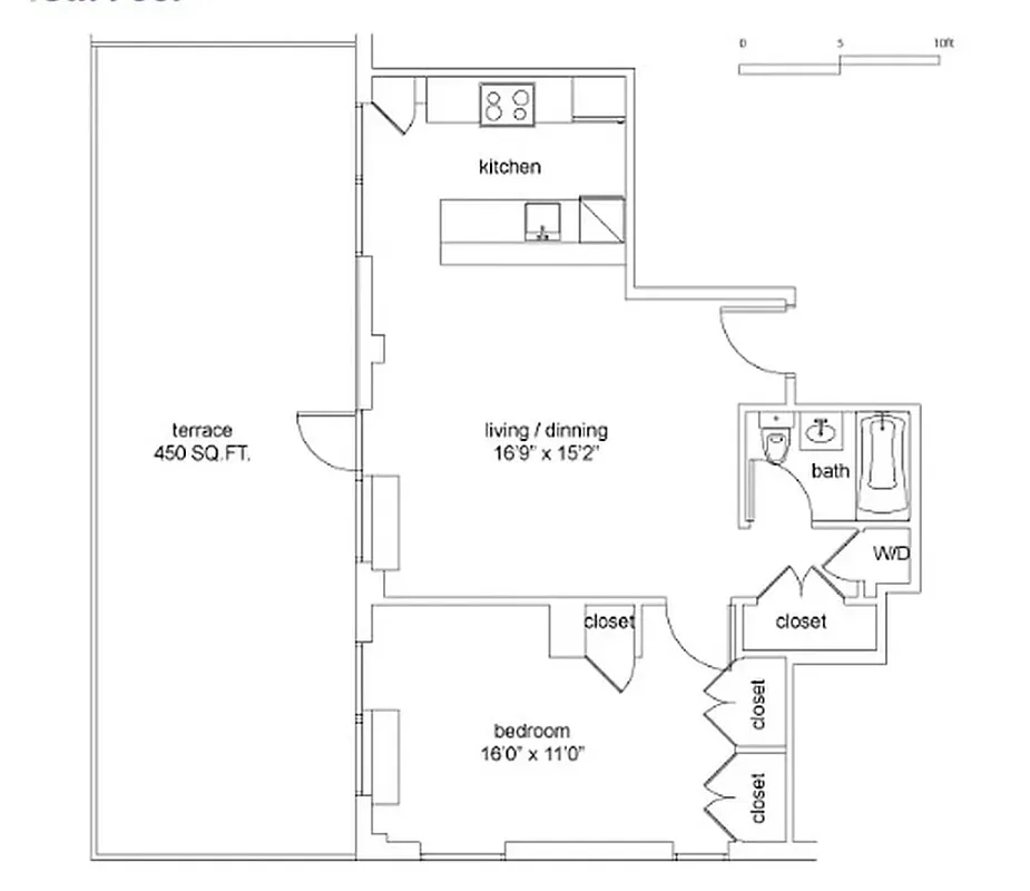
Welcome to 44-27 Purves Street, PH15C—a sun-drenched penthouse offering 720 square feet of interior living space complemented by an expansive 450 square feet private outdoor terrace. Bathed in natural light from east and south exposures, the living room comfortably accommodates both dining and lounging areas.
The gourmet open kitchen is a chef's dream, featuring high-end stainless steel appliances, stone countertops, and an appliance garage.
Policies
Sorry, policy info isn’t available right now. Check back later.
Home features
Dishwasher
Hardwood floors
Private outdoor space
Terrace
View
Skyline
Washer/dryer
Building amenities
Services and facilities
Bike room
Concierge
Doorman
Elevator
Live-in super
Parking
Garage
Storage space
Cold storage, Locker/cage
Wheelchair access
Wellness and recreation
Gym
Shared outdoor space
Roof deck
About the building
44-27 Purves
44-27 Purves Street, Long Island City, NY 11101
64 units
14 stories
2006 built
For sale
1 available units for saleFor rent
0 available units for rentDocuments and permits
View documents and permitsProperty history
- Price Change: No changes
- Days on market: 36 daysThis is the number of days the listing has been on StreetEasy.
| Date | Price | Event |
|---|---|---|
8/22/2024 | $999,999 | Sold by Corcoran |
5/24/2024 | $999,999 | In contract |
4/18/2024 | $999,999 | Listed by Corcoran |
Past listing photos
Sign in to take a closer look at how this home compares to similar homes.
Explore Hunters Point
Transit
| Location | Distance |
|---|---|
EMRat Queens Plaza | 0.18 miles |
EGM7at 23rd St–Ely Av | 0.19 miles |
Gat Long Island City–Court Square | 0.23 miles |
EGM7at 45 Rd–Court House Sq | 0.24 miles |
NW7at Queensboro Plaza | 0.25 miles |













































































































