$4,675,000
For Sale
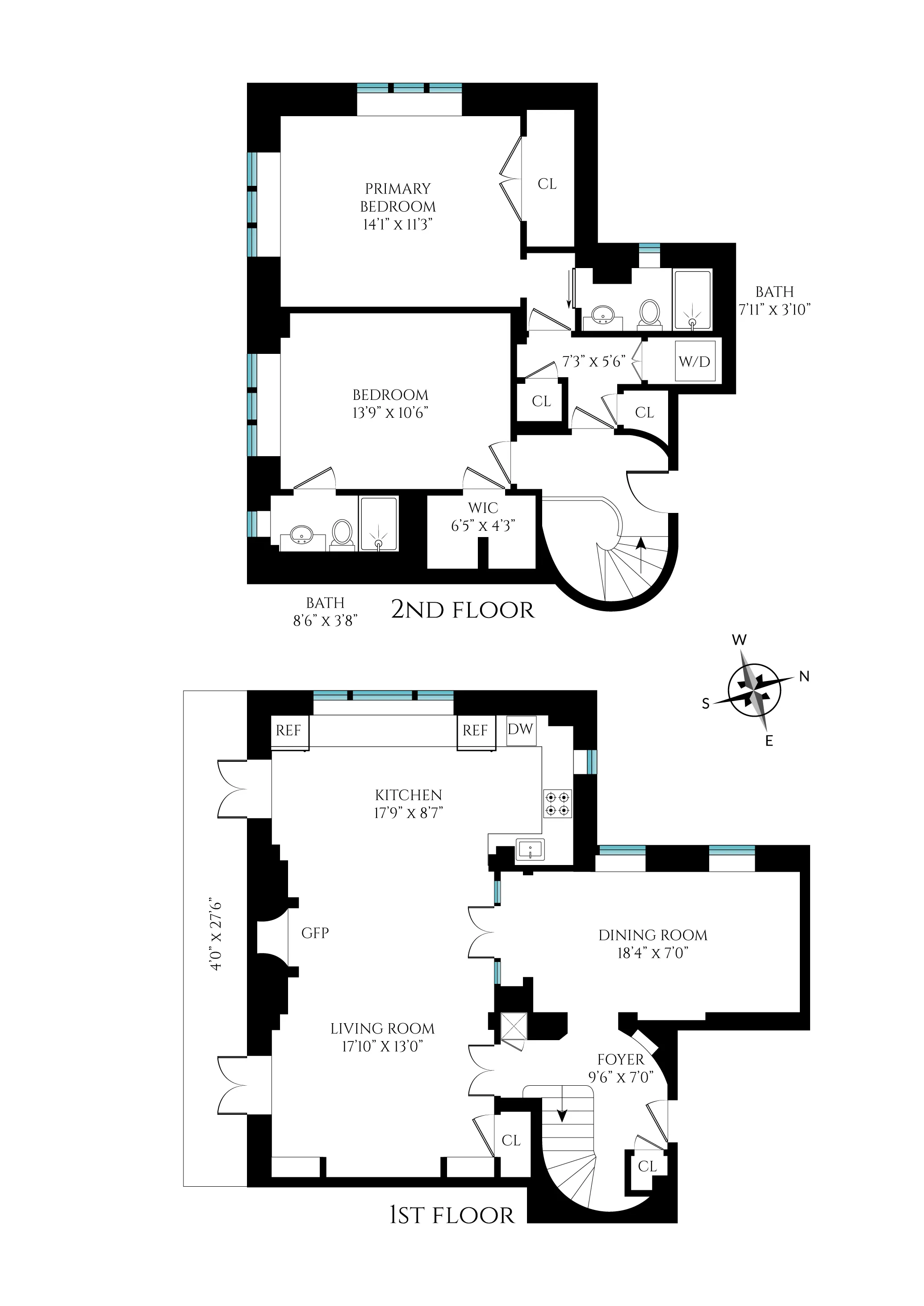
1,404 ft²
$3,329 per ft²
5 rooms
2 beds
2 baths
Condo
- Lenox Hill
Resale
This home has been saved by 77 users.
Listing by Sotheby's International Realty, Corporate Broker, 650 Madison Avenue, New York, NY 10022
Common charges
$2,880/mo
Estimated payment
$31,981/mo
Legal disclaimerAll calculations are estimates provided by StreetEasy for informational purposes only. Actual amounts or financing terms may vary. Please contact your mortgage provider for specifics.Taxes
$2,390/mo
Tax abatement
No info
About
Seller’s agent
description
Rare Rosario Candela Duplex Condominium. Exquisitely renovated two bedroom, two bath, terraced apartment with gas fireplace and views to Central Park on the finest Upper East Side townhouse block between Madison and Park Avenues. Blending prewar elegance with modern refinement, this residence offers the finest Manhattan lifestyle and welcomes its new owners.
Policies
Pets allowed
Cats and dogs allowed
Home features
Central air
Dishwasher
Fireplace
Gas
Hardwood floors
Private outdoor space
Terrace
Washer/dryer
Building amenities
Services and facilities
Bike room
Doorman
Full-time
Elevator
Wellness and recreation
No info on wellness and recreation
Shared outdoor space
No info on shared outdoor space
About the building
44 East 67th Street
44 East 67th Street, New York, NY 10065
46 units
13 stories
1941 built
For sale
2 available units for saleFor rent
0 available units for rentDocuments and permits
View documents and permitsProperty history
- Price Change: ↓ $275,000 (-5.6%) on 2/27/26
- Days on market: 108 daysThis is the number of days the listing has been on StreetEasy.
| Date | Price | Event |
|---|---|---|
2/27/2026 | $4,675,000 | Price decreased by 6% |
11/17/2025 | $4,950,000 | Listed by Sotheby's International Realty |
11/9/2021 | $2,000,000 |
Sign in to take a closer look at how this home compares to similar homes.
Explore Lenox Hill
Transit
| Location | Distance |
|---|---|
6at 68th St–Hunter College | 0.15 miles |
FQat Lexington Av/63rd St | 0.22 miles |
NRat 59th St | 0.35 miles |
NRW456at Lexington Av/59th St | 0.36 miles |
Qat 72nd St | 0.4 miles |





































































































































