View this home virtually
4,200 ft²
$1,548 per ft²
10 rooms
4 beds
5.5 baths
Co-op
- Upper West Side
Resale
recorded sale
Sold on 8/13/2024
Verified by closing records
Last listed for $6,700,000
Seller's agent
This home has been saved by 62 users.
Listing by Douglas Elliman, Limited Liability Broker, 575 Madison Avenue, New York, NY 10022 | Brokerage Listing ID: 22695660
Maintenance fees
$10,681/mo
Estimated payment
$42,442/mo
Legal disclaimerAll calculations are estimates provided by StreetEasy for informational purposes only. Actual amounts or financing terms may vary. Please contact your mortgage provider for specifics.Taxes
Included in maintenance fees
Tax abatement
No info
About
Seller’s agent
Buyer’s agent
description
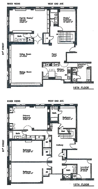
Significant price reduction! Architects One of a kind Duplex featuring Space Views and Location! Exceptional value of beautifully renovated River View 4200sf home - this is the best priced renovated home in the RSD/WEA area!
Spectacular sunsets, sleek, triple mint 10-room duplex (originally 14 rms) with panoramic Hudson River views on both floors.
Policies
Gifts allowed
Parents buying allowed
Pets allowed
Cats and dogs allowed
Home features
Dishwasher
View
City, Park, Skyline, Water
Washer/dryer
Building amenities
Services and facilities
Bike room
Doorman
Full-time
Elevator
Laundry in building
Live-in super
Storage space
Locker/cage
Wellness and recreation
Children's playroom
Gym
Shared outdoor space
Roof deck
About the building
440 West End Avenue
440 West End Avenue, New York, NY 10024
96 units
17 stories
1928 built
For sale
1 available units for saleFor rent
0 available units for rentDocuments and permits
View documents and permitsProperty history
- Price Change: ↓ $295,000 (-4.2%) on 2/20/24
- Days on market: 184 daysThis is the number of days the listing has been on StreetEasy.
| Date | Price | Event |
|---|---|---|
8/13/2024 | $6,505,000 | Sold by Douglas Elliman |
4/6/2024 | $6,700,000 | In contract |
2/20/2024 | $6,700,000 | Price decreased by 4% |
10/12/2023 | $6,995,000 | Price decreased by 5% |
10/5/2023 | $7,350,000 | Listed by Douglas Elliman |
Past listing photos
Sign in to take a closer look at how this home compares to similar homes.
Explore Upper West Side
Transit
| Location | Distance |
|---|---|
1at 79th St | 0.11 miles |
1at 86th St | 0.23 miles |
123at 72nd St | 0.47 miles |
BCat 81st St–Museum of Natural History | 0.48 miles |
BCat 86th St | 0.53 miles |
About Upper West Side
Rental prices shown are base rent before any fees. Visit listings for cost and fees breakdown.
SalesMedian asking price
4 beds
$5.5M
RentalsMedian asking base rent
4 beds
$18,000
Sandwiched between two beautiful parks, the Upper West Side is one of the greenest spots in Manhattan. For that reason, it is a perennial favorite. The Upper West Side is relaxed, but never dull. There are plenty of low-key bars and restaurants to frequent along Amsterdam Avenue, and Broadway is an always-bustling commercial center. The wide, tree-lined streets still boast many mom-and-pop stores. Less posh than the Upper East Side, it is more easily accessible by public transportation, and real estate prices are just as, if not more, expensive.
Learn more about Upper West Side



































































































































































