- ft²
3 rooms
1 bed
1 bath
Co-op
- Lower East Side
recorded sale
Sold on 6/20/2017
Verified by closing records
Last listed for $629,000
Seller's agents
This home has been saved by 23 users.
Listing by Halstead Real Estate, 100 Fifth Avenue, New York, NY 10011 | MLS #: 1088587
Maintenance fees
$716/mo
Estimated payment
$4,191/mo
Taxes
Included in maintenance fees
Tax abatement
No info
About
Sellerâs agent
description
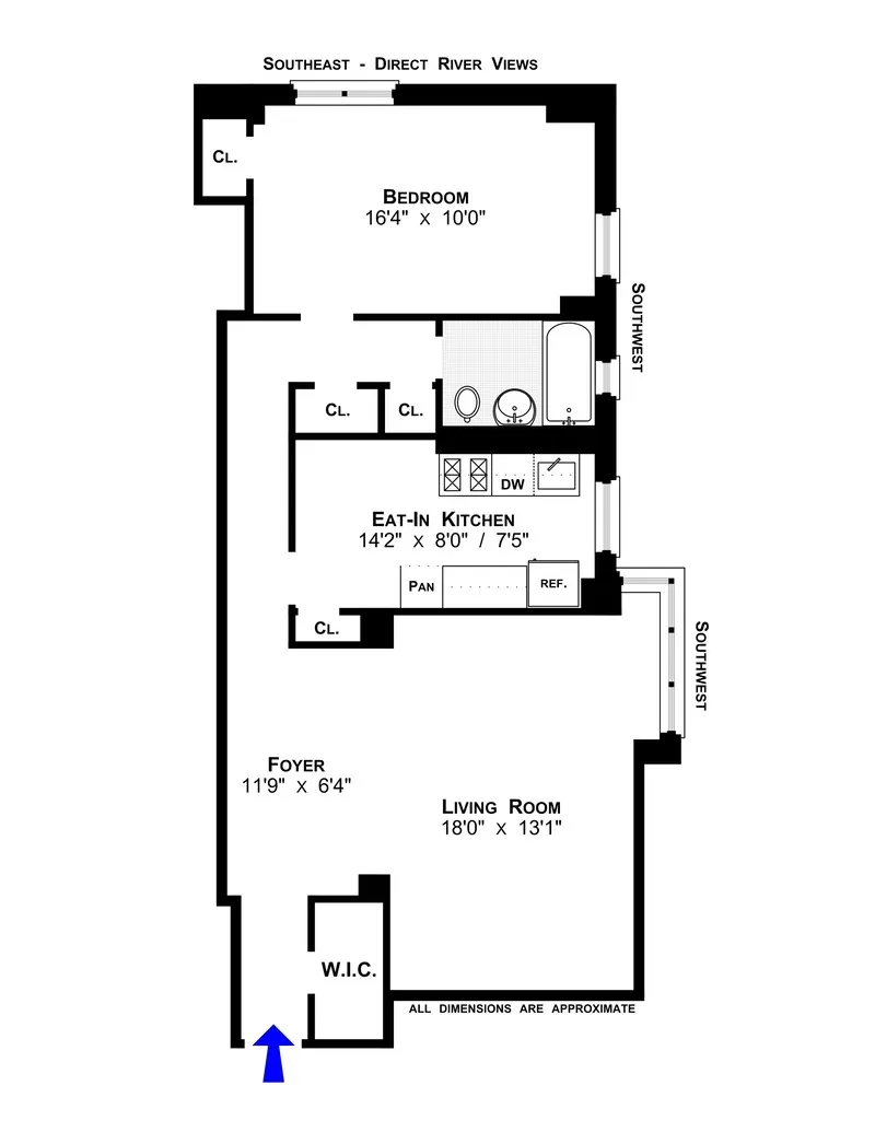
Contract Signed. RIVER VIEWS FROM EVERY ROOM
Largest 1BR layout in the co-op with open river views from every room! Spacious living room offers plenty of room for entertaining. The windowed eat-in kitchen features clean, white cabinetry and plenty of prep space. Bedroom offers double exposures with both river and downtown skyline views. Windowed bath, lots of closets throughout and excellent light all day long.
Policies
Sorry, policy info isnât available right now. Check back later.
Home features
No info on home features
Building amenities
Services and facilities
Doorman
Elevator
Laundry in building
Live-in super
Parking
Wellness and recreation
Children's playroom
Gym
Shared outdoor space
No info on shared outdoor space
About the building
455 Fdr Drive
455 Fdr Drive, New York, NY 10002
Complex:
East River Co-ops- units
- stories
- built
For sale
7 available units for saleFor rent
0 available units for rentDocuments and permits
View documents and permitsProperty history
- Price Change: No changes
- Days on market: 55 days
| Date | Price | Event |
|---|---|---|
6/20/2017 | $629,000 | Sold by Halstead Real Estate |
6/20/2017 | $629,000 | No longer available |
3/29/2017 | $629,000 | In contract |
2/2/2017 | $629,000 | Listed by Halstead Real Estate |
Past listing photos
Sign in to take a closer look at how this home compares to similar homes.
Explore Lower East Side
Transit
| Location | Distance |
|---|---|
FJMZat Essex St | 0.58 miles |
Fat East Broadway | 0.59 miles |
FJMZat Delancey St | 0.61 miles |
BDat Grand St | 0.84 miles |
Fat 2nd Av | 0.86 miles |
About Lower East Side
Rental prices shown are base rent before any fees. Visit listings for cost and fees breakdown.
SalesMedian asking price
1 bed
$786K
RentalsMedian asking base rent
1 bed
$3,795
The narrow streets of the Lower East Side were once lined with tenement buildings, shirt factories and bialy shops. Although a few vestiges of the neighborhood's immigrant heritage remain, many of the tenement buildings have been updated and now offer relatively affordable rental options to young New Yorkers looking to live right in the thick of Downtown Manhattan.
There's no getting around it - the LES is a major nightlife destination. In this part of the city, last call is late and often negotiable -- especially if you're a regular. On weekend nights, the neighborhood is packed as crowds overflow from the local bars and take to the streets in search of a late-night falafel fix before heading onto the next party. During the day, the neighborhood chills out as residents nurse their hangovers or head to work slowly after stopping at one of the area's many trendy juice bars or coffee shops.






















































































































































