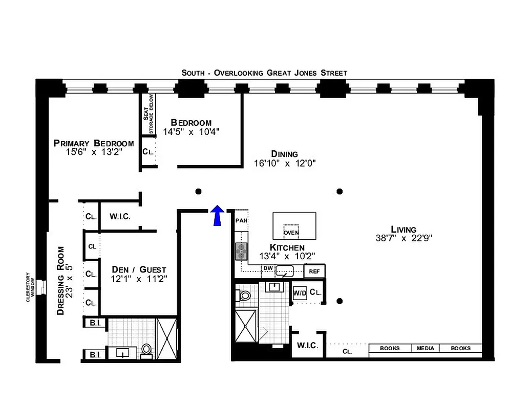
2,500 ft²
$1,700 per ft²
5 rooms
2 beds
2 baths
Co-op
- Noho
Resale
recorded sale
Sold on 8/22/2022
Verified by closing records
Last listed for $3,995,000
Seller's agents
This home has been saved by 104 users.
Listing by Brown Harris Stevens, Real Estate Principal Office
Maintenance fees
$2,700/mo
Estimated payment
$22,901/mo
Legal disclaimerAll calculations are estimates provided by StreetEasy for informational purposes only. Actual amounts or financing terms may vary. Please contact your mortgage provider for specifics.Taxes
Included in maintenance fees
Tax abatement
No info
About
Seller’s agent
Buyer’s agent
description
Brilliant sunlight streams in through 60-feet of continuous south exposures in this sprawling and beautifully renovated 2,500SF loft located on a prime block in historic Noho. Enter to a grand-scaled Living/Dining room with 11-foot ceilings, classic columns and open views of the surrounding historic district from a wall of oversized windows.
Policies
Pets allowed
Cats and dogs allowed
Home features
Central air
View
City
Washer/dryer
Building amenities
Services and facilities
Bike room
Elevator
Wellness and recreation
No info on wellness and recreation
Shared outdoor space
No info on shared outdoor space
About the building
48 Great Jones Street
48 Great Jones Street, New York, NY 10012
12 units
7 stories
1920 built
For sale
0 available units for saleFor rent
0 available units for rentDocuments and permits
View documents and permitsProperty history
- Price Change: No changes
- Days on market: 14 daysThis is the number of days the listing has been on StreetEasy.
| Date | Price | Event |
|---|---|---|
8/22/2022 | $4,250,000 | Sold by Brown Harris Stevens |
5/4/2022 | $3,995,000 | In contract |
4/20/2022 | $3,995,000 | Listed by Brown Harris Stevens |
4/5/2012 | $3,100,000 | |
4/5/2012 | $3,350,000 |
Past listing photos
Sign in to take a closer look at how this home compares to similar homes.
Explore Noho
Transit
| Location | Distance |
|---|---|
BDFM6at Bleecker St | 0.13 miles |
RWat 8th St–NYU | 0.2 miles |
BDFM6at Broadway–Lafayette St | 0.2 miles |
Fat 2nd Av | 0.21 miles |
6at Astor Place | 0.22 miles |












































































































































