- ft²
8 rooms
3 beds
3+ baths
Co-op
- West Village
recorded sale
Sold on 4/8/2014
Verified by closing records
Last listed for $8,995,000
Seller's agent
This home has been saved by 37 users.
Listing by Sotheby's International Realty, Corporate Broker, 220 5th Avenue,, New York, NY 10001 | Brokerage Listing ID: 0136915
Maintenance fees
$5,331/mo
Estimated payment
$50,522/mo
Taxes
Included in maintenance fees
Tax abatement
No info
About
Seller’s agent
description
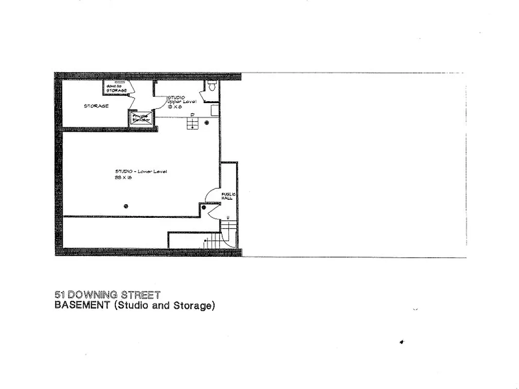
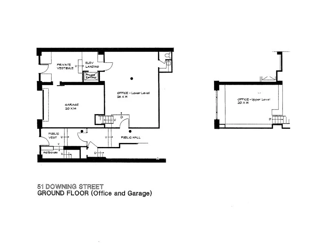
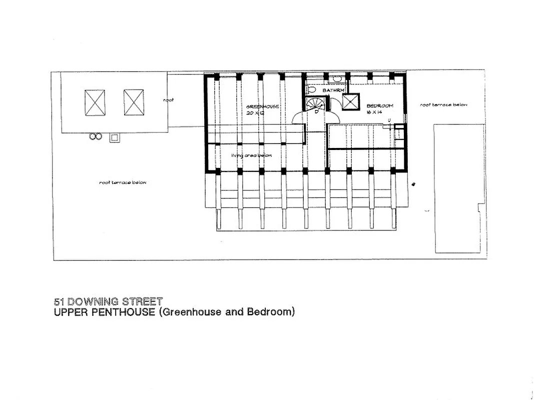
ONE OF A KIND & authentic, this rare property enters thru a private building entrance & includes a private garage, elev, outdoor space, storage & a office/studio on the ground floor affording a range of professional possibilities. These elements combine to create a unique live/work life-style within one bldg. Located in a former horse stable, this home in excess of 5700+/- sqft offers an unparalleled opportunity to attain the privacy of townhouse-style living in a classic loft building.
Policies
Pets allowed
Cats and dogs allowed
Home features
Private outdoor space
Terrace
Building amenities
No info on building amenities
About the building
49 Downing Street
49 Downing Street, New York, NY 10014
10 units
4 stories
1896 built
For sale
0 available units for saleFor rent
0 available units for rentDocuments and permits
View documents and permitsProperty history
- Price Change: ↑ $2,495,000 (+38.4%) on 11/23/13
- Days on market: 17 days
| Date | Price | Event |
|---|---|---|
4/8/2014 | $8,300,000 | Sold by Sotheby's International Realty |
11/26/2013 | $8,995,000 | In contract |
11/23/2013 | $8,995,000 | Price increased by 38% |
11/9/2013 | $6,500,000 | Listed by Sotheby's International Realty |
2/8/2016 | $8,995,000 |
Past listing photos
Sign in to take a closer look at how this home compares to similar homes.
Explore West Village
Transit
| Location | Distance |
|---|---|
1at Houston St | under 500 feet |
ABCDEFMat West 4th St | 0.2 miles |
CEat Spring St | 0.21 miles |
1at Christopher St–Sheridan Sq | 0.3 miles |
PATHat Christopher Street Station | 0.3 miles |
About West Village
Rental prices shown are base rent before any fees. Visit listings for cost and fees breakdown.
SalesMedian asking price
3 beds
$5.2M
RentalsMedian asking base rent
3 beds
$8,995
Picture a romantic comedy set in New York City: The heroine invariably lives in a cozy walk-up on a cobblestone street in a neighborhood with cute boutiques and trendy cafes on every corner. This movie is set in the West Village. In reality, the West Village is just as picturesque: The neighborhood is tucked between Greenwich Village and the Hudson River and is one of the quietest and most sophisticated pockets of Downtown Manhattan. Primarily residential, with a distinct lack of office buildings, the leafy, off-the-grid streets are peaceful during the day but get livelier at night. That's when well-heeled residents, fashionistas, and literati can all be found mingling over oysters at the area's many low-lit cocktail bars.
Learn more about West Village




































































































































































