$3,600
For Rent
Base rent only. For total monthly price and additional fees, see .
Delisted 9/24/2020
800 ft²
$54 per ft²
3 rooms
1 bed
1 bath
Rental unit
- Upper West Side
Under NYC law, you can't be charged a broker fee if you didn't hire a broker.
Listed By
Joseph Trapani
Licensed Real Estate Salesperson
Rachel Realty
This home has been saved by 32 users.
Listing by Rachel Realty, Corporate Broker, 255 West 88th Street, New York, NY 10024
Unavailable
Delisted on 9/24/2020
Days on market
44 days
Last price change
No changes
About
OPEN HOUSE STRICTLY BY APPOINTMENT ONYLY!
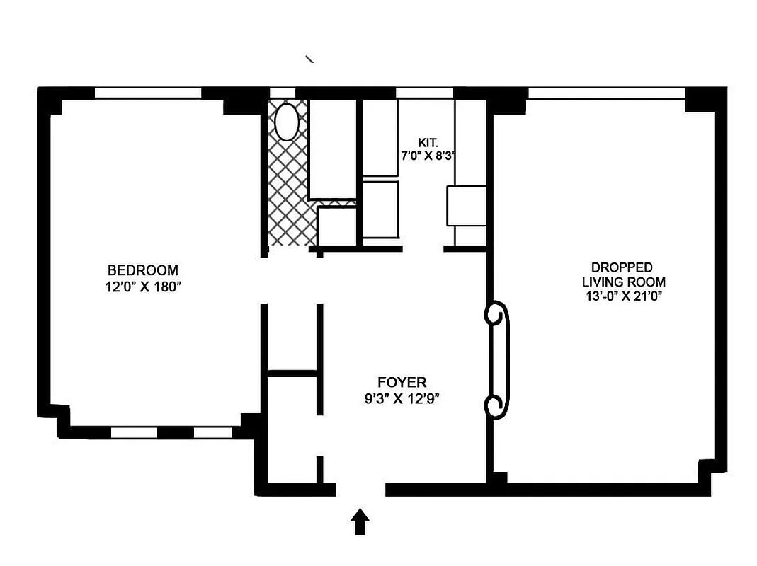
*Elegant and well-proportioned one-bedroom in a prewar doorman building right near Central Park West!*
Entry foyer leads to a sophisticated and oversized sunken living room that easily accommodates gracious living and dining with large Art Deco style windows filled with light.
The windowed kitchen and the windowed bathroom were recently renovated.
Policies
Sorry, policy info isn’t available right now. Check back later.
Home features
Dishwasher
Hardwood floors
Building amenities
Services and facilities
Bike room
Doorman
Elevator
Laundry in building
Live-in super
Wellness and recreation
No info on wellness and recreation
Shared outdoor space
No info on shared outdoor space
About the building
5 West 86th Street
5 West 86th Street, New York, NY 10024
68 units
20 stories
1937 built
Property history
Prices shown are base rent only. For total monthly price and additional fees, see .
| Date | Base rent | Event |
|---|---|---|
9/24/2020 | $3,600 | Delisted by Rachel Realty |
8/11/2020 | $3,600 | Listed by Rachel Realty |
2/25/2020 | $3,695 | |
2/11/2020 | $3,695 | Price decreased by 9% |
2/10/2020 | $4,053 | Price increased by 10% |
Past listing photos
Sign in to take a closer look at how this home compares to similar homes.
Explore Upper West Side
Transit
| Location | Distance |
|---|---|
BCat 86th St | under 500 feet |
BCat 81st St–Museum of Natural History | 0.26 miles |
1at 86th St | 0.37 miles |
BCat 96th St | 0.48 miles |
123at 96th St | 0.52 miles |
About Upper West Side
Rental prices shown are base rent before any fees. Visit listings for cost and fees breakdown.
SalesMedian asking price
1 bed
$772.5K
RentalsMedian asking base rent
1 bed
$4,500
Sandwiched between two beautiful parks, the Upper West Side is one of the greenest spots in Manhattan. For that reason, it is a perennial favorite. The Upper West Side is relaxed, but never dull. There are plenty of low-key bars and restaurants to frequent along Amsterdam Avenue, and Broadway is an always-bustling commercial center. The wide, tree-lined streets still boast many mom-and-pop stores. Less posh than the Upper East Side, it is more easily accessible by public transportation, and real estate prices are just as, if not more, expensive.
Learn more about Upper West SideSimilar homes
Prices shown are base rent only and don't include any fees. Visit each listing to see a complete cost breakdown.
Similar Homes looks at ad spend and other factors like location, price, and number of beds and baths.



























































