View this home virtually
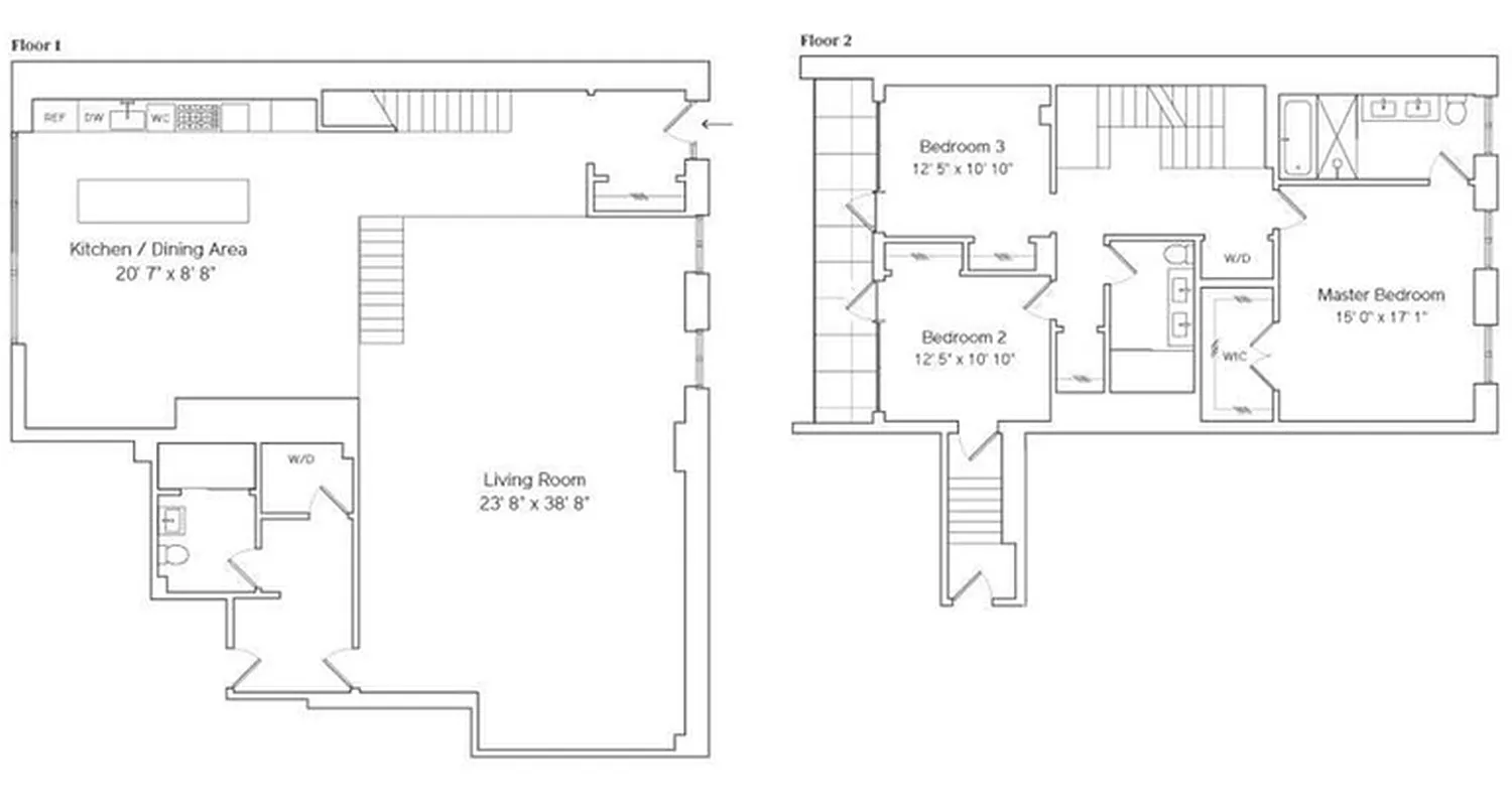
3,473 ft²
$1,295 per ft²
5 rooms
3 beds
3 baths
Condo
- DUMBO
reported sale
Sold on 10/1/2018
Not yet verified by closing records
Seller's agents
This home has been saved by 49 users.
Listing by Halstead Real Estate, 100 Fifth Avenue, New York, NY 10011 | MLS #: 11971075
Common charges
$2,820/mo
Estimated payment
$27,701/mo
Legal disclaimerAll calculations are estimates provided by StreetEasy for informational purposes only. Actual amounts or financing terms may vary. Please contact your mortgage provider for specifics.Taxes
$2,127/mo
Tax abatement
No info
About
Seller’s agent
description
DUMBO TOWNHOUSE IN FULL SERVICE CONDO
Enter off the street or through the lobby of the recently converted 51 Jay Street Condominium to a beautifully finished three story townhouse. An expansive 3,473 SF of interior space with three bedrooms, three full bathrooms and 760 exterior SF that includes a charming balcony that spans the length of the second and third bedrooms and a large roof top terrace...
Policies
Pets allowed
Home features
Dishwasher
Fireplace
Loft
Private outdoor space
Balcony, Terrace
Washer/dryer
Building amenities
Services and facilities
Bike room
Concierge
Doorman
Elevator
Laundry in building
Parking
Storage space
Wellness and recreation
Children's playroom
Gym
Shared outdoor space
Courtyard
Roof deck
About the building
51 Jay Street
51 Jay Street, Brooklyn, NY 11201
75 units
7 stories
2016 built
For sale
2 available units for saleFor rent
1 available units for rentDocuments and permits
View documents and permitsProperty history
- Price Change: No changes
- Days on market: 87 daysThis is the number of days the listing has been on StreetEasy.
| Date | Price | Event |
|---|---|---|
10/1/2018 | $4,500,000 | Sold by Halstead Real Estate |
7/5/2018 | $4,500,000 | In contract |
4/9/2018 | $4,500,000 | Listed by Halstead Real Estate |
Past listing photos
Sign in to take a closer look at how this home compares to similar homes.
Explore DUMBO
Transit
| Location | Distance |
|---|---|
Fat York St | 0.14 miles |
ACat High St | 0.31 miles |
Ferryat Fulton Ferry Landing | 0.45 miles |
23at Clark St | 0.53 miles |
ACFRat Jay St–MetroTech | 0.69 miles |
About DUMBO
Rental prices shown are base rent before any fees. Visit listings for cost and fees breakdown.
SalesMedian asking price
3 beds
$2.96M
RentalsMedian asking base rent
3 beds
$9,750
Dumbo can no longer be labeled "up-and-coming" — it is up and it has come. Narrow cobblestone streets and warehouse spaces offer a raw, industrial appeal. And while designer boutiques and trendy restaurants and bars are everywhere, don't expect a raucous late-night scene. Dumbo caters to those who seek a Tribeca vibe, but want a little distance from the hustle of Downtown Manhattan. It's no surprise that it's now known as a place where established local artists, musicians, and creative types can rub elbows with A-list celebrities.
Learn more about DUMBO





























































































































































