- ft²
4 rooms
2 beds
1 bath
Condo
- Yorkville
Resale
recorded sale
Sold on 8/14/2025
Verified by closing records
Last listed for $885,000
Seller's agent
This home has been saved by 59 users.
Listing by R New York, Limited Liability Broker, 641 Lexington Avenue, New York, NY 10022
Common charges
$1,186/mo
Estimated payment
$7,245/mo
Legal disclaimerAll calculations are estimates provided by StreetEasy for informational purposes only. Actual amounts or financing terms may vary. Please contact your mortgage provider for specifics.Taxes
$893/mo
Tax abatement
No info
About
Seller’s agent
Buyer’s agent
description
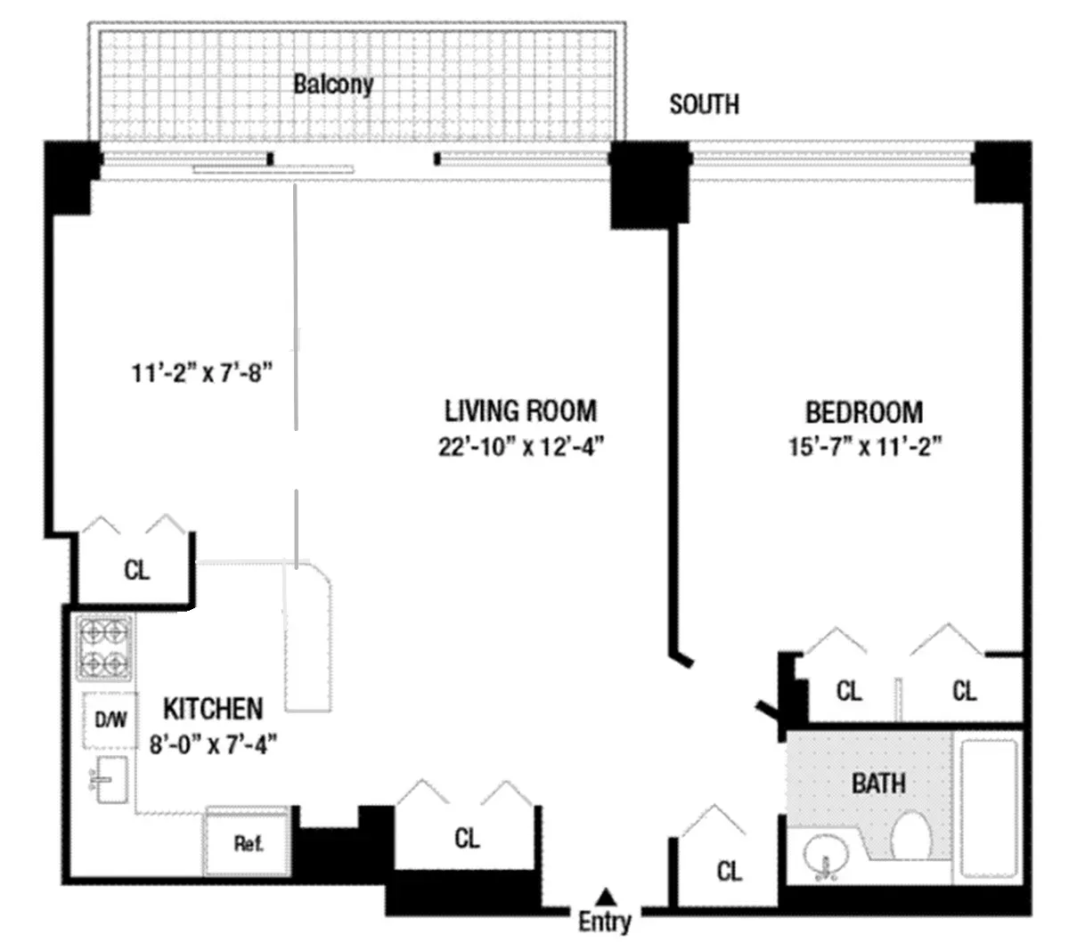
Ease your way into a new day with a morning coffee on your private balcony. Bright and quiet, this spacious Jr4 with southern exposure has been thoughtfully converted into a split 2 bedroom. An ideal sanctuary for living, entertaining, and working from home, 7A features an open remodeled kitchen with breakfast bar, a king size primary bedroom, second bedroom/home office (complete with closet and HVAC unit), oversized windows, marble bath, and ample floor to ceiling closets.
Policies
Pets allowed
Cats and dogs allowed
Home features
Dishwasher
Hardwood floors
Private outdoor space
Balcony
Building amenities
Services and facilities
Bike room
Doorman
Full-time
Elevator
Laundry in building
Live-in super
Parking
Wellness and recreation
No info on wellness and recreation
Shared outdoor space
Roof deck
About the building
510 East 80th Street
510 East 80th Street, New York, NY 10075
91 units
15 stories
1986 built
For sale
4 available units for saleFor rent
0 available units for rentDocuments and permits
View documents and permitsProperty history
- Price Change: No changes
- Days on market: 17 daysThis is the number of days the listing has been on StreetEasy.
| Date | Price | Event |
|---|---|---|
8/14/2025 | $885,000 | Sold by R New York |
6/13/2025 | $885,000 | In contract |
5/27/2025 | $885,000 | Listed by R New York |
10/28/2011 | $580,000 | |
10/31/2011 | $620,000 |
Past listing photos
Sign in to take a closer look at how this home compares to similar homes.
Explore Yorkville
Transit
| Location | Distance |
|---|---|
Qat 86th St | 0.37 miles |
Qat 72nd St | 0.51 miles |
6at 77th St | 0.55 miles |
456at 86th St | 0.62 miles |
Qat 96th St | 0.79 miles |
About Yorkville
Rental prices shown are base rent before any fees. Visit listings for cost and fees breakdown.
SalesMedian asking price
2 beds
$1.35M
RentalsMedian asking base rent
2 beds
$5,750
When George Washington commandeered the building site that would eventually become Gracie Mansion, he probably didn't imagine that this peaceful, riverside enclave would become the lively residential neighborhood it is today. Between then and now, Yorkville has seen a lot of change. Tony mansions and elevated trains went up at the turn of the century and then came down in the postwar years as a middle-class population moved in.
Now, the neighborhood is a haven of high-rise co-ops and condos interspersed with quiet rows of townhouses. The mixed housing stock makes Yorkville a practical choice for anyone seeking a slowed-down Manhattan vibe. Several avenues over from the throngs of Lexington and Third Avenues, Yorkville maintains a low-key, no-frills feel — it's a place where you'll find more diners and donut shops than upscale lounges and boutiques. This homey attitude is writ in its storefronts, where the food is kept simple and the owners are often from around the block.




























































































































































