2,700 ft²
$1,627 per ft²
9 rooms
5 beds
3.5 baths
House
- Yorkville
reported sale
Sold on 9/17/2014
Not yet verified by closing records
Seller's agent
This home has been saved by 13 users.
Listing by Corcoran, Limited Liability Broker, 221 Columbus Avenue, New York, NY 10023 | Brokerage Listing ID: 3164102
Common charges
Not applicable
Estimated payment
$23,849/mo
Legal disclaimerAll calculations are estimates provided by StreetEasy for informational purposes only. Actual amounts or financing terms may vary. Please contact your mortgage provider for specifics.Taxes
$2,029/mo
Tax abatement
No info
About
Seller’s agent
description
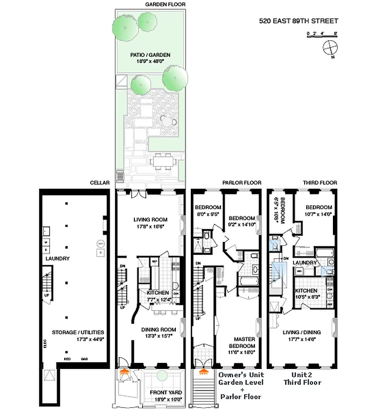
Designed by John G. Prague, 520 East 89th Street is one of a row of 12 houses built in 1875 on land previously owned by John Jacob Astor. This charming lady has the potential of becoming a grande dame with her available air rights. Currently a two family home it can easily be returned to its single family configuration or modified to suit one's needs.
Policies
Sorry, policy info isn’t available right now. Check back later.
Home features
Dishwasher
Fireplace
Private outdoor space
Garden
Washer/dryer
Building amenities
No info on building amenities
About the building
520 East 89th Street
520 East 89th Street, New York, NY 10128
1 unit
7 stories
1875 built
For sale
0 available units for saleFor rent
0 available units for rentDocuments and permits
View documents and permitsProperty history
- Price Change: No changes
- Days on market: 36 daysThis is the number of days the listing has been on StreetEasy.
| Date | Price | Event |
|---|---|---|
7/9/2025 | $12,500,000 | |
4/30/2025 | $12,500,000 | |
10/1/2021 | $495,593 | |
9/17/2014 | $4,250,000 | |
10/20/2014 | $4,395,000 | Sold by Corcoran |
Past listing photos
Sign in to take a closer look at how this home compares to similar homes.
Explore Yorkville
Transit
| Location | Distance |
|---|---|
Qat 86th St | 0.34 miles |
Qat 96th St | 0.43 miles |
456at 86th St | 0.57 miles |
6at 96th St | 0.66 miles |
6at 77th St | 0.81 miles |
About Yorkville
Rental prices shown are base rent before any fees. Visit listings for cost and fees breakdown.
SalesMedian asking price
5 beds
$6M
RentalsMedian asking base rent
5 beds
$8,995
When George Washington commandeered the building site that would eventually become Gracie Mansion, he probably didn't imagine that this peaceful, riverside enclave would become the lively residential neighborhood it is today. Between then and now, Yorkville has seen a lot of change. Tony mansions and elevated trains went up at the turn of the century and then came down in the postwar years as a middle-class population moved in.
Now, the neighborhood is a haven of high-rise co-ops and condos interspersed with quiet rows of townhouses. The mixed housing stock makes Yorkville a practical choice for anyone seeking a slowed-down Manhattan vibe. Several avenues over from the throngs of Lexington and Third Avenues, Yorkville maintains a low-key, no-frills feel — it's a place where you'll find more diners and donut shops than upscale lounges and boutiques. This homey attitude is writ in its storefronts, where the food is kept simple and the owners are often from around the block.











































































































































































































