View this home virtually
- ft²
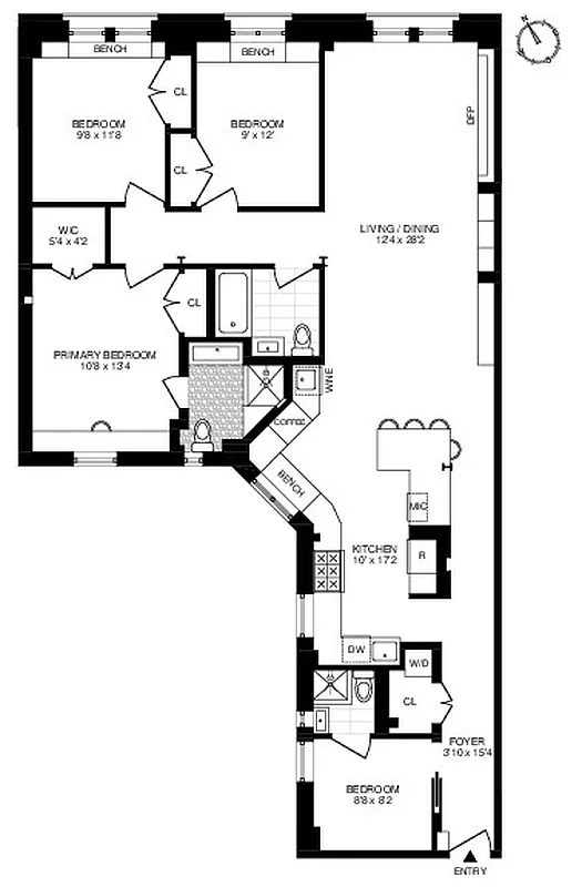
7 rooms
3 beds
3 baths
Co-op
- Morningside Heights
Resale
recorded sale
Sold on 8/6/2024
Verified by closing records
Last listed for $2,095,000
Seller's agents
This home has been saved by 59 users.
Listing by Brown Harris Stevens, Real Estate Principal Office, 100 Seventh Avenue, Brooklyn, NY 11215 | Brokerage Listing ID: 22881177
Maintenance fees
$2,665/mo
Estimated payment
$13,258/mo
Legal disclaimerAll calculations are estimates provided by StreetEasy for informational purposes only. Actual amounts or financing terms may vary. Please contact your mortgage provider for specifics.Taxes
Included in maintenance fees
Tax abatement
No info
About
Seller’s agent
Buyer’s agent
description
*Come home to impeccably renovated apartment #77 at 532 West 111th Street, a large residence on a charming, tree-lined block of the Upper West Side.*
Enter this rare 3 bed/3 bath with office space and discover an airy and open floorplan, boasting 9.4 ft. ceilings. Every detail in this unit has been considered and thoughtfully customized, including a central heat/ HVAC system—an uncommon find in pre-war construction.
Policies
Pets allowed
Cats and dogs allowed
Sublets allowed
Home features
Central air
Dishwasher
Fireplace
Decorative
Hardwood floors
View
City, Skyline
Washer/dryer
Building amenities
Services and facilities
Bike room
Elevator
Laundry in building
Live-in super
Wellness and recreation
No info on wellness and recreation
Shared outdoor space
No info on shared outdoor space
About the building
532 West 111th Street
532 West 111th Street, New York, NY 10025
40 units
8 stories
1910 built
For sale
1 available units for saleFor rent
0 available units for rentDocuments and permits
View documents and permitsProperty history
- Price Change: ↓ $80,000 (-3.7%) on 4/3/24
- Days on market: 85 daysThis is the number of days the listing has been on StreetEasy.
| Date | Price | Event |
|---|---|---|
8/6/2024 | $2,025,000 | Sold by Brown Harris Stevens |
5/16/2024 | $2,095,000 | In contract |
4/3/2024 | $2,095,000 | Price decreased by 4% |
2/21/2024 | $2,175,000 | Listed by Brown Harris Stevens |
5/27/2020 | $1,850,000 |
Past listing photos
Sign in to take a closer look at how this home compares to similar homes.
Explore Morningside Heights
Transit
| Location | Distance |
|---|---|
1at Cathedral Parkway–110th St | under 500 feet |
1at 116th St–Columbia University | 0.29 miles |
1at 103rd St | 0.37 miles |
BCat Cathedral Parkway–110th St | 0.44 miles |
BCat 116th St | 0.52 miles |
About Morningside Heights
Rental prices shown are base rent before any fees. Visit listings for cost and fees breakdown.
SalesMedian asking price
3 beds
$2.43M
RentalsMedian asking base rent
3 beds
$4,943
In many ways, Morningside Heights reminds of Park Slope or the nearby Upper West Side, especially in its ample green space, shady streets, and laid-back, homey feel. What sets Morningside Heights apart, however, is the number of colleges and universities in and near the area.
Learn more about Morningside Heights












































































































