$849,000
For Sale
No longer available 3/6/2013
3,420 ft²
$248 per ft²
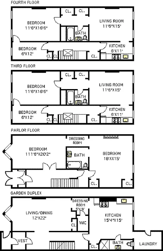
12 rooms
6 beds
4 baths
Three-family home
- Bedford-Stuyvesant
Seller's agents
This home has been saved by 41 users.
Listing by Corcoran, Limited Liability Broker, 245 Bedford Avenue, Brooklyn, NY 11211 | Brokerage Listing ID: 2491270
Common charges
Not applicable
Estimated payment
Taxes
$181/mo
Tax abatement
No info
About
Seller’s agent
description
Kindly contact us via email for more info. Renovated and restored turn of the century 3 Family Brownstone. This income producing Bedford Stuyvesant brownstone has benefitted from a major renovation and is in turn key condition. Currently configured as an owner's duplex and basement plus two 1.5 bedroom full floor rentals, this building makes fantastic sense for owners who like to have supplemental...
Policies
Sorry, policy info isn’t available right now. Check back later.
Home features
No info on home features
Building amenities
No info on building amenities
About the building
533 Greene Avenue
533 Greene Avenue, Brooklyn, NY 11216
3 units
3 stories
1899 built
For sale
0 available units for saleFor rent
0 available units for rentDocuments and permits
View documents and permitsProperty history
- Price Change: No changes
- Days on market: 34 daysThis is the number of days the listing has been on StreetEasy.
| Date | Price | Event |
|---|---|---|
3/13/2014 | $0 | |
3/5/2013 | $0 | |
3/5/2013 | $887,500 | |
3/6/2013 | $849,000 | No longer available |
12/6/2012 | $849,000 | In contract |
Past listing photos
Sign in to take a closer look at how this home compares to similar homes.
Explore Bedford-Stuyvesant
Transit
| Location | Distance |
|---|---|
Gat Bedford–Nostrand Avs | 0.13 miles |
Gat Myrtle–Willoughby Avs | 0.46 miles |
Gat Classon Av | 0.54 miles |
ACat Nostrand Av | 0.57 miles |
ACSat Franklin Av | 0.61 miles |
About Bedford-Stuyvesant
Rental prices shown are base rent before any fees. Visit listings for cost and fees breakdown.
SalesMedian asking price
6 beds
$2.7M
Bedford-Stuyvesant is a vast Brooklyn neighborhood filled with historic brownstones. Fans of Victorian architecture will appreciate the striking abodes in the leafy historic district.
Learn more about Bedford-Stuyvesant

















































































































