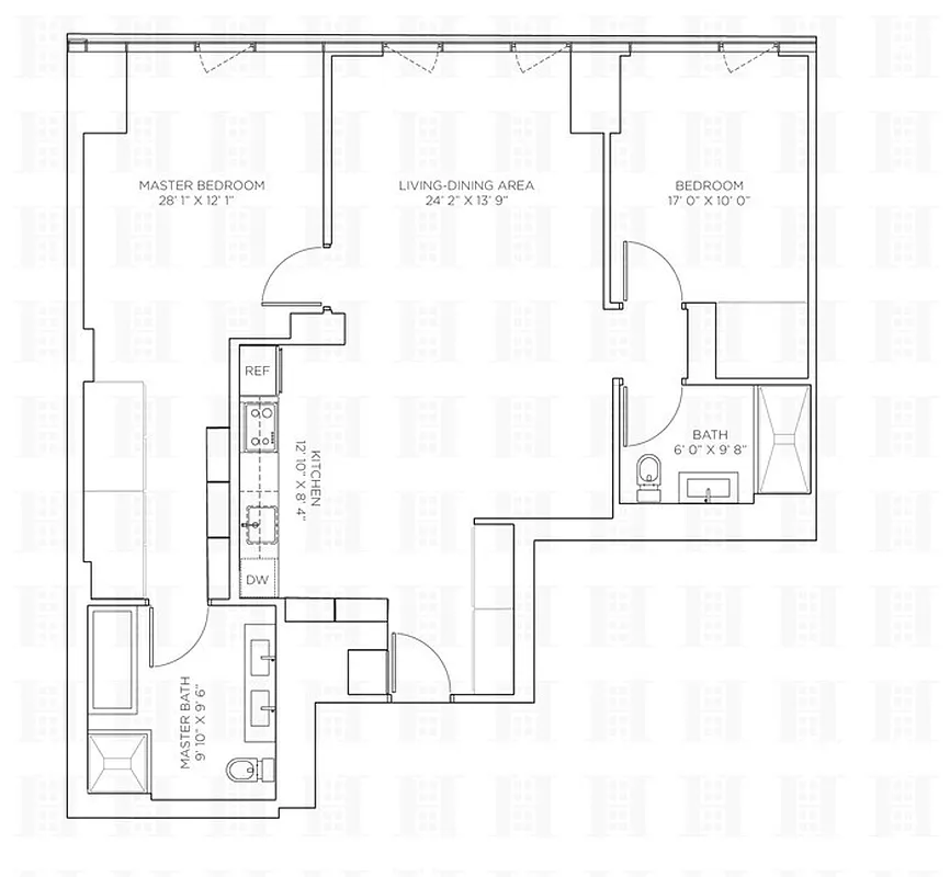
1,206 ft²
$1,591 per ft²
3 rooms
2 beds
2 baths
Condo
- Hell's Kitchen
recorded sale
Sold on 7/15/2015
Verified by closing records
Last listed for $1,885,000
Seller's agents
Halstead Real Estate
Halstead Real Estate
This home has been saved by 1 user.
Listing by Halstead Real Estate | MLS #: 9282507
Common charges
$1,342/mo
Estimated payment
$11,113/mo
Legal disclaimerAll calculations are estimates provided by StreetEasy for informational purposes only. Actual amounts or financing terms may vary. Please contact your mortgage provider for specifics.Taxes
$239/mo
Tax abatement
No info
About
Seller’s agent
Buyer’s agent
description
Contract Signed.
Split two bedroom, two bath.
This elegant 1,206 square foot 2BR/2BA with a highly sought after split bedroom floor plan is awaiting its first owner. The open living space with white oak flooring and a wall of floor to ceiling windows features an open kitchen that was designed and manufactured in Italy
Policies
Pets allowed
Smoke-free
Home features
Central air
Dishwasher
Washer/dryer
Building amenities
Services and facilities
Bike room
Doorman
Elevator
Live-in super
Storage space
Wellness and recreation
Gym
Shared outdoor space
Courtyard
Deck
Roof deck
About the building
540 West
540 West 49th Street, New York, NY 10019
110 units
7 stories
2015 built
For sale
8 available units for saleFor rent
1 available units for rentDocuments and permits
View documents and permitsProperty history
- Price Change: No changes
- Days on market: 113 daysThis is the number of days the listing has been on StreetEasy.
| Date | Price | Event |
|---|---|---|
7/15/2015 | $1,919,401 | Sold by Halstead Real Estate |
7/28/2015 | $1,885,000 | No longer available |
4/6/2015 | $1,885,000 | In contract |
4/6/2015 | $1,885,000 | Listed by Halstead Real Estate |
Past listing photos
Sign in to take a closer look at how this home compares to similar homes.
Explore Hell's Kitchen
Transit
| Location | Distance |
|---|---|
CEat 50th St | 0.41 miles |
ACENQRWS1237at Times Square–42nd St | 0.47 miles |
1at 50th St | 0.54 miles |
Ferryat W 39th Street Ferry Landing | 0.57 miles |
ABCD1at 59th St–Columbus Circle | 0.57 miles |






































































































































