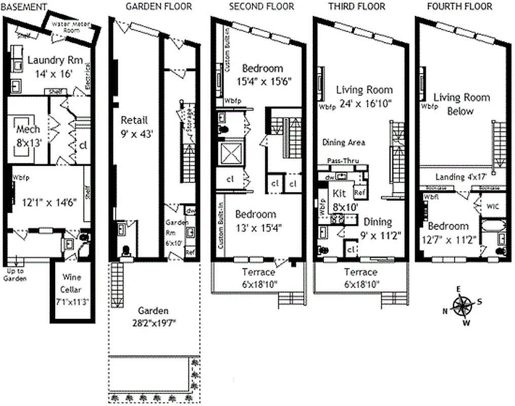
3,600 ft²
$1,736 per ft²
6 rooms
4 beds
3.5 baths
Mixed-use building
- West Village
recorded sale
Sold on 3/3/2014
Verified by closing records
Last listed for $6,750,000
Seller's agents
This home has been saved by 22 users.
Listing by Corcoran, Limited Liability Broker, 220 West 19th Street, New York, NY 10011 | Brokerage Listing ID: 2811717
Common charges
Not applicable
Estimated payment
$36,314/mo
Legal disclaimerAll calculations are estimates provided by StreetEasy for informational purposes only. Actual amounts or financing terms may vary. Please contact your mortgage provider for specifics.Taxes
$1,587/mo
Tax abatement
No info
About
Seller’s agent
Buyer’s agent
description
Built in 1870 and perfectly situated in the heart of the West Village, this income-producing townhouse is one-of-a-kind. Fully renovated, this home functions as a single-family residence with income-producing retail space that more than covers the building expenses. It features a beautiful 600sqft west-facing landscaped garden surrounded by picturesque townhouses and trees. There are four bedrooms and 3.
Policies
Sorry, policy info isn’t available right now. Check back later.
Home features
Fireplace
Building amenities
No info on building amenities
About the building
541 Hudson Street
541 Hudson Street, New York, NY 10014
2 units
3 stories
1950 built
For sale
0 available units for saleFor rent
0 available units for rentDocuments and permits
View documents and permitsProperty history
- Price Change: No changes
- Days on market: 100 daysThis is the number of days the listing has been on StreetEasy.
| Date | Price | Event |
|---|---|---|
5/30/2018 | $6,750,000 | |
3/8/2018 | $7,195,000 | |
1/4/2018 | $7,195,000 | |
10/27/2016 | $7,195,000 | |
10/11/2016 | $8,400,000 |
Past listing photos
Sign in to take a closer look at how this home compares to similar homes.
Explore West Village
Transit
| Location | Distance |
|---|---|
PATHat Christopher Street Station | 0.12 miles |
1at Christopher St–Sheridan Sq | 0.19 miles |
FLM123at 14th St | 0.34 miles |
ABCDEFMat West 4th St | 0.35 miles |
ACELat 8th Av | 0.39 miles |
About West Village
Rental prices shown are base rent before any fees. Visit listings for cost and fees breakdown.
SalesMedian asking price
4 beds
$15.87M
RentalsMedian asking base rent
4 beds
$35,000
Picture a romantic comedy set in New York City: The heroine invariably lives in a cozy walk-up on a cobblestone street in a neighborhood with cute boutiques and trendy cafes on every corner. This movie is set in the West Village. In reality, the West Village is just as picturesque: The neighborhood is tucked between Greenwich Village and the Hudson River and is one of the quietest and most sophisticated pockets of Downtown Manhattan. Primarily residential, with a distinct lack of office buildings, the leafy, off-the-grid streets are peaceful during the day but get livelier at night. That's when well-heeled residents, fashionistas, and literati can all be found mingling over oysters at the area's many low-lit cocktail bars.
Learn more about West Village























































































































































