$6,000,000
For Sale
7,356 ft²
$815 per ft²
20 rooms
8 beds
6.5 baths
Townhouse
- Lincoln Square
Resale
This home has been saved by 174 users.
Listing by Compass, Corporate Broker, 110 5th Avenue, New York, NY 10011
Common charges
Not applicable
Estimated payment
$43,494/mo
Legal disclaimerAll calculations are estimates provided by StreetEasy for informational purposes only. Actual amounts or financing terms may vary. Please contact your mortgage provider for specifics.Taxes
$5,707/mo
Tax abatement
No info
About
Seller’s agent
description
Why live [in] someone else’s dream when you can live [in] your own?
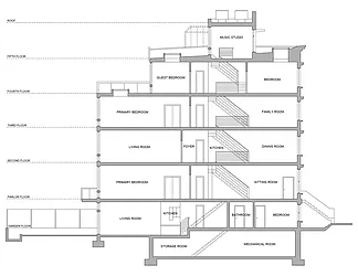
Located on a prime Central Park block, this architect-ready 18-foot wide historic brownstone designed in 1910 by John Sexton is currently 4,947sf and can be expanded to 7,356sf (basement excluded) with approval. The extra deep lot is 18-feet by 102-feet. The property will be delivered vacant.
Policies
Sorry, policy info isn’t available right now. Check back later.
Home features
Central air
Dishwasher
Fireplace
Hardwood floors
Private outdoor space
Garden, Roof deck
View
City
Washer/dryer
Building amenities
Services and facilities
Laundry in building
Wellness and recreation
No info on wellness and recreation
Shared outdoor space
Courtyard
Roof deck
About the building
55 West 71st Street
55 West 71st Street, New York, NY 10023
1 unit
4 stories
1886 built
Property history
- Price Change: No changes
- Days on market: 269 daysThis is the number of days the listing has been on StreetEasy.
| Date | Price | Event |
|---|---|---|
4/1/2025 | $6,000,000 | Listed by Compass |
Sign in to take a closer look at how this home compares to similar homes.
Explore Lincoln Square
Transit
| Location | Distance |
|---|---|
BCat 72nd St | 0.11 miles |
123at 72nd St | 0.24 miles |
1at 66th St–Lincoln Center | 0.28 miles |
BCat 81st St–Museum of Natural History | 0.37 miles |
1at 79th St | 0.5 miles |
About Lincoln Square
Rental prices shown are base rent before any fees. Visit listings for cost and fees breakdown.
SalesMedian asking price
8 beds
$6M
Named after and defined by the Lincoln Center for the Performing Arts, Lincoln Square is home to the New York Philharmonic, the New York City Ballet and the Metropolitan Opera, among many other cultural institutions. The neighborhood blends the prewar architecture and and style of the Upper West Side with modern, tall residential buildings. Great subway access at Columbus Circle and proximity to Midtown make this neighborhood popular with those looking to be in the center of it all.
Learn more about Lincoln Square


















































































































































