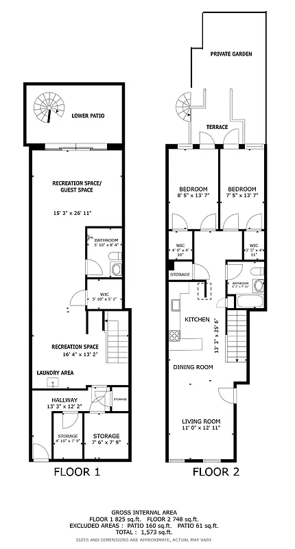
1,573 ft²
$715 per ft²
7 rooms
2 beds
2 baths
Condo
- Stuyvesant Heights
Sponsor unit
Sponsor unitA unit being sold for the first time. It’s typically owned by the building. For condos, this is often the developer. For co-ops, this is often the building’s original owner before it went co-op.
recorded sale
Sold on 5/22/2025
Verified by closing records
Last listed for $1,115,000
Seller's agents
This home has been saved by 101 users.
Listing by Keller Williams Realty Empire, Limited Liability Broker, 8508 3rd Avenue, Brooklyn, NY 11209
Common charges
$600/mo
Estimated payment
$6,287/mo
Legal disclaimerAll calculations are estimates provided by StreetEasy for informational purposes only. Actual amounts or financing terms may vary. Please contact your mortgage provider for specifics.Taxes
$49/mo
Tax abatement
No info
About
Seller’s agent
Buyer’s agent
description
Bedford Stuyvesant Boutique Condo with Tax Abatement, a classic Brooklyn Brownstone, reimagined for today. 583 Putnam, with gated front garden and stunning late 19th-century facade, Italianate in style, welcomes owners into four distinct residences. Each suite offers soaring ceilings, oversized windows, recessed lighting, and rustic wide plank flooring that compliments every design choice.
Policies
Sorry, policy info isn’t available right now. Check back later.
Home features
Central air
Dishwasher
Fireplace
Hardwood floors
Private outdoor space
Balcony, Garden, Terrace
View
City, Garden
Building amenities
Services and facilities
Laundry in building
Wellness and recreation
No info on wellness and recreation
Shared outdoor space
Courtyard
Roof deck
About the building
583 Putnam Avenue
583 Putnam Avenue, Brooklyn, NY 11221
4 units
4 stories
1901 built
For sale
2 available units for saleFor rent
0 available units for rentDocuments and permits
View documents and permitsProperty history
- Price Change: ↓ $35,000 (-3.0%) on 12/17/24
- Days on market: 149 daysThis is the number of days the listing has been on StreetEasy.
| Date | Price | Event |
|---|---|---|
5/22/2025 | $1,125,262 | Sold by Keller Williams Realty Empire |
3/5/2025 | $1,115,000 | In contract |
12/17/2024 | $1,115,000 | Price decreased by 3% |
10/7/2024 | $1,150,000 | Listed by Keller Williams Realty Empire |
Past listing photos
Sign in to take a closer look at how this home compares to similar homes.
Explore Stuyvesant Heights
Transit
| Location | Distance |
|---|---|
ACat Kingston–Throop | 0.41 miles |
ACat Utica Av | 0.52 miles |
ACat Nostrand Av | 0.7 miles |
Jat Kosciusko St | 0.71 miles |
LIRRat Nostrand Avenue | 0.74 miles |






























































































