$8,400
For Rent
Base rent only. For total monthly price and additional fees, see .
Rented 5/21/2025
1,700 ft²
$59 per ft²
6 rooms
3 beds
2 baths
Three-family home
- Williamsburg
Under NYC law, you can't be charged a broker fee if you didn't hire a broker.
Listed By
Owner
This home has been saved by 22 users.
Listing by Owner
Unavailable
Rented on 5/21/2025
Days on market
6 days
Last price change
No changes
About
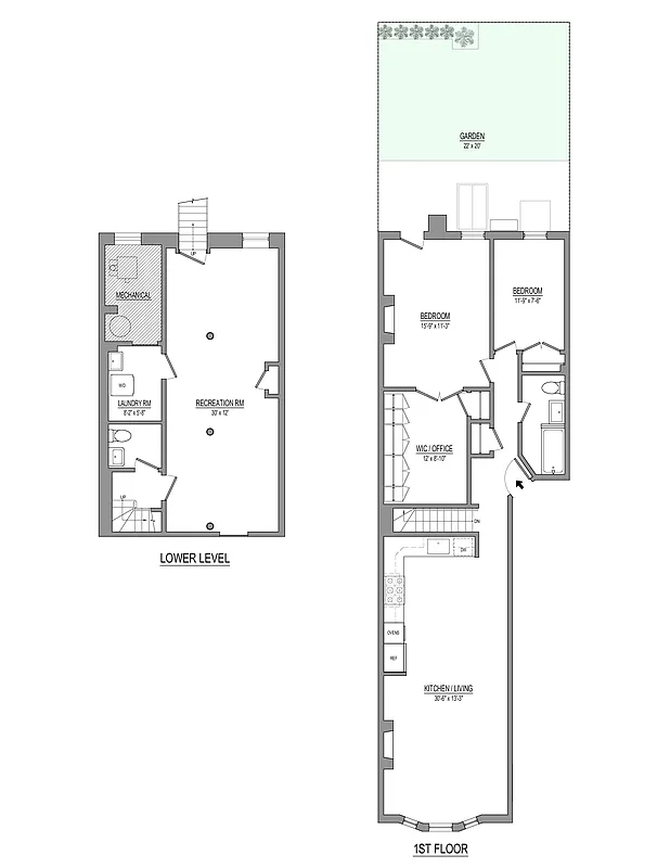
Enormous duplex with backyard - No broker fee. The apartment is sprawling with oversized rooms, 1,700 SF of indoor space and a 440 SF private backyard in the heart of Williamsburg. 2BR+office+rec room. Available July 1 or earlier.
The apartment is located in a historic townhouse that was built in 1891 and was recently gut renovated.
Policies
Sorry, policy info isn’t available right now. Check back later.
Home features
Central air
Dishwasher
Fireplace
Hardwood floors
Private outdoor space
Garden
View
Garden
Washer/dryer
Building amenities
Services and facilities
Laundry in building
Package room
Wellness and recreation
No info on wellness and recreation
Shared outdoor space
Courtyard
About the building
588 Lorimer Street
588 Lorimer Street, Brooklyn, NY 11211
3 units
3 stories
1899 built
Property history
Prices shown are base rent only. For total monthly price and additional fees, see .
| Date | Base rent | Event |
|---|---|---|
5/21/2025 | $8,400 | Rented by Owner |
5/15/2025 | $8,400 | Listed by Owner |
12/29/2017 | $3,995 | |
12/20/2017 | $3,995 | Price decreased by 4% |
12/14/2017 | $4,150 |
Past listing photos
Sign in to take a closer look at how this home compares to similar homes.
Explore Williamsburg
Transit
| Location | Distance |
|---|---|
GLat Lorimer St | under 500 feet |
GLat Metropolitan Av | 0.12 miles |
Lat Graham Av | 0.24 miles |
Lat Bedford Av | 0.41 miles |
Lat Grand St | 0.46 miles |
About Williamsburg
Rental prices shown are base rent before any fees. Visit listings for cost and fees breakdown.
SalesMedian asking price
3 beds
$2.89M
RentalsMedian asking base rent
3 beds
$6,000
Williamsburg is Brooklyn's booming epicenter with a well-deserved and worldwide reputation for being an influential hub thanks to a thriving cultural scene. Here you will find eye-catching new construction, brownstones, and prewars sitting next to historic buildings on streets dotted with restaurants, art spaces, boutiques, and more. With a Manhattan-facing waterfront (hello Domino Park!) and its large weekend markets (we're talking about you, Smorgasburg, and Artists & Fleas), the neighborhood is ideal for strolling and people watching. Another fringe benefit is Williamsburg's proximity to Manhattan via the G, L, M, and N subway lines.
Learn more about WilliamsburgSimilar homes
Prices shown are base rent only and don't include any fees. Visit each listing to see a complete cost breakdown.
Similar Homes looks at ad spend and other factors like location, price, and number of beds and baths.






















































































































































