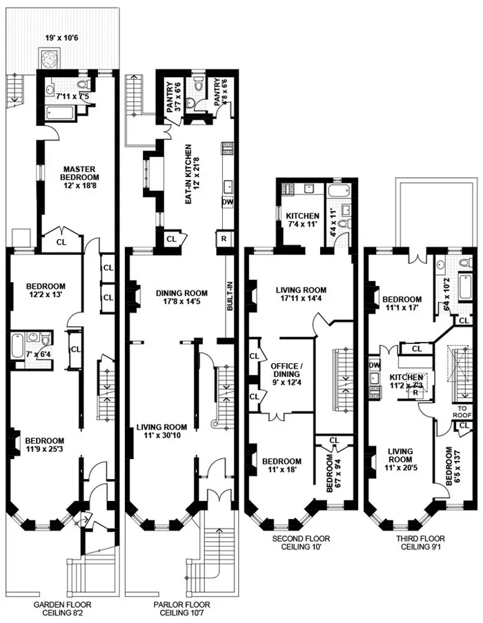
4,500 ft²
$857 per ft²
15 rooms
8 beds
4.5 baths
House
- Park Slope
recorded sale
Sold on 3/2/2016
Verified by closing records
Last listed for $3,975,000
Seller's agent
This home has been saved by 53 users.
Listing by Brown Harris Stevens, Real Estate Principal Office, 100 Seventh Avenue, Brooklyn, NY 11215 | MLS #: 12722616
Common charges
Not applicable
Estimated payment
$20,400/mo
Legal disclaimerAll calculations are estimates provided by StreetEasy for informational purposes only. Actual amounts or financing terms may vary. Please contact your mortgage provider for specifics.Taxes
No info
Tax abatement
No info
About
Seller’s agent
Buyer’s agent
description
CONTRACT SIGNED
My One and Only....
This 15 room limestone townhouse is located on one of the most prime "park" blocks in Park Slope. Offering approximately 4,500 square feet of living space, the home is currently configured as a lower three bedroom two and one half bath duplex with two high income two bedroom rentals on the top two floors. The home has a south garden as well as an area on the third floor over an extension for one to create a lovely terrace.
Policies
Sorry, policy info isn’t available right now. Check back later.
Home features
Private outdoor space
Garden, Terrace
Building amenities
Services and facilities
No info on services and facilities
Wellness and recreation
No info on wellness and recreation
Shared outdoor space
Deck
About the building
600 2nd Street
600 2nd Street, Brooklyn, NY 11215
1 unit
3 stories
1903 built
For sale
0 available units for saleFor rent
0 available units for rentDocuments and permits
View documents and permitsProperty history
- Price Change: No changes
- Days on market: 108 daysThis is the number of days the listing has been on StreetEasy.
| Date | Price | Event |
|---|---|---|
7/15/2025 | $7,600,000 | |
5/20/2025 | $7,990,000 | |
4/21/2025 | $7,990,000 | Price decreased by 11% |
3/13/2025 | $8,995,000 | |
2/27/2025 | $10,000,000 |
Past listing photos
Sign in to take a closer look at how this home compares to similar homes.
Explore Park Slope
Transit
| Location | Distance |
|---|---|
Fat 7th Av | 0.32 miles |
23at Grand Army Plaza | 0.44 miles |
BQat 7th Av | 0.56 miles |
23at Eastern Parkway–Brooklyn Museum | 0.59 miles |
Fat Prospect Park–15 St | 0.61 miles |
About Park Slope
Rental prices shown are base rent before any fees. Visit listings for cost and fees breakdown.
SalesMedian asking price
8 beds
$3.85M
Park Slope has a tranquil, easygoing vibe and can almost feel suburban. Strollers and children of all ages are a constant presence on sidewalks, as are shoppers patronizing local boutiques and dog walkers heading up to the park. Residents are Brooklynites through and through and tend to be socially conscious, artistically minded, and committed to their community. At night, a casual restaurant scene comes alive. For anyone looking for a night out, there are plenty of beer gardens and wine bars to patronize, especially in the South Slope, but don't go looking for dance clubs.
Learn more about Park Slope













































































































































































































































































































