Skip Navigation

- ft²

3 rooms

1 bed

1 bath

reported sale

Sold on 9/26/2013

Not yet verified by closing records

Sign in to view price

Seller's agent

Pro
Julie Sikar

Continent Realty LLC

WANT TO STAY UPDATED?Save this home for email and push notifications on price and more.

This home has been saved by 1 user.

Listing by Continent Realty LLC, Limited Liability Broker | Brokerage Listing ID: 375317

Common charges

$320/mo

Estimated payment

$2,338/mo

Legal disclaimerAll calculations are estimates provided by StreetEasy for informational purposes only. Actual amounts or financing terms may vary. Please contact your mortgage provider for specifics.

Taxes

No info

Tax abatement

No info

About

Seller’s agent

/

Julie Sikar

Unknown

Continent Realty LLC

description

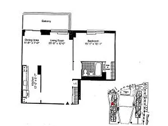
THE LARGEST 1 BED LINE IN THE BUILDING. BED W A WALK IN COSET, LARGE LIVING ROOM,LARGE TERRACE. BEAUTIFUL BEACH, CONEY ISLAND&MANHATTAN VIEWS.CLOSE TO PARK,SCHOOL,SHOPPING AND TRANSPORTATION. LOW MAINT INCLUDES AL UTILITIES AND PARKING NEEDS SOME TLC. BUILDING HAS OLYMPIC SIZE POOL AND 24 HR SECURITY

Policies

Sorry, policy info isn’t available right now. Check back later.

Home features

No info on home features

Building amenities

Services and facilities

  • Doorman

    Full-time

  • Elevator

  • Live-in super

Wellness and recreation

  • Swimming pool

Shared outdoor space

No info on shared outdoor space

About the building

601 Surf Avenue

601 Surf Avenue, Brooklyn, NY 11224

Condo building in Coney Island

734 units

24 stories

1964 built

Property history

  • Price Change: ↓ $21,000 (-5.0%) on 7/17/13
  • Days on market: 246 daysThis is the number of days the listing has been on StreetEasy.
DatePriceEvent

9/27/2013

$399,000

Sold by Continent Realty LLC

9/26/2013

$399,000

No longer available

7/17/2013

$399,000

Price decreased by 5%

3/12/2013

$420,000

Price decreased by 2%

1/23/2013

$429,000

Listed by Continent Realty LLC

Past listing photos

Sign in to take a closer look at how this home compares to similar homes.

Explore Coney Island

Transit

LocationDistance

FQat West 8th St–NY Aquarium

under 500 feet

Qat Ocean Parkway

0.27 miles

Fat Neptune Av–Van Siclen

0.32 miles

DFNQat Coney Island–Stillwell Av

0.34 miles

BQat Brighton Beach

0.67 miles