- ft²
3 rooms
Studio
1 bath
Co-op
- West Village
Resale
recorded sale
Sold on 3/22/2021
Verified by closing records
Last listed for $975,000
Seller's agents
This home has been saved by 90 users.
Listing by Keller Williams NYC, Limited Liability Broker, 5 West 37th Street, New York, NY 10018
Maintenance fees
$1,202/mo
Estimated payment
$6,132/mo
Legal disclaimerAll calculations are estimates provided by StreetEasy for informational purposes only. Actual amounts or financing terms may vary. Please contact your mortgage provider for specifics.Taxes
Included in maintenance fees
Tax abatement
No info
About
Seller’s agent
Buyer’s agent
description
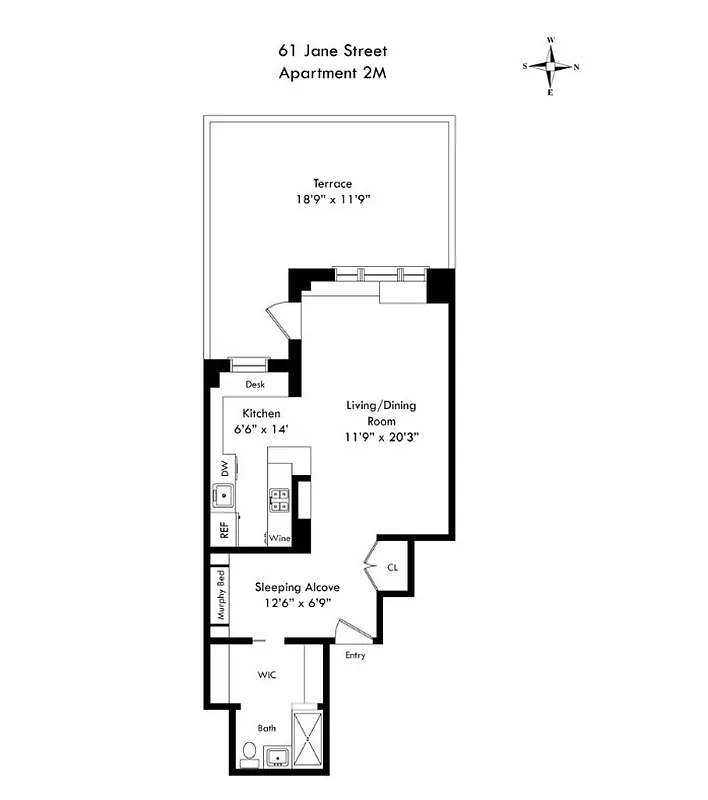
Welcome to the newly renovated sun-flooded alcove studio with over 350 square feet of private outdoor space!
Upon entering the unit you are greeted with a spacious living and dining rooms with a view of a private terrace in front and well-positioned sleeping alcove space on the left. The living and dining spaces complement each other and make it very easy to pass to the kitchen or to the outdoor space.
Policies
Co-purchase allowed
Gifts allowed
Guarantors accepted
Pets allowed
Cats and dogs allowed
Pied-a-terre allowed
Sublets allowed
Home features
Dishwasher
Hardwood floors
Private outdoor space
Balcony, Garden, Terrace
View
Garden
Building amenities
Services and facilities
Bike room
Concierge
Doorman
Full-time
Elevator
Laundry in building
Parking
Garage
Wheelchair access
Wellness and recreation
No info on wellness and recreation
Shared outdoor space
Roof deck
About the building
61 Jane Street
61 Jane Street, New York, NY 10014
261 units
19 stories
1963 built
For sale
8 available units for saleFor rent
0 available units for rentDocuments and permits
View documents and permitsProperty history
- Price Change: No changes
- Days on market: 75 daysThis is the number of days the listing has been on StreetEasy.
| Date | Price | Event |
|---|---|---|
3/22/2021 | $940,000 | Sold by Keller Williams NYC |
12/4/2020 | $975,000 | In contract |
11/30/2020 | $975,000 | No longer available |
9/16/2020 | $975,000 | Listed by Keller Williams NYC |
8/1/2016 | $1,295,000 |
Past listing photos
Sign in to take a closer look at how this home compares to similar homes.
Explore West Village
Transit
| Location | Distance |
|---|---|
ACELat 8th Av | 0.19 miles |
ACELat 14th St | 0.2 miles |
FLM123at 14th St | 0.28 miles |
1at Christopher St–Sheridan Sq | 0.36 miles |
PATHat Christopher Street Station | 0.37 miles |
About West Village
Rental prices shown are base rent before any fees. Visit listings for cost and fees breakdown.
SalesMedian asking price
Studio
$585K
RentalsMedian asking base rent
Studio
$4,663
Picture a romantic comedy set in New York City: The heroine invariably lives in a cozy walk-up on a cobblestone street in a neighborhood with cute boutiques and trendy cafes on every corner. This movie is set in the West Village. In reality, the West Village is just as picturesque: The neighborhood is tucked between Greenwich Village and the Hudson River and is one of the quietest and most sophisticated pockets of Downtown Manhattan. Primarily residential, with a distinct lack of office buildings, the leafy, off-the-grid streets are peaceful during the day but get livelier at night. That's when well-heeled residents, fashionistas, and literati can all be found mingling over oysters at the area's many low-lit cocktail bars.
Learn more about West Village

































































































