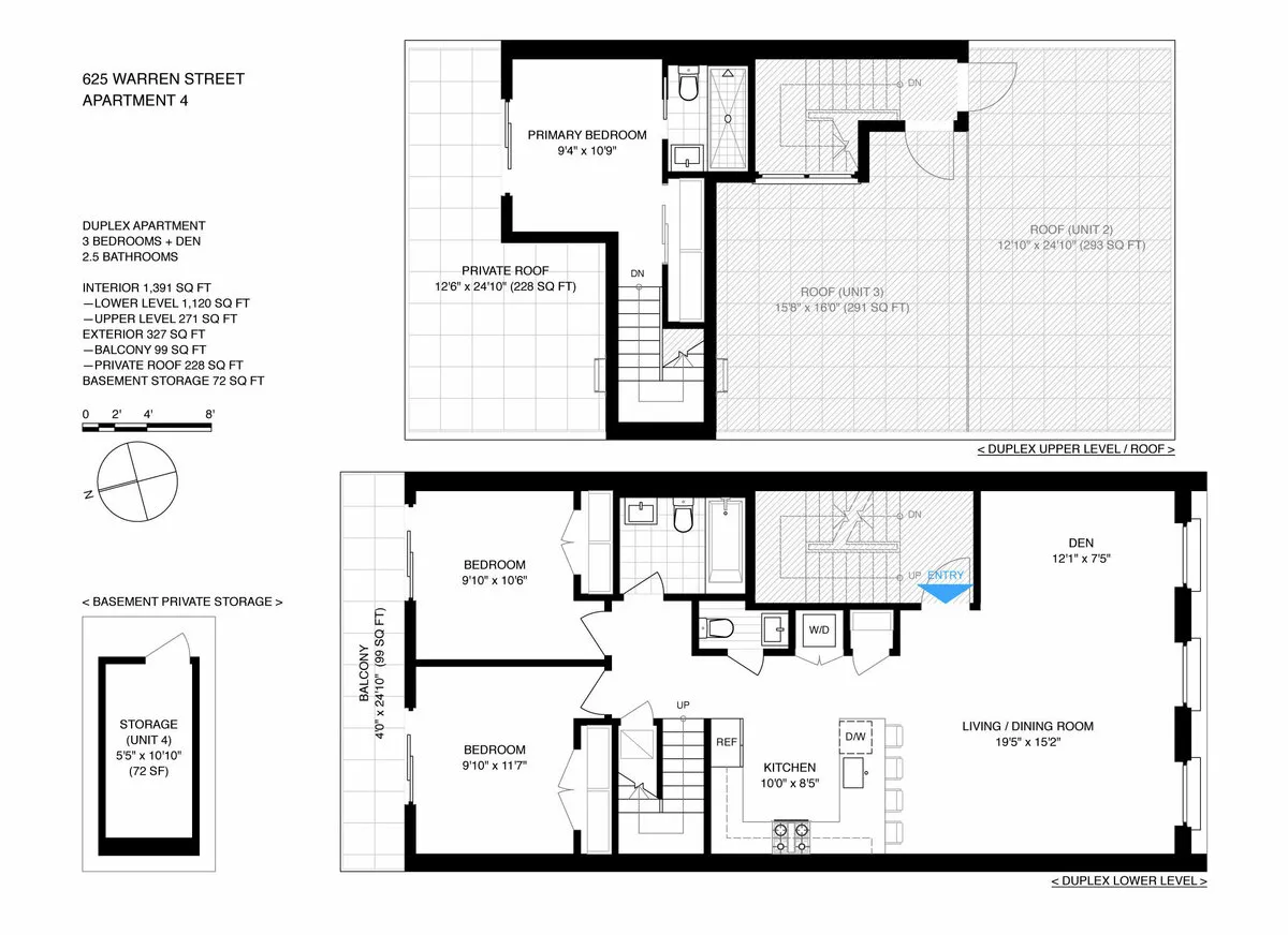
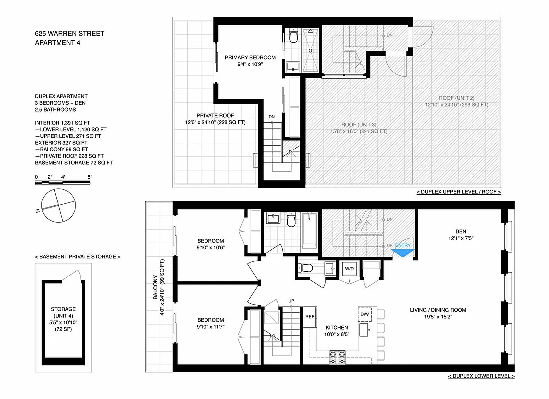
1,391 ft²
$1,531 per ft²
10 rooms
3 beds
2.5 baths
Condo
- Park Slope
Sponsor unit
Sponsor unitA unit being sold for the first time. It’s typically owned by the building. For condos, this is often the developer. For co-ops, this is often the building’s original owner before it went co-op.
recorded sale
Sold on 1/5/2022
Verified by closing records
Last listed for $2,100,000
Seller's agents
This home has been saved by 58 users.
Listing by Douglas Elliman, Limited Liability Broker, 237 Smith Street, Brooklyn, NY 11231 | Brokerage Listing ID: 20979740
Common charges
$606/mo
Estimated payment
$12,237/mo
Legal disclaimerAll calculations are estimates provided by StreetEasy for informational purposes only. Actual amounts or financing terms may vary. Please contact your mortgage provider for specifics.Taxes
$989/mo
Tax abatement
No info
About
Seller’s agent
Buyer’s agent
description
On one of the most desirable blocks in the North Slope, 625 Warren Street is an impeccable new boutique condominium. This 25 foot wide modern Tudor style building greets you with superb curb appeal and is one of the most striking new buildings built in Park Slope in recent memory.
Residence 4 is a huge penthouse duplex with ample private outdoor space. The home greets you with a massive living room with beautiful dormer-style windows.
Policies
Pets allowed
Home features
Central air
Dishwasher
Hardwood floors
Private outdoor space
Balcony, Terrace
View
Garden, Skyline
Washer/dryer
Building amenities
Services and facilities
Doorman
Virtual
Storage space
Wellness and recreation
No info on wellness and recreation
Shared outdoor space
No info on shared outdoor space
About the building
625 Warren Street
625 Warren Street, Brooklyn, NY 11217
4 units
4 stories
2021 built
For sale
0 available units for saleFor rent
0 available units for rentDocuments and permits
View documents and permitsProperty history
- Price Change: No changes
- Days on market: 14 daysThis is the number of days the listing has been on StreetEasy.
| Date | Price | Event |
|---|---|---|
1/5/2022 | $2,129,925 | Sold by Douglas Elliman |
6/18/2021 | $2,100,000 | In contract |
6/4/2021 | $2,100,000 | Listed by Douglas Elliman |
Past listing photos
Sign in to take a closer look at how this home compares to similar homes.
Explore Park Slope
Transit
| Location | Distance |
|---|---|
23at Bergen St | 0.2 miles |
BDNQR2345at Atlantic Av–Barclays Ctr | 0.2 miles |
LIRRat Atlantic Terminal | 0.26 miles |
Rat Union St | 0.33 miles |
BQat 7th Av | 0.42 miles |
About Park Slope
Rental prices shown are base rent before any fees. Visit listings for cost and fees breakdown.
SalesMedian asking price
3 beds
$2.35M
RentalsMedian asking base rent
3 beds
$6,170
Park Slope has a tranquil, easygoing vibe and can almost feel suburban. Strollers and children of all ages are a constant presence on sidewalks, as are shoppers patronizing local boutiques and dog walkers heading up to the park. Residents are Brooklynites through and through and tend to be socially conscious, artistically minded, and committed to their community. At night, a casual restaurant scene comes alive. For anyone looking for a night out, there are plenty of beer gardens and wine bars to patronize, especially in the South Slope, but don't go looking for dance clubs.
Learn more about Park Slope































































































































































