$5,550
For Rent
Base rent only. For total monthly price and additional fees, see .
Rented 5/29/2025
1,400 ft²
$47 per ft²
4 rooms
2 beds
1.5 baths
Condo
- Bedford-Stuyvesant
Under NYC law, you can't be charged a broker fee if you didn't hire a broker.
Listed By
This home has been saved by 18 users.
Listing by Charney Real Estate LLC, Real Estate Principal Office, 5-26 46th Avenue, Long Island City, NY 11101
Unavailable
Rented on 5/29/2025
Days on market
11 days
Last price change
No changes
About
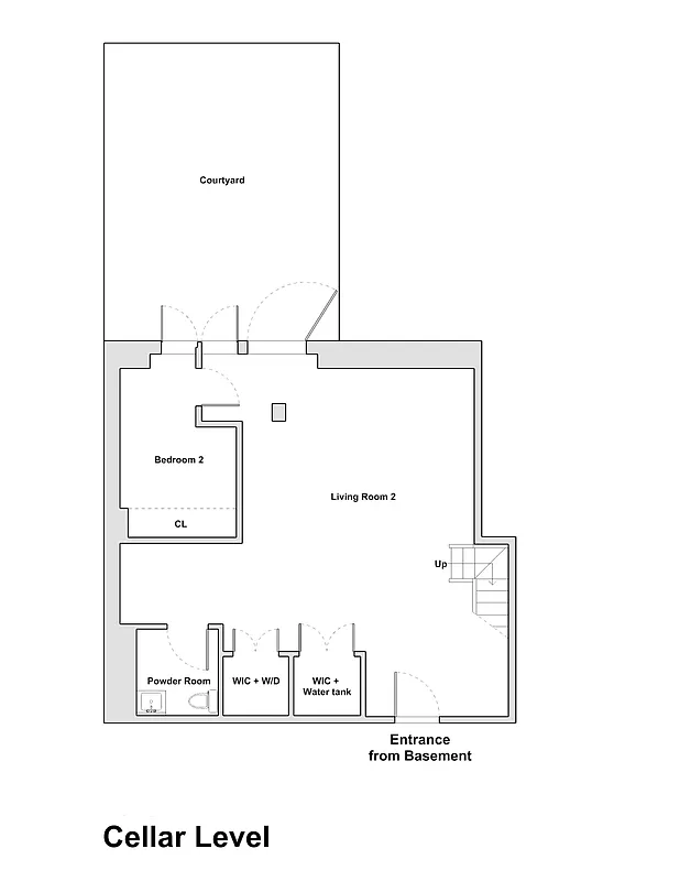
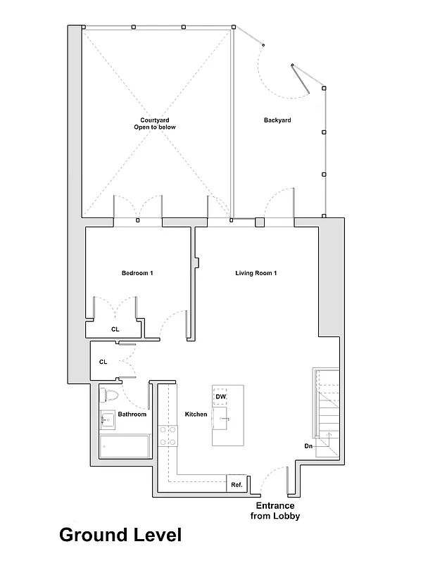
Nestled at the intersection of vibrant Clinton Hill and historic Bedford-Stuyvesant, this expansive (1,400 sq ft) 2-bedroom, 1.5-bathroom duplex with two private outdoor spaces and private parking (available for an additional fee) offers a rare combination of space, design, comfort, and unbeatable location. With its separate entrances, generous layout, and seamless indoor-outdoor living, this home feels more like a modern townhouse than a typical apartment.
Policies
Sorry, policy info isn’t available right now. Check back later.
Home features
Dishwasher
Hardwood floors
Private outdoor space
Balcony, Garden, Terrace
View
Garden
Washer/dryer
Building amenities
Services and facilities
Bike room
Doorman
Virtual
Elevator
Package room
Parking
Garage
Storage space
Locker/cage
Wellness and recreation
Gym
Shared outdoor space
Courtyard
Roof deck
About the building
627 Dekalb Avenue
627 Dekalb Avenue, Brooklyn, NY 11216
35 units
7 stories
2018 built
Property history
Prices shown are base rent only. For total monthly price and additional fees, see .
| Date | Base rent | Event |
|---|---|---|
5/29/2025 | $5,550 | Rented by Charney Real Estate LLC |
5/24/2025 | $5,550 | In contract |
5/13/2025 | $5,550 | Listed by Charney Real Estate LLC |
Past listing photos
Sign in to take a closer look at how this home compares to similar homes.
Explore Bedford-Stuyvesant
Transit
| Location | Distance |
|---|---|
Gat Bedford–Nostrand Avs | 0.11 miles |
Gat Myrtle–Willoughby Avs | 0.28 miles |
Gat Classon Av | 0.5 miles |
Gat Flushing Av | 0.56 miles |
ACSat Franklin Av | 0.75 miles |
About Bedford-Stuyvesant
Rental prices shown are base rent before any fees. Visit listings for cost and fees breakdown.
SalesMedian asking price
2 beds
$1.18M
RentalsMedian asking base rent
2 beds
$3,800
Bedford-Stuyvesant is a vast Brooklyn neighborhood filled with historic brownstones. Fans of Victorian architecture will appreciate the striking abodes in the leafy historic district.
Learn more about Bedford-StuyvesantSimilar homes
Prices shown are base rent only and don't include any fees. Visit each listing to see a complete cost breakdown.
Similar Homes looks at ad spend and other factors like location, price, and number of beds and baths.





































































































































