Skip Navigation

$22,000,000

For Sale

No longer available 1/25/2014

- ft²

2 rooms

Studio

0 baths

Seller's agents

Abigail Agranat

Licensed Associate Real Estate Broker

Douglas Elliman

Jan Hashey

Licensed Associate Real Estate Broker

Douglas Elliman

Steve Halprn

Licensed Associate Real Estate Broker

Douglas Elliman

WANT TO STAY UPDATED?Save this home for email and push notifications on price and more.

This home has been saved by 22 users.

Listing by Douglas Elliman, Limited Liability Broker, 111 5th Avenue, New York, NY 10003 | Brokerage Listing ID: 1637748

Common charges

Not applicable

Estimated payment

$111,244/mo

Legal disclaimerAll calculations are estimates provided by StreetEasy for informational purposes only. Actual amounts or financing terms may vary. Please contact your mortgage provider for specifics.

Taxes

No info

Tax abatement

No info

About

Seller’s agent

/

Abigail Agranat

Licensed Associate Real Estate Broker

Douglas Elliman

Jan Hashey

Licensed Associate Real Estate Broker

Douglas Elliman

Steve Halprn

Licensed Associate Real Estate Broker

Douglas Elliman

description

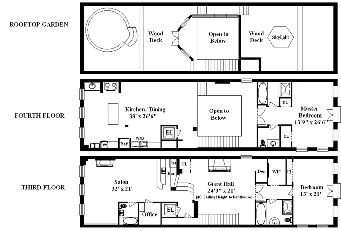
Exquisite building with fascinating history!Beyond words, in a class of its own stands this brilliant example of adaptive reuse, from sausage factory to palazzo,stunning in its intriguing complexity and fascinating in its alluring detail.This 8000 SF building comprises a sensational triplex with a central 40 foot atrium and a grand staircase + elevator leading up to a solarium and a magical roof garden, shaded by mature trees and flowering plants.

Policies

Sorry, policy info isn’t available right now. Check back later.

Home features

No info on home features

Building amenities

Sorry, building amenities aren't available right now. Check back later.

About the building

632 Hudson Street

632 Hudson Street, New York, NY 10014

Commercial building inWest Village

2 units

4 stories

1900 built

Property history

  • Price Change: No changes
  • Days on market: 130 daysThis is the number of days the listing has been on StreetEasy.
DatePriceEvent

1/25/2014

$22,000,000

No longer available

9/18/2013

$22,000,000

Listed by Douglas Elliman

9/11/2013

$22,000,000

No longer available

9/10/2013

$22,000,000

Listed by Douglas Elliman

Sign in to take a closer look at how this home compares to similar homes.

Explore West Village

Transit

LocationDistance

ACELat 8th Av

0.16 miles

ACELat 14th St

0.17 miles

FLM123at 14th St

0.24 miles

1at Christopher St–Sheridan Sq

0.35 miles

PATHat Christopher Street Station

0.38 miles

About West Village

Rental prices shown are base rent before any fees. Visit listings for cost and fees breakdown.

SalesMedian asking price

Studio

$585K

RentalsMedian asking base rent

Studio

$4,663

Picture a romantic comedy set in New York City: The heroine invariably lives in a cozy walk-up on a cobblestone street in a neighborhood with cute boutiques and trendy cafes on every corner. This movie is set in the West Village. In reality, the West Village is just as picturesque: The neighborhood is tucked between Greenwich Village and the Hudson River and is one of the quietest and most sophisticated pockets of Downtown Manhattan. Primarily residential, with a distinct lack of office buildings, the leafy, off-the-grid streets are peaceful during the day but get livelier at night. That's when well-heeled residents, fashionistas, and literati can all be found mingling over oysters at the area's many low-lit cocktail bars.

Learn more about West Village