- ft²
2 rooms
Studio
0 baths
House
- West Village
Resale
recorded sale
Sold on 2/1/2016
Verified by closing records
Last listed for $7,600,000
Seller's agents
This home has been saved by 78 users.
Listing by Brown Harris Stevens, Real Estate Principal Office, 445 Park Avenue, New York, NY 10022 | MLS #: 12518648
Common charges
Not applicable
Estimated payment
$38,931/mo
Legal disclaimerAll calculations are estimates provided by StreetEasy for informational purposes only. Actual amounts or financing terms may vary. Please contact your mortgage provider for specifics.Taxes
No info
Tax abatement
No info
About
Sellerâs agent
description
CONTRACT SIGNED
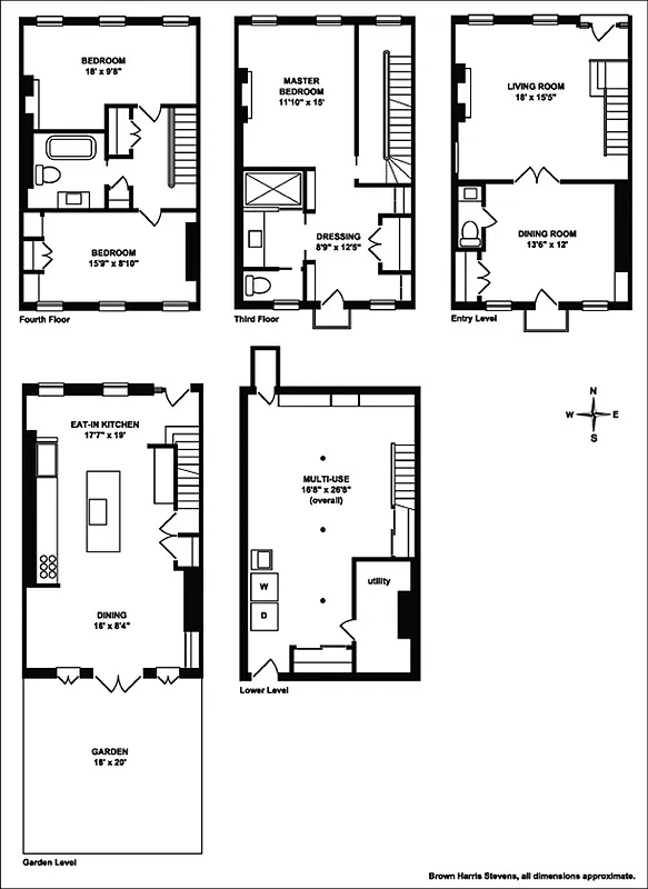
19 Foot Federal on Horatio
This 1846 merchant's townhouse has been lovingly restored and updated for modern living. It is an exquisite jewel box of elegant proportions in mint condition. The garden level entry has an open chef's kitchen with stone countertops, custom cabinetry and a fabulous hammered copper sink. The dining area opens to the south-facing private garden designed by Paula Hayes.
Policies
Sorry, policy info isnât available right now. Check back later.
Home features
Private outdoor space
Balcony, Garden
Building amenities
Services and facilities
Storage space
Wellness and recreation
Hot tub
Shared outdoor space
No info on shared outdoor space
About the building
64 Horatio Street
64 Horatio Street, New York, NY 10014
1 unit
2 stories
1841 built
For sale
0 available units for saleFor rent
0 available units for rentDocuments and permits
View documents and permitsProperty history
- Price Change: â $395,000 (-4.9%) on 11/12/15
- Days on market: 212 daysThis is the number of days the listing has been on StreetEasy.
| Date | Price | Event |
|---|---|---|
2/1/2016 | $6,668,000 | Sold by Brown Harris Stevens |
2/1/2016 | $7,600,000 | No longer available |
12/4/2015 | $7,600,000 | In contract |
11/12/2015 | $7,600,000 | Price decreased by 5% |
11/12/2015 | $7,600,000 | Listed by Brown Harris Stevens |
Past listing photos
Sign in to take a closer look at how this home compares to similar homes.
Explore West Village
Transit
| Location | Distance |
|---|---|
ACELat 8th Av | 0.2 miles |
ACELat 14th St | 0.21 miles |
FLM123at 14th St | 0.3 miles |
1at Christopher StâSheridan Sq | 0.38 miles |
PATHat Christopher Street Station | 0.38 miles |
About West Village
Rental prices shown are base rent before any fees. Visit listings for cost and fees breakdown.
SalesMedian asking price
Studio
$585K
RentalsMedian asking base rent
Studio
$4,300
Picture a romantic comedy set in New York City: The heroine invariably lives in a cozy walk-up on a cobblestone street in a neighborhood with cute boutiques and trendy cafes on every corner. This movie is set in the West Village. In reality, the West Village is just as picturesque: The neighborhood is tucked between Greenwich Village and the Hudson River and is one of the quietest and most sophisticated pockets of Downtown Manhattan. Primarily residential, with a distinct lack of office buildings, the leafy, off-the-grid streets are peaceful during the day but get livelier at night. That's when well-heeled residents, fashionistas, and literati can all be found mingling over oysters at the area's many low-lit cocktail bars.
Learn more about West Village





































































































































































































