3,000 ft²
$831 per ft²
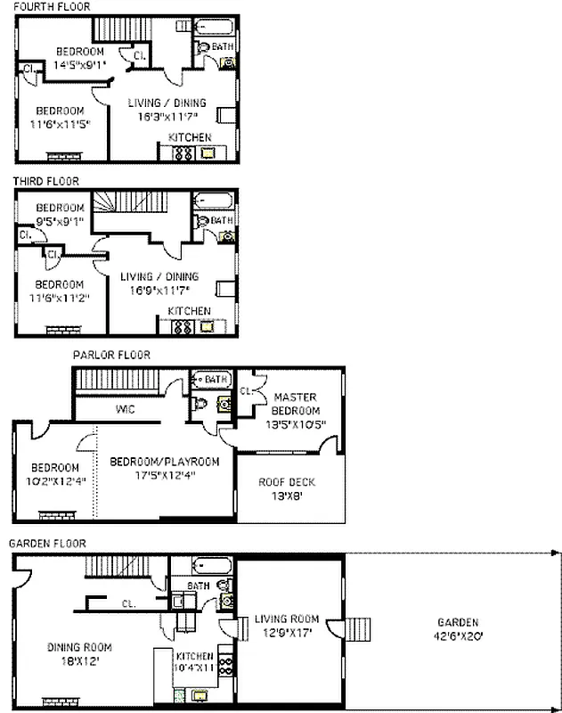
12 rooms
7 beds
4 baths
Four-family home
- Park Slope
reported sale
Sold on 3/31/2014
Not yet verified by closing records
Seller's agents
Mary Klein
Corcoran
This home has been saved by 19 users.
Listing by Corcoran, Limited Liability Broker, 1 Pierrepont Plz, Brooklyn, NY 11201 | Brokerage Listing ID: 3050712
Common charges
Not applicable
Estimated payment
$13,199/mo
Legal disclaimerAll calculations are estimates provided by StreetEasy for informational purposes only. Actual amounts or financing terms may vary. Please contact your mortgage provider for specifics.Taxes
$583/mo
Tax abatement
No info
About
Seller’s agent
description
Located in the heart of the North Slope, this lovely four-story townhouse offers multiple possibilities. A legal four-family, the house is currently configured with three unitsa lower duplex and two floor-through rental units on the top floors. The lower duplex, beautifully renovated, features a fantastic open kitchen with stainless steel appliances, marble countertops, and great storage space.
Policies
Sorry, policy info isn’t available right now. Check back later.
Home features
No info on home features
Building amenities
No info on building amenities
About the building
645 Baltic Street
645 Baltic Street, Brooklyn, NY 11217
4 units
3 stories
1930 built
For sale
0 available units for saleFor rent
0 available units for rentDocuments and permits
View documents and permitsProperty history
- Price Change: No changes
- Days on market: 25 daysThis is the number of days the listing has been on StreetEasy.
| Date | Price | Event |
|---|---|---|
4/1/2014 | $2,495,000 | Sold by Corcoran |
3/31/2014 | $2,495,000 | No longer available |
2/24/2014 | $2,495,000 | In contract |
1/30/2014 | $2,495,000 | Listed by Corcoran |
3/12/2013 | $1,499,000 |
Past listing photos
Sign in to take a closer look at how this home compares to similar homes.
Explore Park Slope
Transit
| Location | Distance |
|---|---|
23at Bergen St | 0.2 miles |
BDNQR2345at Atlantic Av–Barclays Ctr | 0.25 miles |
Rat Union St | 0.29 miles |
LIRRat Atlantic Terminal | 0.3 miles |
BQat 7th Av | 0.39 miles |
About Park Slope
Rental prices shown are base rent before any fees. Visit listings for cost and fees breakdown.
SalesMedian asking price
7 beds
$4.79M
Park Slope has a tranquil, easygoing vibe and can almost feel suburban. Strollers and children of all ages are a constant presence on sidewalks, as are shoppers patronizing local boutiques and dog walkers heading up to the park. Residents are Brooklynites through and through and tend to be socially conscious, artistically minded, and committed to their community. At night, a casual restaurant scene comes alive. For anyone looking for a night out, there are plenty of beer gardens and wine bars to patronize, especially in the South Slope, but don't go looking for dance clubs.
Learn more about Park Slope







































































































