View this home virtually
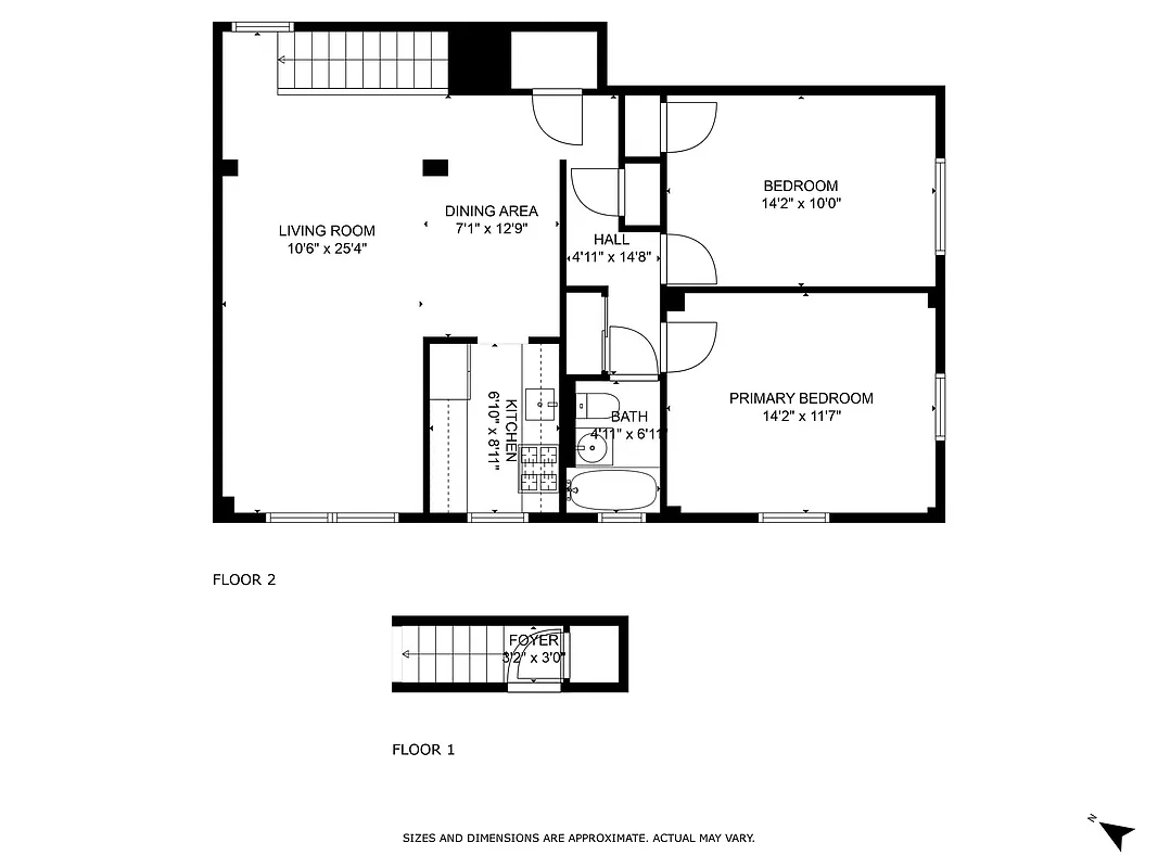
1,050 ft²
$385 per ft²
3 rooms
2 beds
1 bath
Co-op
- Rego Park
Resale
recorded sale
Sold on 6/25/2025
Verified by closing records
Last listed for $415,000
Seller's agents
This home has been saved by 46 users.
Listing by Nest Seekers International, Limited Liability Broker
Maintenance fees
$1,063/mo
Estimated payment
$3,107/mo
Legal disclaimerAll calculations are estimates provided by StreetEasy for informational purposes only. Actual amounts or financing terms may vary. Please contact your mortgage provider for specifics.Taxes
Included in maintenance fees
Tax abatement
No info
About
Seller’s agent
description
Bright and Spacious 2-Bedroom Apartment in the Heart of Rego Park!
Welcome to your new home at the highly desirable Carol House! This expansive, sun-filled 2-bedroom, 1-bath apartment offers a unique loft-like feel with added privacy, thanks to its convenient stair access. Impeccably maintained, it features stunning parquet floors, a bright, windowed kitchen with southern exposure, sleek stainless steel appliances, and durable Corian countertops—perfect for both cooking and entertaining.
Policies
Sorry, policy info isn’t available right now. Check back later.
Home features
Hardwood floors
View
City
Building amenities
Services and facilities
Bike room
Elevator
Laundry in building
Live-in super
Parking
Garage
Wellness and recreation
No info on wellness and recreation
Shared outdoor space
No info on shared outdoor space
About the building
64-34 102nd Street
64-34 102nd Street, Rego Park, NY 11374
160 units
12 stories
1952 built
For sale
2 available units for saleFor rent
0 available units for rentDocuments and permits
View documents and permitsProperty history
- Price Change: ↓ $10,000 (-2.4%) on 5/12/25
- Days on market: 271 daysThis is the number of days the listing has been on StreetEasy.
| Date | Price | Event |
|---|---|---|
6/25/2025 | $405,000 | Sold by Nest Seekers International |
6/17/2025 | $415,000 | No longer available |
5/12/2025 | $415,000 | Price decreased by 2% |
4/9/2025 | $425,000 | Price decreased by 2% |
3/17/2025 | $435,000 | Price decreased by 1% |
Past listing photos
Sign in to take a closer look at how this home compares to similar homes.
Explore Rego Park
Transit
| Location | Distance |
|---|---|
MRat 67th Av | 0.25 miles |
MRat 63rd Drive–Rego Park | 0.4 miles |
EFMRat Forest Hills–71st Av | 0.72 miles |
MRat Woodhaven Blvd | 0.81 miles |
LIRRat Forest Hills | 0.89 miles |






































































































































































































