$2,995
For Rent
Base rent only. For total monthly price and additional fees, see .
No longer available 8/21/2025
- ft²
2 rooms
Studio
1 bath
Other type
- Hoboken
Listed By
Jesse Halliburton
PRIME Real Estate Group
Listing by PRIME Real Estate Group | MLS #: 250017902
Unavailable
No longer available on 8/21/2025
Days on market
74 days
Last price change
↓ $455 (-13.2%) on 9/17/25
About
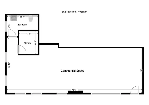
Rare opportunity to rent a commercial space in Hoboken! This high visibility, corner commercial condo is located on 1st Street, Hoboken's highest foot traffic route. Close to the Light Rail and transportation. Currently being used as an office but can easily be converted int any other storefront. No vent.
Policies
Sorry, policy info isn’t available right now. Check back later.
Home features
No info on home features
Building amenities
No info on building amenities
About the building
South Pointe
662 1st Street, Hoboken, NJ 07030
- units
- stories
- built
For rent
0 available units for rentProperty history
Prices shown are base rent only. For total monthly price and additional fees, see .
| Date | Base rent | Event |
|---|---|---|
12/3/2025 | $2,995 | No longer available |
9/17/2025 | $2,995 | Price decreased by 13% |
9/2/2025 | $3,450 | Price increased by 15% |
8/21/2025 | $2,995 | No longer available |
7/8/2025 | $2,995 | Listed by PRIME Real Estate Group |
Sign in to take a closer look at how this home compares to similar homes.
Explore Hoboken
Transit
| Location | Distance |
|---|---|
HBLRat 2nd Street | 0.11 miles |
HBLRat 9th Street/Congress St | 0.67 miles |
HBLRPATHat Hoboken Terminal | 0.79 miles |
PATHat Pavonia/Newport Station | 0.97 miles |
PATHat Journal Square Station | 1.23 miles |
Similar homes
Prices shown are base rent only and don't include any fees. Visit each listing to see a complete cost breakdown.
Similar Homes looks at ad spend and other factors like location, price, and number of beds and baths.






































































































