$2,250
For Rent
Base rent only. For total monthly price and additional fees, see .
Delisted 5/20/2025
600 ft²
$45 per ft²
6 rooms
1 bed
1 bath
House
- Farragut
Under NYC law, you can't be charged a broker fee if you didn't hire a broker.
Listed By
This home has been saved by 44 users.
Listing by Oxford Property Group, Limited Liability Broker, 401 New Karner Road, Albany, NY 12205
Searching with a housing voucher, like Section 8?
Unavailable
Delisted on 5/20/2025
Days on market
33 days
Last price change
↓ $100 (-4.3%) on 5/15/25
About
For Rent.
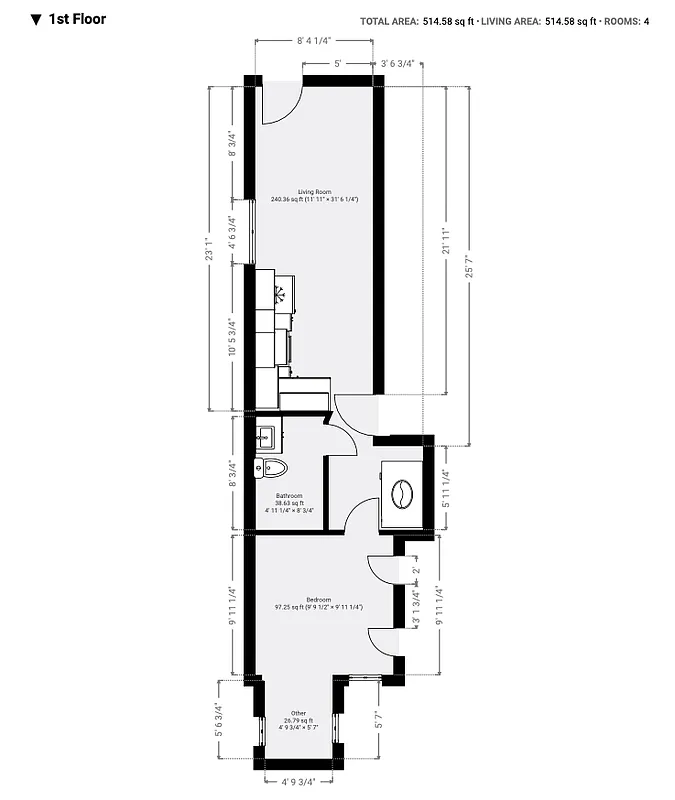
Top Floor: newley renovated one bathroom/one bedroom unit in a private house. Price includes utilities: water, cooking gas, heat and electricity. Rent: $2250 (second floor unit)
1sr Floor: Duplex with one bedroom and bathroom on first level. On lower level fully-finished basement with bathroom, open space for office or recreation with ample storage. Separate entrance in the rear for lower basement.
Policies
Sorry, policy info isn’t available right now. Check back later.
Home features
Hardwood floors
Washer/dryer
Building amenities
Services and facilities
Laundry in building
Parking
Garage
Wellness and recreation
No info on wellness and recreation
Shared outdoor space
Courtyard
About the building
663 East 42nd Street
663 East 42nd Street, Brooklyn, NY 11203
1 unit
2 stories
1930 built
Property history
Prices shown are base rent only. For total monthly price and additional fees, see .
| Date | Base rent | Event |
|---|---|---|
5/20/2025 | $2,250 | Delisted by Oxford Property Group |
5/15/2025 | $2,250 | Price decreased by 4% |
4/28/2025 | $2,350 | Price decreased by 47% |
4/28/2025 | $4,400 | Listed by Oxford Property Group |
4/21/2025 | $4,400 | Temporarily off market |
Sign in to take a closer look at how this home compares to similar homes.
Explore Farragut
Transit
| Location | Distance |
|---|---|
25at Newkirk Av | 0.62 miles |
25at Flatbush Av–Brooklyn College | 0.71 miles |
25at Beverly Rd | 0.77 miles |
25at Church Av | 1.06 miles |
25at Winthrop St | 1.39 miles |
Similar homes
Prices shown are base rent only and don't include any fees. Visit each listing to see a complete cost breakdown.
Similar Homes looks at ad spend and other factors like location, price, and number of beds and baths.


















































































