3,770 ft²
$663 per ft²
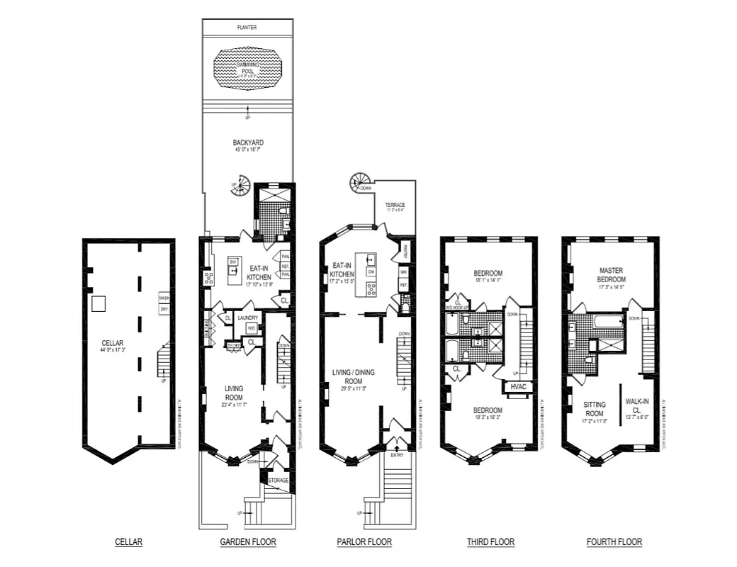
13 rooms
5 beds
4.5 baths
Two-family home
- Stuyvesant Heights
recorded sale
Sold on 6/28/2019
Verified by closing records
Last listed for $2,500,000
Seller's agents
This home has been saved by 83 users.
Listing by Corcoran, Limited Liability Broker, 590 Madison Avenue, New York, NY 10022 | Brokerage Listing ID: 5650072
Common charges
Not applicable
Estimated payment
$13,030/mo
Legal disclaimerAll calculations are estimates provided by StreetEasy for informational purposes only. Actual amounts or financing terms may vary. Please contact your mortgage provider for specifics.Taxes
$389/mo
Tax abatement
No info
About
Seller’s agent
description
News Splash: Townhouse Designed by Vogue Editor with Private Pool
663 Putnam Avenue is a meticulously renovated, spacious, two-family home on one of the prettiest Landmarked blocks of Stuyvesant-Heights. Designed by architect Joseph S. Stevens in 1899, it was recently restored and features original hardwood floors on the parlor and garden level, as well as marble gas fireplaces throughout.
Policies
Sorry, policy info isn’t available right now. Check back later.
Home features
Central air
Private outdoor space
Garden
Building amenities
Services and facilities
Laundry in building
Wellness and recreation
Swimming pool
Shared outdoor space
No info on shared outdoor space
About the building
663 Putnam Avenue
663 Putnam Avenue, Brooklyn, NY 11221
2 units
3 stories
1899 built
For sale
0 available units for saleFor rent
0 available units for rentDocuments and permits
View documents and permitsProperty history
- Price Change: ↓ $495,000 (-16.5%) on 4/8/19
- Days on market: 115 daysThis is the number of days the listing has been on StreetEasy.
| Date | Price | Event |
|---|---|---|
9/8/2025 | $3,300,000 | |
9/8/2025 | $3,300,000 | Price increased by 6% |
5/16/2025 | $3,099,999 | Price decreased by 6% |
4/4/2025 | $3,299,000 | |
5/18/2024 | $3,150,000 |
Past listing photos
Sign in to take a closer look at how this home compares to similar homes.
Explore Stuyvesant Heights
Transit
| Location | Distance |
|---|---|
ACat Utica Av | 0.47 miles |
ACat Kingston–Throop | 0.5 miles |
Jat Kosciusko St | 0.59 miles |
JZat Gates Av | 0.67 miles |
JMZat Myrtle Av | 0.75 miles |
































































































































































