- ft²
10 rooms
3 beds
3.5 baths
House
- Windsor Terrace
reported sale
Sold on 11/21/2013
Not yet verified by closing records
Seller's agents
Patricia Neinast
Corcoran
This home has been saved by 11 users.
Listing by Corcoran, Limited Liability Broker | Brokerage Listing ID: 2816158
Common charges
Not applicable
Estimated payment
$8,085/mo
Legal disclaimerAll calculations are estimates provided by StreetEasy for informational purposes only. Actual amounts or financing terms may vary. Please contact your mortgage provider for specifics.Taxes
No info
Tax abatement
No info
About
Seller’s agent
description
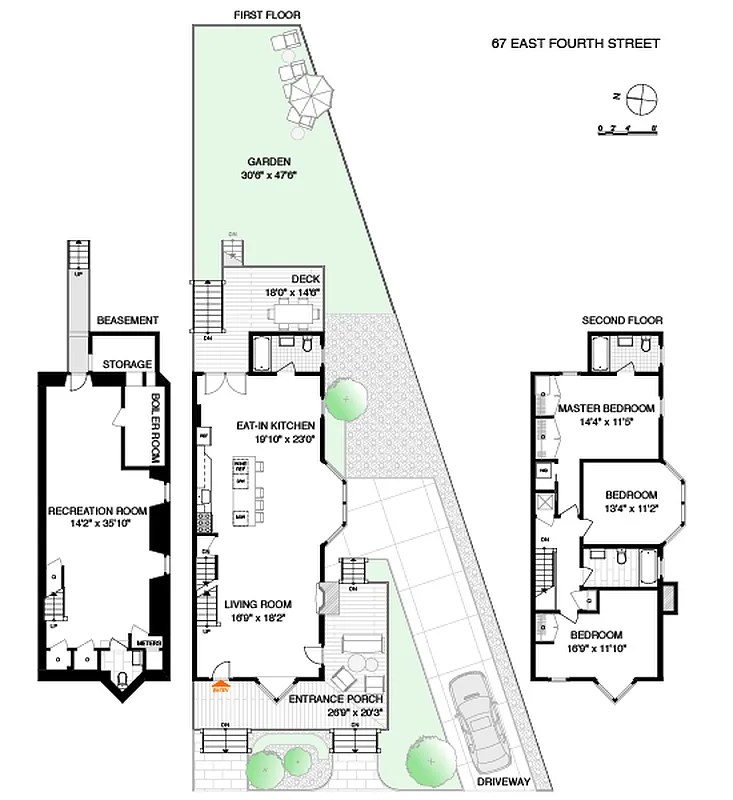
TOP TO BOTTOM EVERYTHING NEW! TOTALLY RENOVATED legal two family, being used as a one family, with private three car driveway on a 47 x 100 lot! This unique 3BR/3.5BTH home has an expansive living room with a working marble wood burning fireplace and brand new gourmet kitchen with SubZero refrigerator, Miele dishwasher, six burner Wolf stove and Danby Wine Cooler.
Policies
Sorry, policy info isn’t available right now. Check back later.
Home features
Fireplace
Private outdoor space
Patio
Building amenities
No info on building amenities
About the building
67 East 4th Street
67 East 4th Street, Brooklyn, NY 11218
1 unit
2 stories
1899 built
For sale
0 available units for saleFor rent
0 available units for rentDocuments and permits
View documents and permitsProperty history
- Price Change: No changes
- Days on market: 36 daysThis is the number of days the listing has been on StreetEasy.
| Date | Price | Event |
|---|---|---|
11/20/2013 | $1,599,000 | |
10/2/2013 | $585,000 | |
11/21/2013 | $1,599,000 | Sold by Corcoran |
11/21/2013 | $1,599,000 | No longer available |
10/15/2013 | $1,599,000 | In contract |
Past listing photos
Sign in to take a closer look at how this home compares to similar homes.
Explore Windsor Terrace
Transit
| Location | Distance |
|---|---|
Fat Fort Hamilton Parkway | under 500 feet |
Fat Church Av | 0.43 miles |
Fat Prospect Park–15 St | 0.59 miles |
BQat Church Av | 0.76 miles |
BQat Beverly Rd | 0.84 miles |















































































































