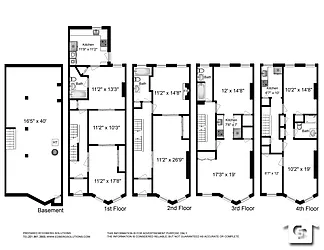
3,024 ft²
$462 per ft²
10 rooms
5 beds
4 baths
Two-family home
- Stuyvesant Heights
recorded sale
Sold on 4/25/2017
Verified by closing records
Last listed for $1,400,000
Seller's agent
This home has been saved by 89 users.
Listing by Coldwell Banker Reliable Real Estate, Real Estate Principal Office, 1133 Bedford Avenue, Brooklyn, NY 11216 | Brokerage Listing ID: 1054867
Common charges
Not applicable
Estimated payment
$7,102/mo
Legal disclaimerAll calculations are estimates provided by StreetEasy for informational purposes only. Actual amounts or financing terms may vary. Please contact your mortgage provider for specifics.Taxes
No info
Tax abatement
No info
About
Seller’s agent
Buyer’s agent
description
The Bedford-Stuyvesant neighborhood has quickly become one of the most coveted areas to call home in Brooklyn, New York. A new addition to the market, this impressive brownstone is nestled on a quiet, tree-lined street and maintains most of its original details from fire places and mantles to unique wall trimmings. This property includes large bedrooms, eat-in kitchen, and a raised garden towards the rear of the backyard.
Policies
Sorry, policy info isn’t available right now. Check back later.
Home features
Private outdoor space
Garden, Patio
Building amenities
No info on building amenities
About the building
670 Macon Street
670 Macon Street, Brooklyn, NY 11233
2 units
2 stories
1899 built
For sale
0 available units for saleFor rent
0 available units for rentDocuments and permits
View documents and permitsProperty history
- Price Change: No changes
- Days on market: 84 daysThis is the number of days the listing has been on StreetEasy.
| Date | Price | Event |
|---|---|---|
4/25/2017 | $0 | |
4/25/2017 | $1,400,000 | Sold by Coldwell Banker Reliable Real Estate |
1/25/2017 | $1,400,000 | In contract |
11/2/2016 | $1,400,000 | Listed by Coldwell Banker Reliable Real Estate |
Past listing photos
Sign in to take a closer look at how this home compares to similar homes.
Explore Stuyvesant Heights
Transit
| Location | Distance |
|---|---|
ACat Ralph Av | 0.34 miles |
ACat Utica Av | 0.43 miles |
JZat Gates Av | 0.43 miles |
Jat Halsey St | 0.44 miles |
ACat Rockaway Av | 0.64 miles |



















































































































































