$3,850,000
For Sale
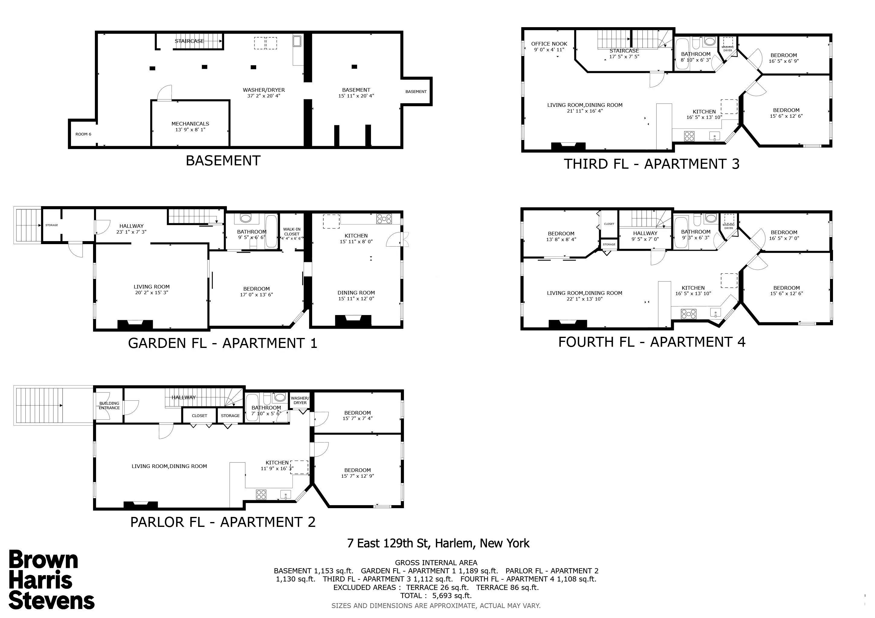
5,200 ft²
$740 per ft²
16 rooms
8 beds
4 baths
Four-family home
- Central Harlem
Resale
This home has been saved by 11 users.
Listing by Brown Harris Stevens, Real Estate Principal Office, 2169 Frederick Douglas Boulevard, New York, NY 10026
Common charges
Not applicable
Estimated payment
$23,356/mo
Legal disclaimerAll calculations are estimates provided by StreetEasy for informational purposes only. Actual amounts or financing terms may vary. Please contact your mortgage provider for specifics.Taxes
$1,025/mo
Tax abatement
No info
About
Seller’s agent
description
4 Family luxury Boutique Turnkey Investment Opportunity
8 Bedrooms, 4 Bathrooms, 5,200+ Sq. ft. 4 Free-market Units
Investment Highlights:
- Luxury turnkey free market rental multi-family in excellent condition: All four units are currently leased under market while generating a cap rate of 5%, with the potential for a 6.
Policies
Sorry, policy info isn’t available right now. Check back later.
Home features
Central air
Dishwasher
Fireplace
Decorative
Hardwood floors
Private outdoor space
Garden
View
City, Garden
Washer/dryer
Building amenities
Services and facilities
Laundry in building
Wellness and recreation
No info on wellness and recreation
Shared outdoor space
No info on shared outdoor space
About the building
7 East 129th Street
7 East 129th Street, New York, NY 10035
4 units
3 stories
1910 built
For sale
1 available units for saleFor rent
0 available units for rentDocuments and permits
View documents and permitsProperty history
- Price Change: No changes
- Days on market: 80 daysThis is the number of days the listing has been on StreetEasy.
| Date | Price | Event |
|---|---|---|
10/6/2025 | $3,850,000 | Listed by Brown Harris Stevens |
Sign in to take a closer look at how this home compares to similar homes.
Explore Central Harlem
Transit
| Location | Distance |
|---|---|
23at 125th St | 0.3 miles |
456at 125th St | 0.32 miles |
23at 135th St | 0.35 miles |
ABCDat 125th St | 0.65 miles |
23at 116th St | 0.69 miles |
About Central Harlem
Rental prices shown are base rent before any fees. Visit listings for cost and fees breakdown.
SalesMedian asking price
8 beds
$2.8M
Harlem begins directly above Central Park, where you will find busy thoroughfares adjacent to quiet tree-lined blocks lined with brownstones and pre-war apartment buildings.
Learn more about Central Harlem





































































































































































