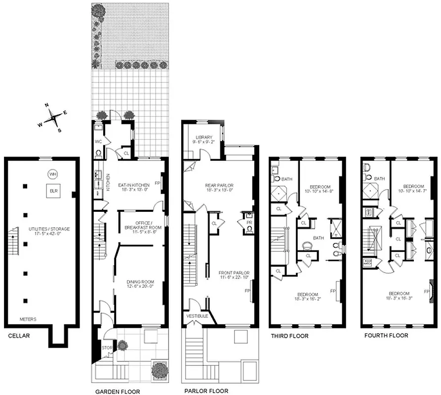
3,860 ft²
$621 per ft²
12 rooms
5 beds
3.5 baths
recorded sale
Sold on 3/1/2016
Verified by closing records
Last listed for $2,400,000
Seller's agent
This home has been saved by 50 users.
Listing by Brown Harris Stevens, Real Estate Principal Office, 100 Seventh Avenue, Brooklyn, NY 11215 | MLS #: 13024329
Common charges
Not applicable
Estimated payment
$12,231/mo
Legal disclaimerAll calculations are estimates provided by StreetEasy for informational purposes only. Actual amounts or financing terms may vary. Please contact your mortgage provider for specifics.Taxes
No info
Tax abatement
No info
About
Seller’s agent
description
CONTRACT SIGNED
ARCHITECTURALLY GRAND!
Come in out the cold to Lefferts Manor's most elegantly appointed townhouse! Light a fire-sip wine-roast marshmallows! That is part of the scene in this 4-story 20 feet wide grand and magnificent semi-detached home. Designed by architect William M. Miller for William A.A.
Policies
Sorry, policy info isn’t available right now. Check back later.
Home features
Fireplace
Private outdoor space
Garden
Building amenities
Services and facilities
Storage space
Wellness and recreation
No info on wellness and recreation
Shared outdoor space
Roof deck
About the building
71 Midwood Street
71 Midwood Street, Brooklyn, NY 11225
1 unit
3 stories
1895 built
For sale
0 available units for saleFor rent
0 available units for rentDocuments and permits
View documents and permitsProperty history
- Price Change: No changes
- Days on market: 137 daysThis is the number of days the listing has been on StreetEasy.
| Date | Price | Event |
|---|---|---|
3/1/2016 | $2,400,000 | Sold by Brown Harris Stevens |
3/8/2016 | $2,400,000 | No longer available |
2/16/2016 | $2,400,000 | In contract |
10/2/2015 | $2,400,000 | Listed by Brown Harris Stevens |
Past listing photos
Sign in to take a closer look at how this home compares to similar homes.
Explore Prospect Lefferts Gardens
Transit
| Location | Distance |
|---|---|
BQSat Prospect Park | 0.21 miles |
BQat Parkside Av | 0.36 miles |
25at Sterling St | 0.45 miles |
25at Winthrop St | 0.47 miles |
BQat Church Av | 0.62 miles |

































































































































































































































































