View this home virtually
$2,250,000
For Sale
3,504 ft²
$642 per ft²
7 rooms
1 bed
1.5 baths
Condo
- Park Slope
Resale
This home has been saved by 66 users.
Open House
Sun, Dec 7 (11 AM–12 PM ET), by appt only
Listing by Brown Harris Stevens, Real Estate Principal Office, 160 Seventh Avenue, Brooklyn, NY 11215
Common charges
$333/mo
Estimated payment
$12,570/mo
Legal disclaimerAll calculations are estimates provided by StreetEasy for informational purposes only. Actual amounts or financing terms may vary. Please contact your mortgage provider for specifics.Taxes
$711/mo
Tax abatement
No info
About
Seller’s agent
description
An extraordinary Park Slope residence that defies expectation.
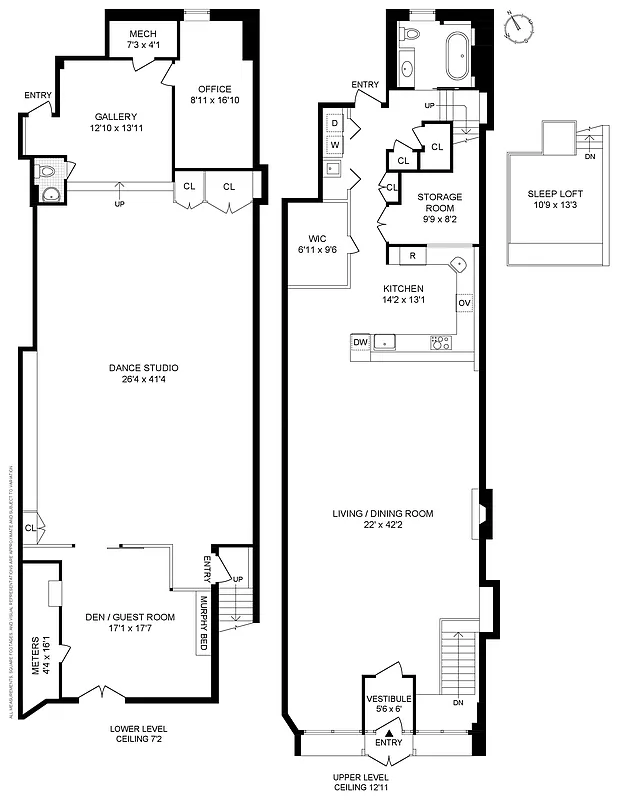
With over 3,500 square feet, this loft condominium combines industrial charm, a beautifully crafted environment, and remarkably low monthly costs. Set beneath 12-foot ceilings, this duplex is configured with an upper level one-bedroom (easily convertible to two) and a lower level featuring a spacious dance studio, dedicated office, and guest room.
Policies
Sorry, policy info isn’t available right now. Check back later.
Home features
Central air
Dishwasher
Washer/dryer
Building amenities
No info on building amenities
About the building
725 Union Street
725 Union Street, Brooklyn, NY 11215
4 units
4 stories
1920 built
For sale
1 available units for saleFor rent
0 available units for rentDocuments and permits
View documents and permitsProperty history
- Price Change: No changes
- Days on market: 77 daysThis is the number of days the listing has been on StreetEasy.
| Date | Price | Event |
|---|---|---|
9/18/2025 | $2,250,000 | Listed by Brown Harris Stevens |
9/23/2025 | $2,450,000 | |
6/24/2025 | $2,450,000 | |
6/13/2025 | $2,450,000 | Price decreased by 6% |
4/4/2025 | $2,600,000 |
Sign in to take a closer look at how this home compares to similar homes.
Explore Park Slope
Transit
| Location | Distance |
|---|---|
| 0.12 miles |
| 0.39 miles |
| 0.42 miles |
| 0.5 miles |
| 0.51 miles |
About Park Slope
Rental prices shown are base rent before any fees. Visit listings for cost and fees breakdown.
SalesMedian asking price
1 bed
$799K
RentalsMedian asking base rent
1 bed
$3,600
Park Slope has a tranquil, easygoing vibe and can almost feel suburban. Strollers and children of all ages are a constant presence on sidewalks, as are shoppers patronizing local boutiques and dog walkers heading up to the park. Residents are Brooklynites through and through and tend to be socially conscious, artistically minded, and committed to their community. At night, a casual restaurant scene comes alive. For anyone looking for a night out, there are plenty of beer gardens and wine bars to patronize, especially in the South Slope, but don't go looking for dance clubs.
Learn more about Park Slope















































































































