View this home virtually
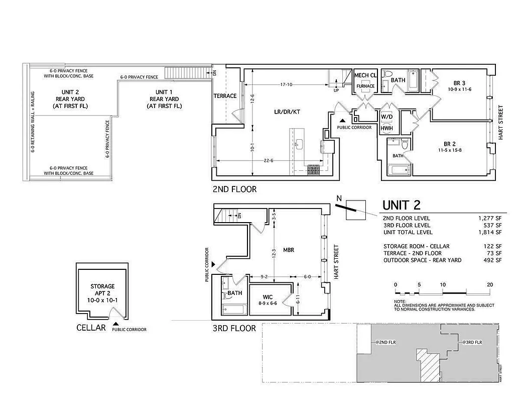
1,814 ft²
$937 per ft²
8 rooms
3 beds
3 baths
Condo
- Bushwick
Resale
recorded sale
Sold on 3/28/2022
Verified by closing records
Last listed for $1,500,000
Seller's agents
This home has been saved by 79 users.
Listing by Corcoran, Limited Liability Broker, 245 Bedford Avenue, Brooklyn, NY 11211
Common charges
$593/mo
Estimated payment
$8,761/mo
Legal disclaimerAll calculations are estimates provided by StreetEasy for informational purposes only. Actual amounts or financing terms may vary. Please contact your mortgage provider for specifics.Taxes
$721/mo
Tax abatement
No info
About
Seller’s agent
Buyer’s agent
description
755 Hart Street is a 2nd and 3rd floor duplex the size of a townhouse.
This 1814 sqft, three bedroom, three bath with outdoor garden has all the comforts of home with a sleek design to fit perfectly in Brooklyn's artistic heart.
You're immediately greeted by thoughtfully crafted interiors with soaring ceilings and oversized windows that gently pour light into an open plan living space with separate...
Policies
Sorry, policy info isn’t available right now. Check back later.
Home features
Central air
Dishwasher
Hardwood floors
Private outdoor space
Balcony, Garden
Washer/dryer
Building amenities
Services and facilities
Storage space
Locker/cage
Wellness and recreation
No info on wellness and recreation
Shared outdoor space
No info on shared outdoor space
About the building
755 Hart Street
755 Hart Street, Brooklyn, NY 11237
3 units
4 stories
2017 built
For sale
0 available units for saleFor rent
0 available units for rentDocuments and permits
View documents and permitsProperty history
- Price Change: No changes
- Days on market: 21 daysThis is the number of days the listing has been on StreetEasy.
| Date | Price | Event |
|---|---|---|
3/28/2022 | $1,700,000 | Sold by Corcoran |
1/28/2022 | $1,500,000 | In contract |
1/7/2022 | $1,500,000 | Listed by Corcoran |
3/15/2018 | $1,407,729 | |
3/15/2018 | $1,395,000 |
Past listing photos
Sign in to take a closer look at how this home compares to similar homes.
Explore Bushwick
Transit
| Location | Distance |
|---|---|
Mat Central Av | 0.2 miles |
Mat Knickerbocker Av | 0.32 miles |
Lat DeKalb Av | 0.37 miles |
Lat Jefferson St | 0.39 miles |
Lat Morgan Av | 0.55 miles |
About Bushwick
Rental prices shown are base rent before any fees. Visit listings for cost and fees breakdown.
SalesMedian asking price
3 beds
$1.25M
RentalsMedian asking base rent
3 beds
$3,900
Bushwick has seen a lot of change over the years. In the early 1900s, it was known for its thriving distilleries and breweries. After those industries declined, it experienced a long period of blight through the 1970s and 1980s. Now the neighborhood is seeing a renaissance, as artists pushed out of Williamsburg and elsewhere move in and raise property values. Bushwick offers unconventional living spaces: The housing market is full of converted lofts in old factories, sometimes with great access to outdoor space.
Learn more about Bushwick











































































































































