$7,950
For Rent
Base rent only. For total monthly price and additional fees, see .
Rented 3/25/2025
- ft²
12 rooms
3 beds
5 baths
Mixed-use building
- Prospect Heights
Under NYC law, you can't be charged a broker fee if you didn't hire a broker.
Listed By
This home has been saved by 42 users.
Listing by Oxford Property Group, Limited Liability Broker, 401 New Karner Road, Albany, NY 12205
Unavailable
Rented on 3/25/2025
Days on market
12 days
Last price change
↓ $550 (-6.5%) on 3/20/25
About
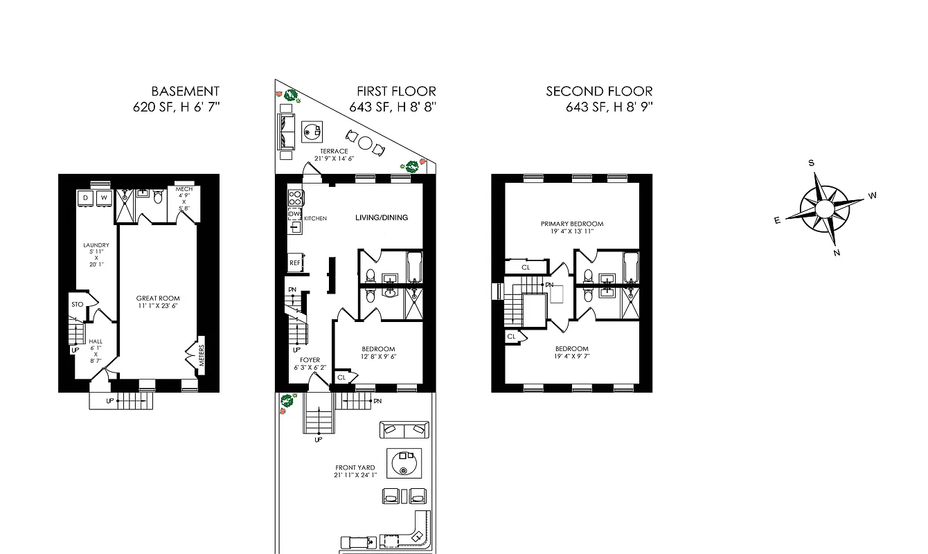
Stunning 3-Bedroom, 5-Bath Carriage House with Private Front & Back Yards
Discover a rare gem in Prospect Heights—a beautifully designed 3-bedroom, 5-bathroom carriage house at 772 Dean St. Spanning three floors, this spacious home offers a perfect blend of historic charm and modern luxury, with private front and back yards for exceptional indoor-outdoor living.
Policies
Sorry, policy info isn’t available right now. Check back later.
Home features
Central air
Dishwasher
Hardwood floors
Private outdoor space
Garden, Terrace
View
City, Garden
Washer/dryer
Building amenities
Services and facilities
Doorman
Virtual
Laundry in building
Wellness and recreation
No info on wellness and recreation
Shared outdoor space
Courtyard
About the building
772 Dean Street
772 Dean Street, Brooklyn, NY 11238
2 units
3 stories
1931 built
Property history
Prices shown are base rent only. For total monthly price and additional fees, see .
| Date | Base rent | Event |
|---|---|---|
3/25/2025 | $7,950 | Rented by Oxford Property Group |
3/25/2025 | $7,950 | In contract |
3/20/2025 | $7,950 | Price decreased by 6% |
3/13/2025 | $8,500 | Listed by Oxford Property Group |
Past listing photos
Sign in to take a closer look at how this home compares to similar homes.
Explore Prospect Heights
Transit
| Location | Distance |
|---|---|
Cat Clinton & Washington Avs | 0.25 miles |
BQat 7th Av | 0.42 miles |
23at Grand Army Plaza | 0.43 miles |
Sat Park Place | 0.46 miles |
ASat Franklin Av | 0.47 miles |
About Prospect Heights
Rental prices shown are base rent before any fees. Visit listings for cost and fees breakdown.
SalesMedian asking price
3 beds
$1.95M
RentalsMedian asking base rent
3 beds
$5,500
Prospect Heights offers a vibrant mix of old and new Brooklyn. Often referred to as a fallback for people unable to afford Park Slope, the area has recently become known for its own unique personality - as well as its rising real estate value. The commercial strips of Vanderbilt and Washington Avenues offer a mix of bodegas and inveterate neighborhood standbys next to a new spate of hipster-centric bars and restaurants. Turn down any side street, however, and you can encounter gorgeous old brownstones surrounded by quiet greenery.
Learn more about Prospect HeightsSimilar homes
Prices shown are base rent only and don't include any fees. Visit each listing to see a complete cost breakdown.
Similar Homes looks at ad spend and other factors like location, price, and number of beds and baths.







































































































































