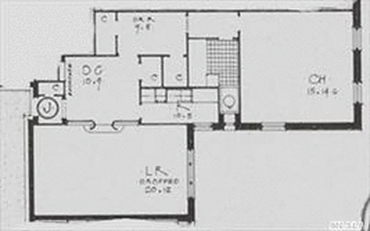
- ft²
4 rooms
1 bed
1 bath
Co-op
- Forest Hills
Resale
recorded sale
Sold on 4/1/2015
Verified by closing records
Last listed for $225,000
Seller's agent
Madeleine Realty Ltd.
This home has been saved by 10 users.
Listing by Madeleine Realty Ltd.
Maintenance fees
$670/mo
Estimated payment
$1,794/mo
Taxes
Included in maintenance fees
Tax abatement
No info
About
Seller’s agent
description
Unique exclusive garden setting in pre-war building complex. Carpeted hallways, large outdoor sitting areas, 1-2 blocks from all transportation/shopping. Security, laundry, garage, PS 196 school district.
Policies
Sorry, policy info isn’t available right now. Check back later.
Home features
No info on home features
Building amenities
No info on building amenities
About the building
77-14 113th Street
77-14 113th Street, Forest Hills, NY 11375
112 units
6 stories
1940 built
For sale
3 available units for saleFor rent
0 available units for rentDocuments and permits
View documents and permitsProperty history
- Price Change: No changes
- Days on market: 450 days
| Date | Price | Event |
|---|---|---|
4/1/2015 | $212,000 | Sold by Madeleine Realty Ltd. |
2/19/2015 | $225,000 | No longer available |
6/15/2014 | $225,000 | No longer available |
10/16/2013 | $225,000 | Listed by Madeleine Realty Ltd. |
Past listing photos
Sign in to take a closer look at how this home compares to similar homes.
Explore Forest Hills
Transit
| Location | Distance |
|---|---|
EFat Kew Gardens–Union Turnpike | 0.1 miles |
EFat 75th Av | 0.24 miles |
LIRRat Kew Gardens | 0.47 miles |
EFMRat Forest Hills–71st Av | 0.67 miles |
LIRRat Forest Hills | 0.68 miles |
About Forest Hills
Rental prices shown are base rent before any fees. Visit listings for cost and fees breakdown.
SalesMedian asking price
1 bed
$335K
RentalsMedian asking base rent
1 bed
$2,795
Bisected by Queens Boulevard, Forest Hills offers two types of city living: Urban apartment complexes on one side and the other, the storied Forest Hills Gardens. Whichever side of the boulevard you live on, this suburban neighborhood is teeming with lots of public outdoor space. Another good to know, many residents own a car.
Learn more about Forest Hills
























































































































