1,776 ft²
$1,069 per ft²
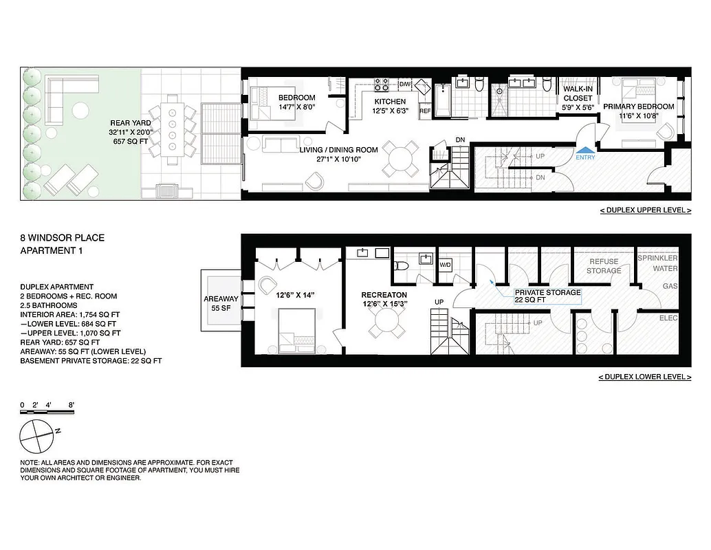
8 rooms
3 beds
2.5 baths
Condo
- Park Slope
Sponsor unit
Sponsor unitA unit being sold for the first time. It’s typically owned by the building. For condos, this is often the developer. For co-ops, this is often the building’s original owner before it went co-op.
recorded sale
Sold on 12/12/2023
Verified by closing records
Last listed for $1,899,000
Seller's agents
This home has been saved by 30 users.
Listing by Douglas Elliman, Limited Liability Broker, 237 Smith Street, Brooklyn, NY 11231 | Brokerage Listing ID: 22727517
Common charges
$544/mo
Estimated payment
$11,407/mo
Legal disclaimerAll calculations are estimates provided by StreetEasy for informational purposes only. Actual amounts or financing terms may vary. Please contact your mortgage provider for specifics.Taxes
$1,261/mo
Tax abatement
No info
About
Seller’s agent
Buyer’s agent
description
IMMEDIATE CLOSINGS!
Welcome home to 8 Windsor Place, a statement 4-residence property with modern arches and recessed balconies. Thoughtfully crafted, these unique condos have a functional yet nuanced approach to the spatial layouts of each home. Designed and developed by Spearhead Architecture and Design, a NY-based firm known for its innovative approach- these four residences exude a unique airy quality unlike anything else on the market.
Policies
Pets allowed
Home features
Central air
Dishwasher
Hardwood floors
Private outdoor space
Garden
View
Garden
Washer/dryer
Building amenities
Services and facilities
Storage space
Wellness and recreation
No info on wellness and recreation
Shared outdoor space
No info on shared outdoor space
About the building
8 Windsor Place
8 Windsor Place, Brooklyn, NY 11215
4 units
4 stories
2023 built
For sale
0 available units for saleFor rent
0 available units for rentDocuments and permits
View documents and permitsProperty history
- Price Change: ↑ $100,000 (+5.0%) on 10/13/23
- Days on market: 14 daysThis is the number of days the listing has been on StreetEasy.
| Date | Price | Event |
|---|---|---|
12/12/2023 | $1,899,000 | Sold by Douglas Elliman |
10/27/2023 | $1,899,000 | In contract |
10/13/2023 | $1,899,000 | Price increased by 6% |
10/13/2023 | $1,799,000 | Price decreased by 5% |
10/13/2023 | $1,899,000 | Listed by Douglas Elliman |
Past listing photos
Sign in to take a closer look at how this home compares to similar homes.
Explore Park Slope
Transit
| Location | Distance |
|---|---|
Fat Prospect Park–15 St | 0.29 miles |
Fat 7th Av | 0.39 miles |
Rat Prospect Av | 0.46 miles |
Fat 4th Av | 0.61 miles |
FGRat 9th St | 0.62 miles |
About Park Slope
Rental prices shown are base rent before any fees. Visit listings for cost and fees breakdown.
SalesMedian asking price
3 beds
$2.4M
RentalsMedian asking base rent
3 beds
$6,000
Park Slope has a tranquil, easygoing vibe and can almost feel suburban. Strollers and children of all ages are a constant presence on sidewalks, as are shoppers patronizing local boutiques and dog walkers heading up to the park. Residents are Brooklynites through and through and tend to be socially conscious, artistically minded, and committed to their community. At night, a casual restaurant scene comes alive. For anyone looking for a night out, there are plenty of beer gardens and wine bars to patronize, especially in the South Slope, but don't go looking for dance clubs.
Learn more about Park Slope




























































































































