$280,000
For Sale
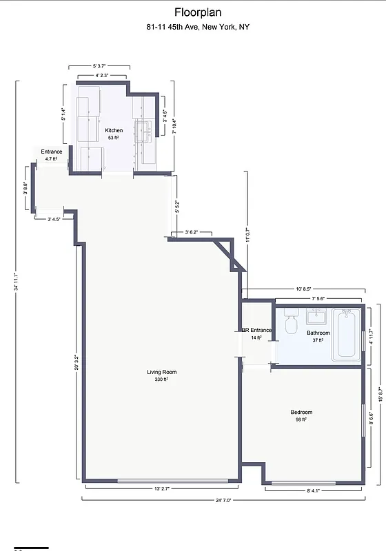
- ft²
4 rooms
1 bed
1 bath
Co-op
- Elmhurst
Resale
This home has been saved by 25 users.
Open House
Sun, Apr 19 (1–2:30 PM ET), by appt only
Listing by EXP Realty, Real Estate Branch Office, 68-56 Groton Street, Forest Hills, NY 11375
Listing updated in the last 2 days
Maintenance fees
$876/mo
Estimated payment
$2,333/mo
Taxes
Included in maintenance fees
Tax abatement
No info
About
Seller’s agent
description
Discover your new home at 81-11 45 Avenue #4O, nestled in a prime location that offers unparalleled convenience. This spacious unit is ideally situated just moments away from trains, buses, supermarkets, restaurants, and parks, making it perfect for those who value accessibility and a vibrant lifestyle.
Key features of this property include:
- Prime Location: Enjoy easy access to public transportation, allowing for quick commutes and effortless travel throughout the city.
Policies
Sorry, policy info isn’t available right now. Check back later.
Home features
No info on home features
Building amenities
Services and facilities
Laundry in building
Live-in super
Parking
Garage
Wheelchair access
Wellness and recreation
No info on wellness and recreation
Shared outdoor space
Courtyard
About the building
81-11 45th Avenue
81-11 45th Avenue, Elmhurst, NY 11373
163 units
10 stories
1961 built
For sale
2 available units for saleFor rent
0 available units for rentDocuments and permits
View documents and permitsProperty history
- Price Change: ↓ $15,000 (-5.1%) on 3/18/26
- Days on market: 104 days
| Date | Price | Event |
|---|---|---|
3/18/2026 | $280,000 | Price decreased by 5% |
2/6/2026 | $295,000 | Price decreased by 2% |
1/1/2026 | $300,000 | Listed by EXP Realty |
Sign in to take a closer look at how this home compares to similar homes.
Explore Elmhurst
Transit
| Location | Distance |
|---|---|
MRat Elmhurst Av | under 500 feet |
7at 82nd St–Jackson Heights | 0.39 miles |
MRat Grand Av–Newtown | 0.44 miles |
EFMR7at Jackson Heights–Roosevelt Ave | 0.51 miles |
EFMR7at Broadway–74th St | 0.55 miles |
About Elmhurst
Rental prices shown are base rent before any fees. Visit listings for cost and fees breakdown.
SalesMedian asking price
1 bed
$360K
RentalsMedian asking base rent
1 bed
$2,350
Though it may seem far from the action, the dense and bustling neighborhood of Elmhurst, Queens, is a major hub for commerce and transportation. The E, F, M, R, and 7 trains; the Long Island Rail Road; the Brooklyn-Queens Expressway; and the Long Island Expressway all run through Elmhurst, making Manhattan accessible in 20 minutes. This surfeit of commuting options also contributes to a decidedly frenetic feel, with the constant buzz amplified by Elmhurst's busy commercial scene.
There are two malls here, along with countless big-box stores, groceries, medical offices, and restaurants. In fact, the wealth of eateries makes this one of the city's best neighborhoods for culinary exploration. In addition to transportation and commerce, the central Queens enclave has plenty of housing stock: a mixture of two-family houses, apartment buildings, and condos, all priced well below Manhattan standards.






















































































































